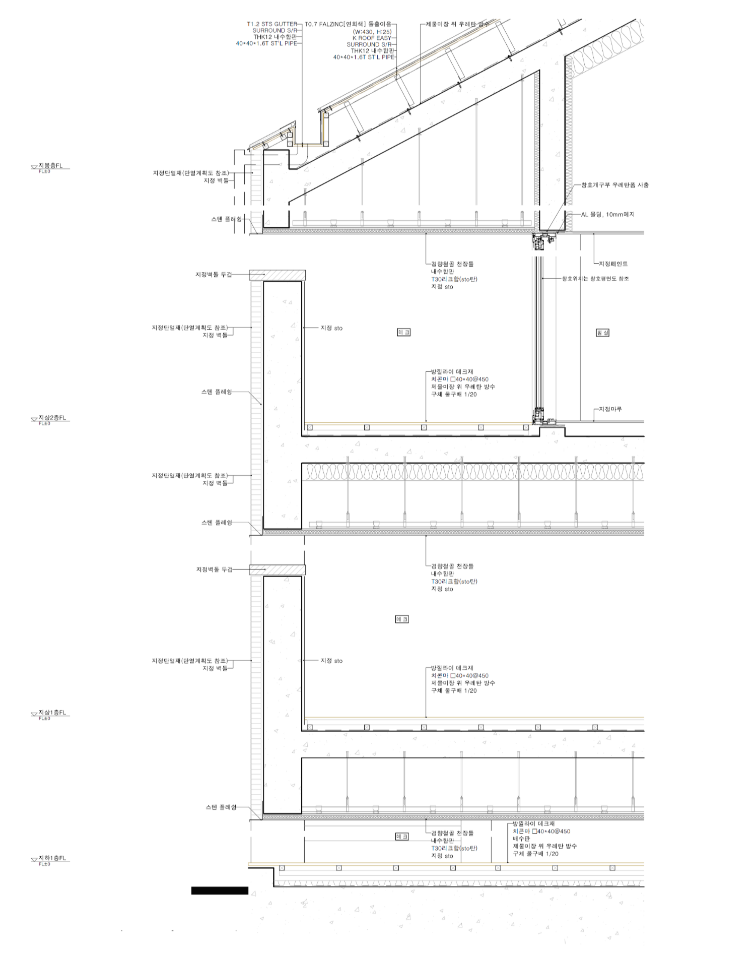
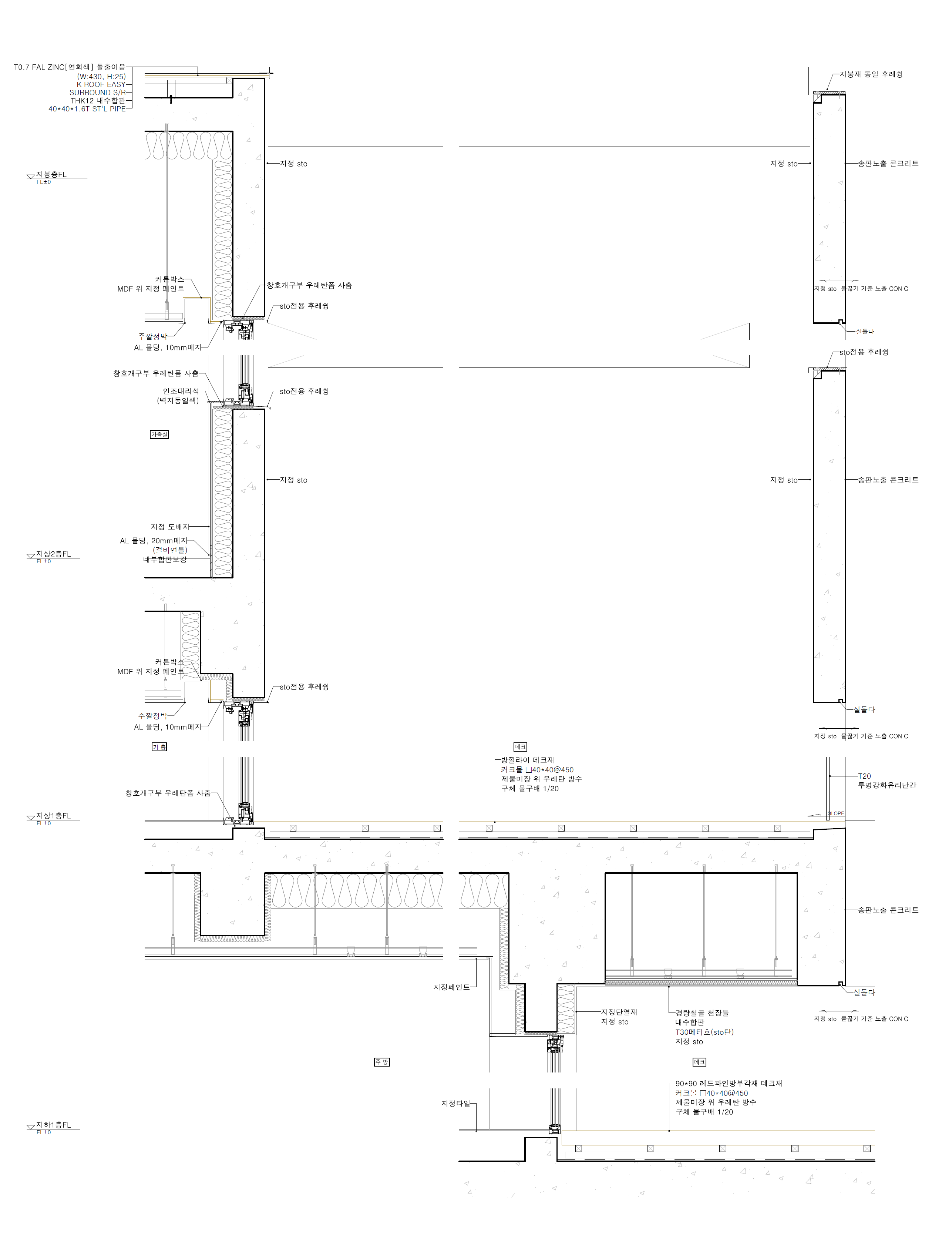
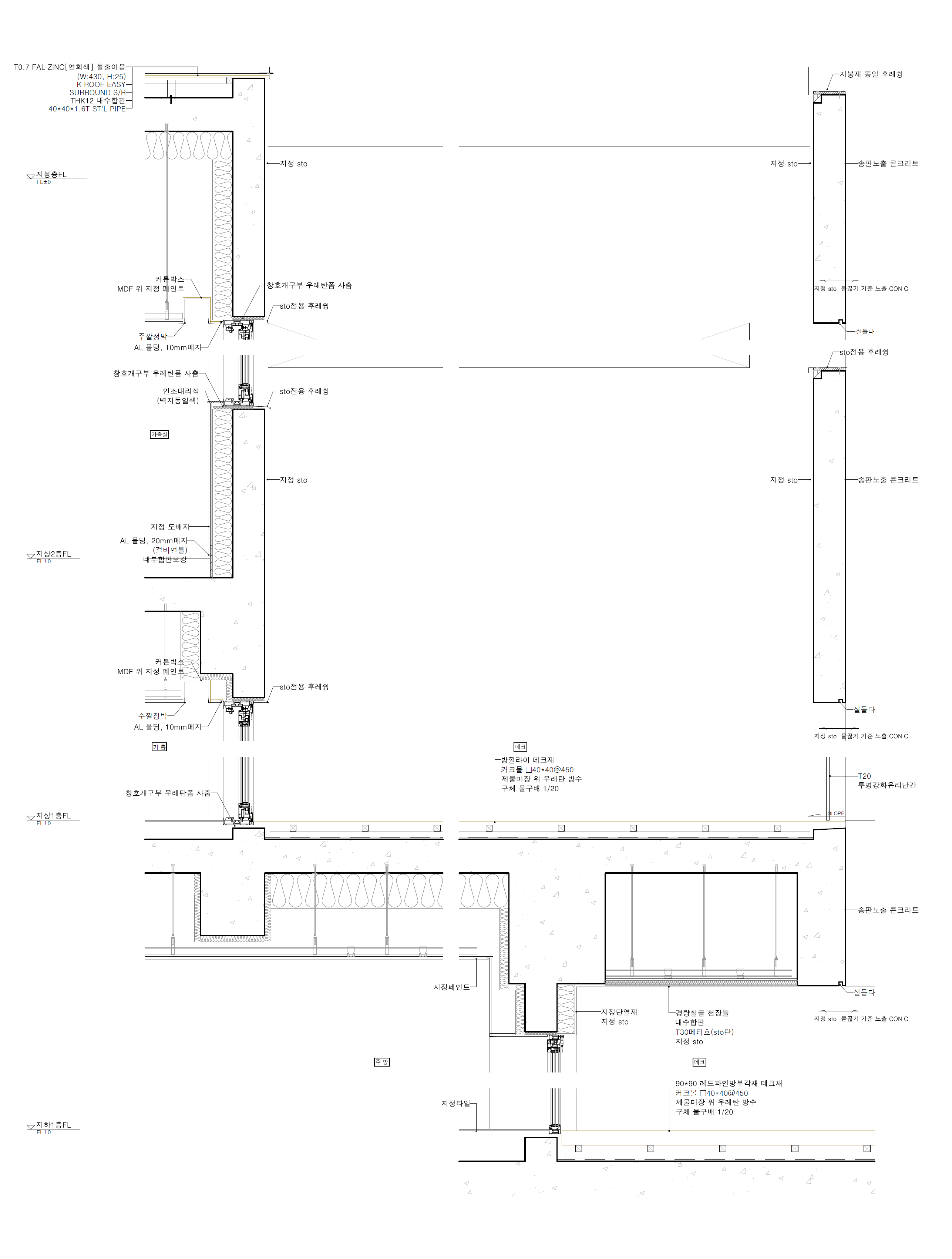
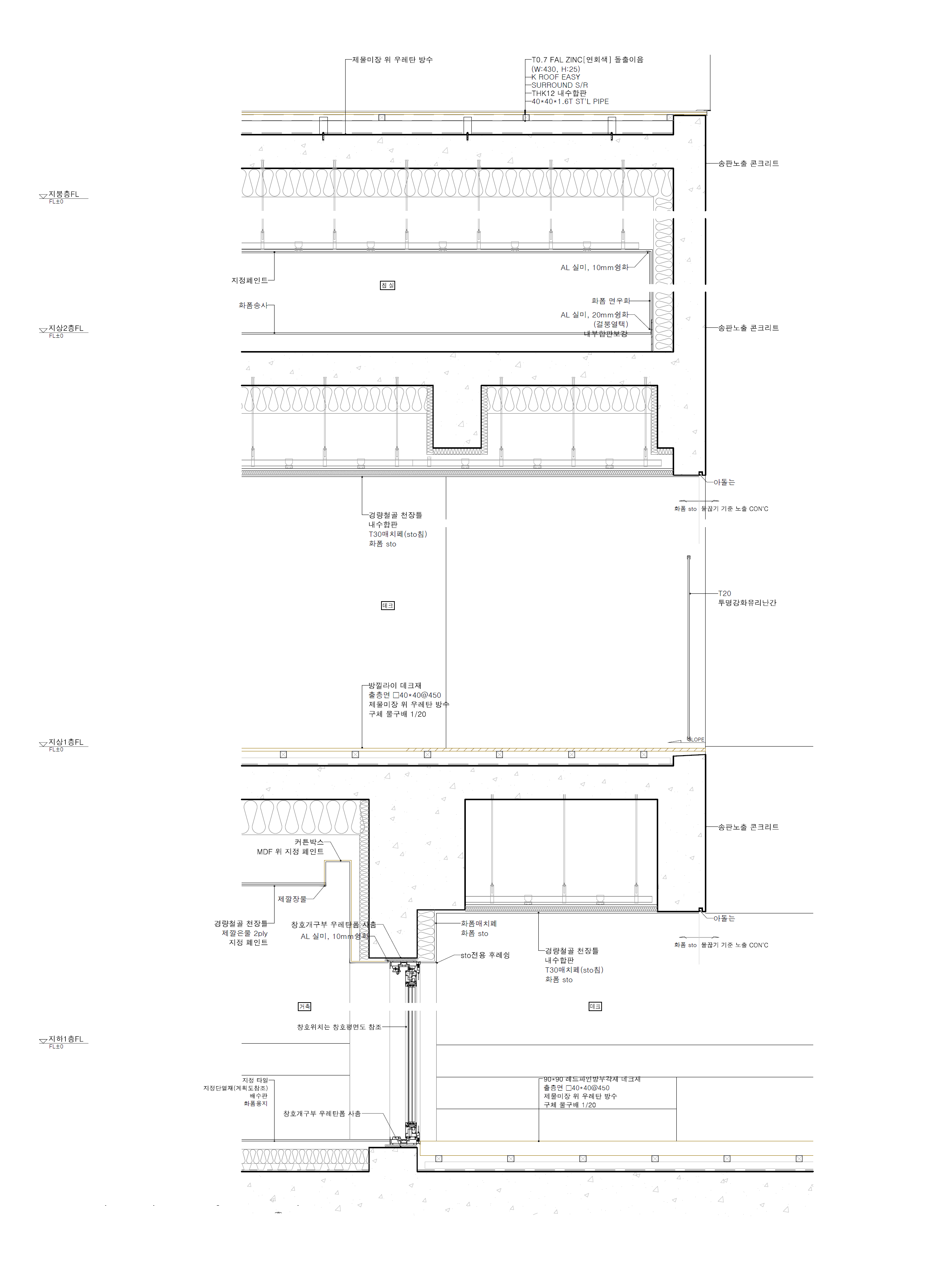
Y HOUSE
Y House is a house that the CEO of Company D built for their employees, and it is a place to live and rest in a space that harmonizes with the natural landscape. The architect designed a space that..
anc.masilwide.com






Architects DANUpartners, AR-associates
Location Yangyang-gun, Gangwon-do, Republic of Korea
Completion 2019. 01
Photographer Yousub Song
'Detail' 카테고리의 다른 글
| [Exterior Wall, Staircase] ELEVEN (0) | 2022.04.08 |
|---|---|
| [Sunken, Exterior Wall] 1+4 HOUSE (0) | 2022.04.07 |
| [Exterior Wall] SAENGGAK OF SONGHAK-RI (0) | 2022.04.05 |
| [Roof, Exterior Wall] RED HOUSE (0) | 2022.03.28 |
| [Exterior Wall, Louver] SANGDAE-DONG HOUSE (0) | 2022.03.25 |
마실와이드 | 등록번호 : 서울, 아03630 | 등록일자 : 2015년 03월 11일 | 마실와이드 | 발행ㆍ편집인 : 김명규 | 청소년보호책임자 : 최지희 | 발행소 : 서울시 마포구 월드컵로8길 45-8 1층 | 발행일자 : 매일



