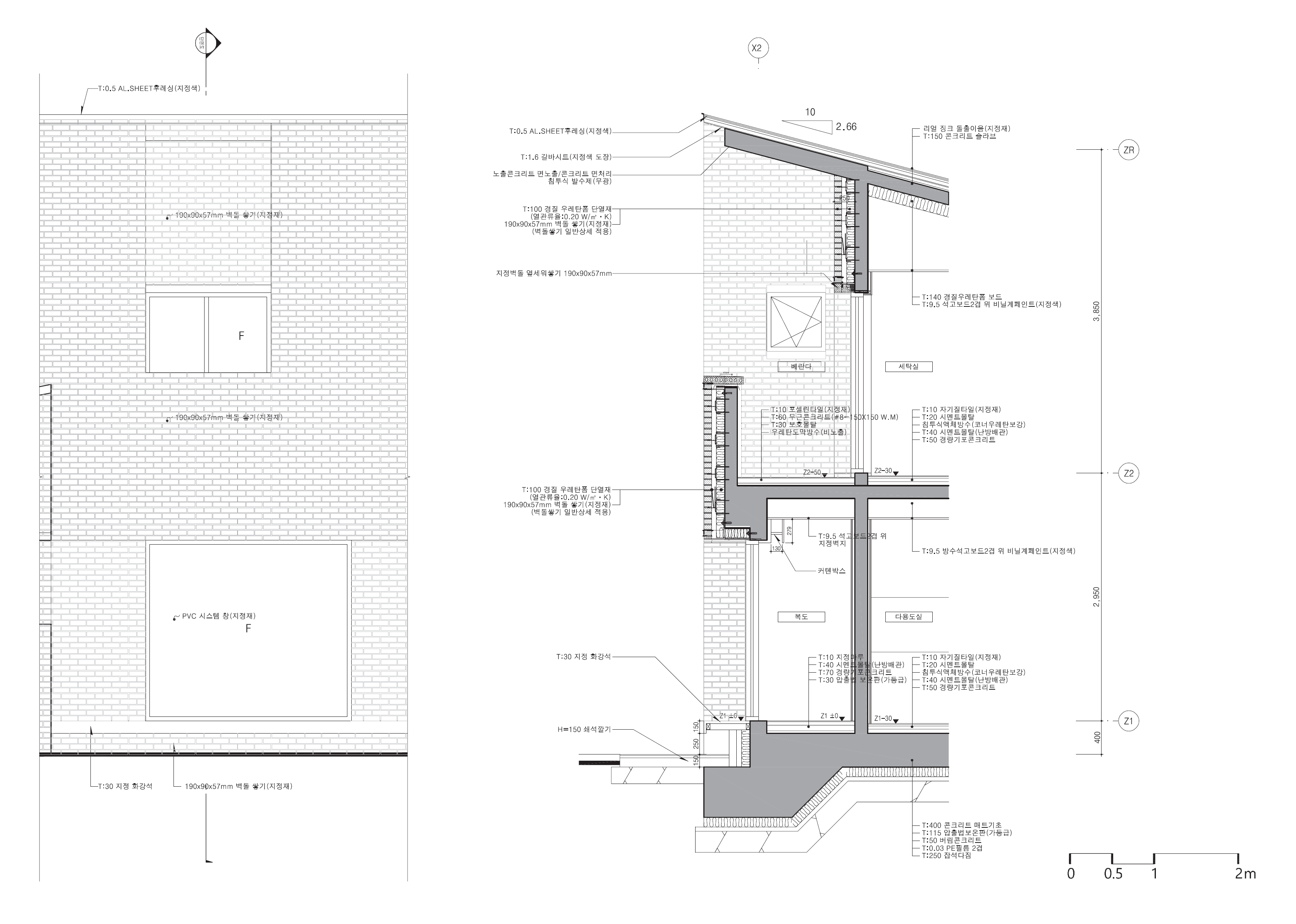
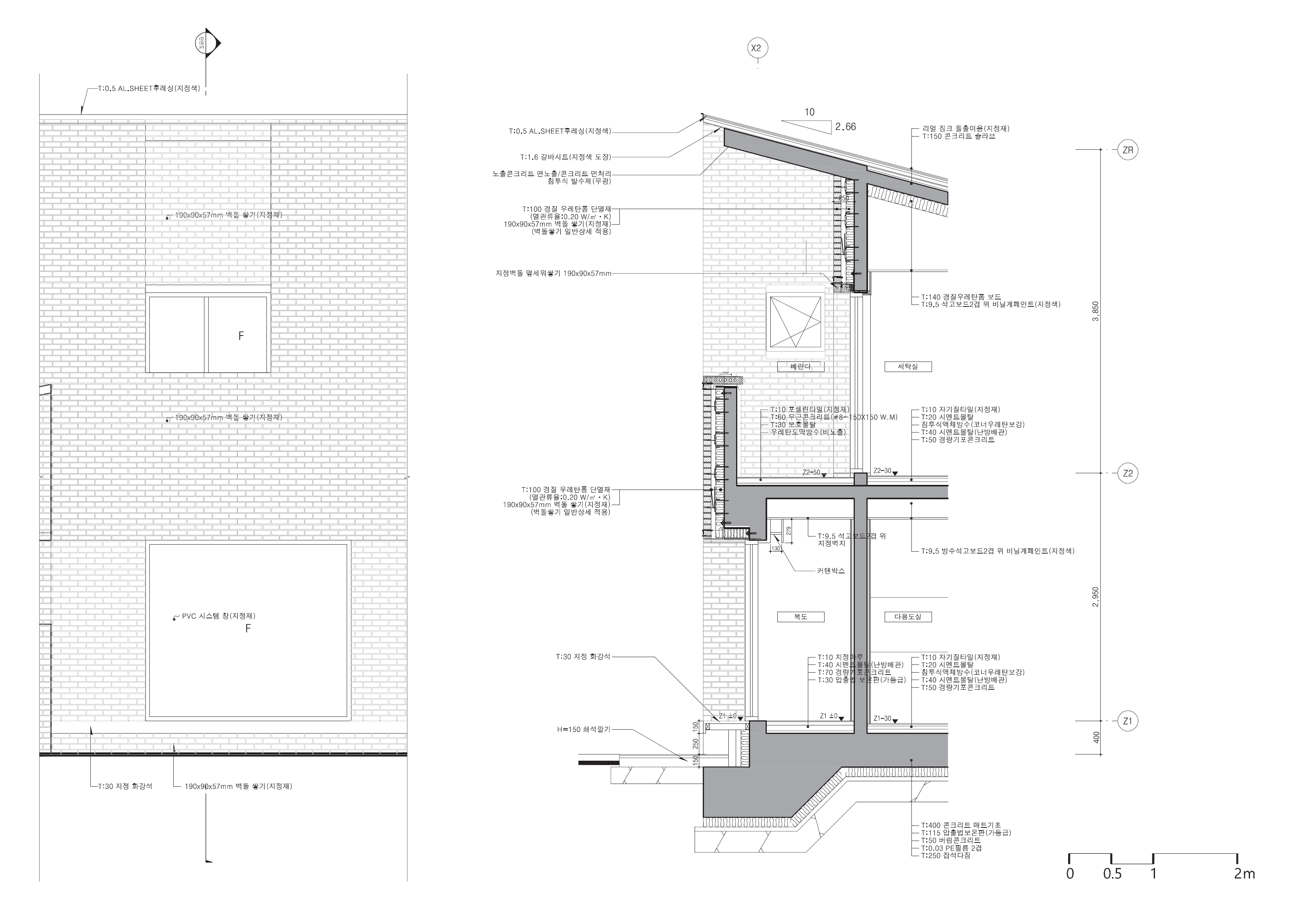
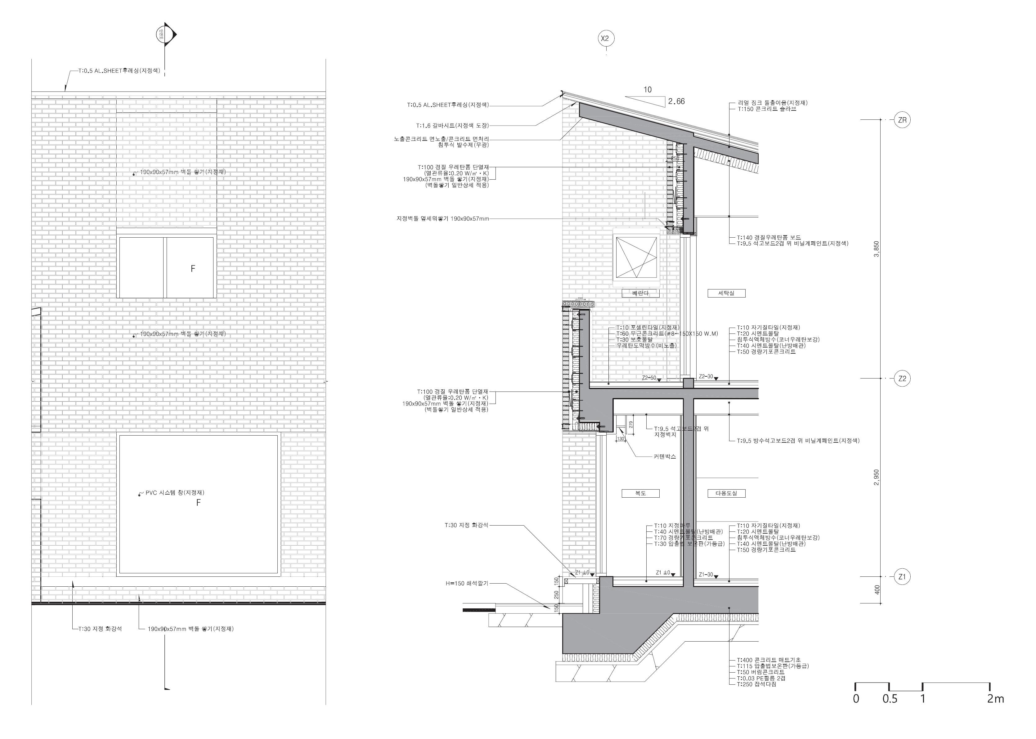
SAENGGAK OF SONGHAK-RI
Saenggak of Songhak-ri in Yangpyeong is a town community and townhouse made to allow parents, who share concerns and thoughts on a good environment that the children have to live in, to share their..
anc.masilwide.com


Archotects SOSU ARCHITECTS
Location Songhak-ri, Gangsang-myeon, Yangpyeong-gun, Gyeonggi-do, Republic of Korea
Completion 2018. 09 - 2020. 09
Photographer studio espacio, SOSU ARCHITECTS
반응형
'Detail' 카테고리의 다른 글
| [Sunken, Exterior Wall] 1+4 HOUSE (0) | 2022.04.07 |
|---|---|
| [Section] Y HOUSE (0) | 2022.04.06 |
| [Roof, Exterior Wall] RED HOUSE (0) | 2022.03.28 |
| [Exterior Wall, Louver] SANGDAE-DONG HOUSE (0) | 2022.03.25 |
| [Roof, Exterior Wall, Floor] DAOLJAE (0) | 2022.03.24 |
마실와이드 | 등록번호 : 서울, 아03630 | 등록일자 : 2015년 03월 11일 | 마실와이드 | 발행ㆍ편집인 : 김명규 | 청소년보호책임자 : 최지희 | 발행소 : 서울시 마포구 월드컵로8길 45-8 1층 | 발행일자 : 매일



