YONGIN JUKJEON HOUSE
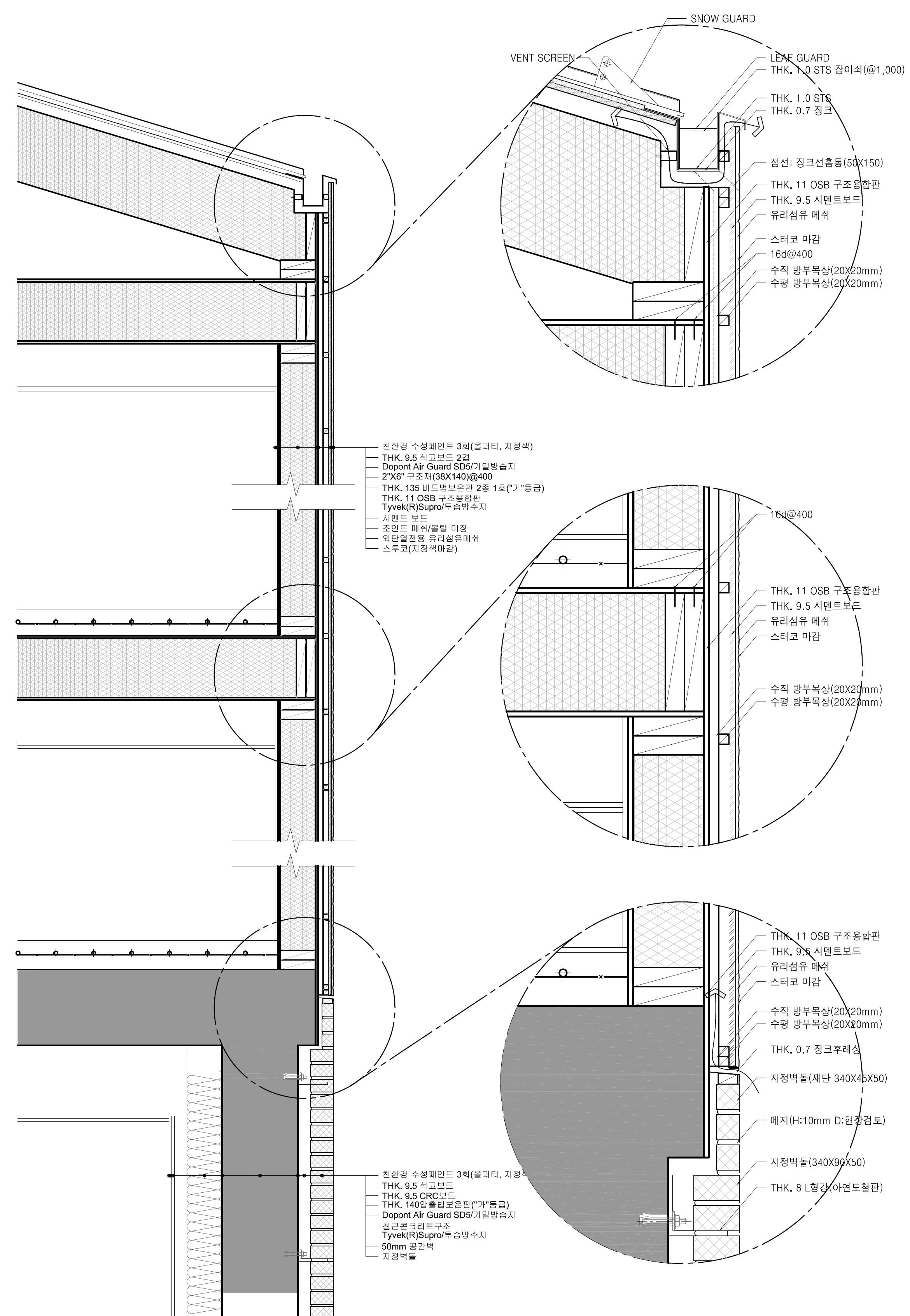
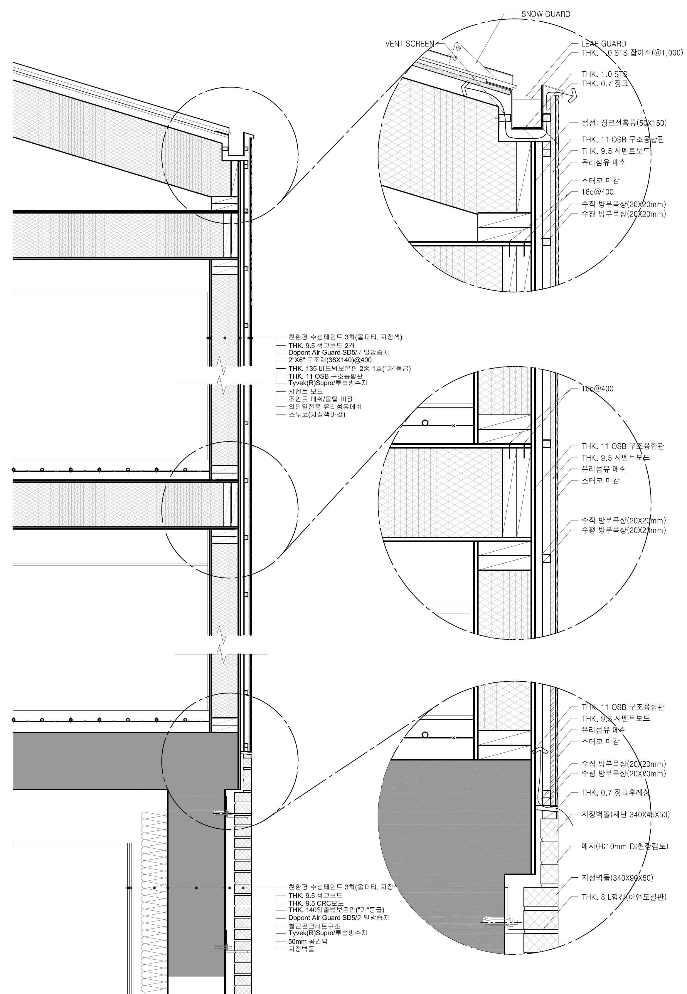
Yongin House is situated on a detached housing site in Jukjeon-dong’s housing site development project area. Located on the access road of this housing complex, The house has three of its sides fa..
anc.masilwide.com






Architects Simplex Architecture
Location Jukjeon-ro, Suji-gu, Yongin-si, Gyenggi-do, Republic of Korea
Completion 2020. 05
Photographer Yousub Song
반응형
'Detail' 카테고리의 다른 글
| [Section] MUNHO-RI HOUSE (0) | 2022.03.18 |
|---|---|
| [Section] JOYCE (0) | 2022.03.17 |
| [Skylight window, Handrail, Window, Canopy] TWO-YARDS HOUSE (0) | 2022.03.15 |
| [Exterior Wall, Stair] ARCABOOKS (0) | 2022.03.14 |
| [ROOF] SOOM ZIP (0) | 2022.03.11 |
마실와이드 | 등록번호 : 서울, 아03630 | 등록일자 : 2015년 03월 11일 | 마실와이드 | 발행ㆍ편집인 : 김명규 | 청소년보호책임자 : 최지희 | 발행소 : 서울시 마포구 월드컵로8길 45-8 1층 | 발행일자 : 매일



