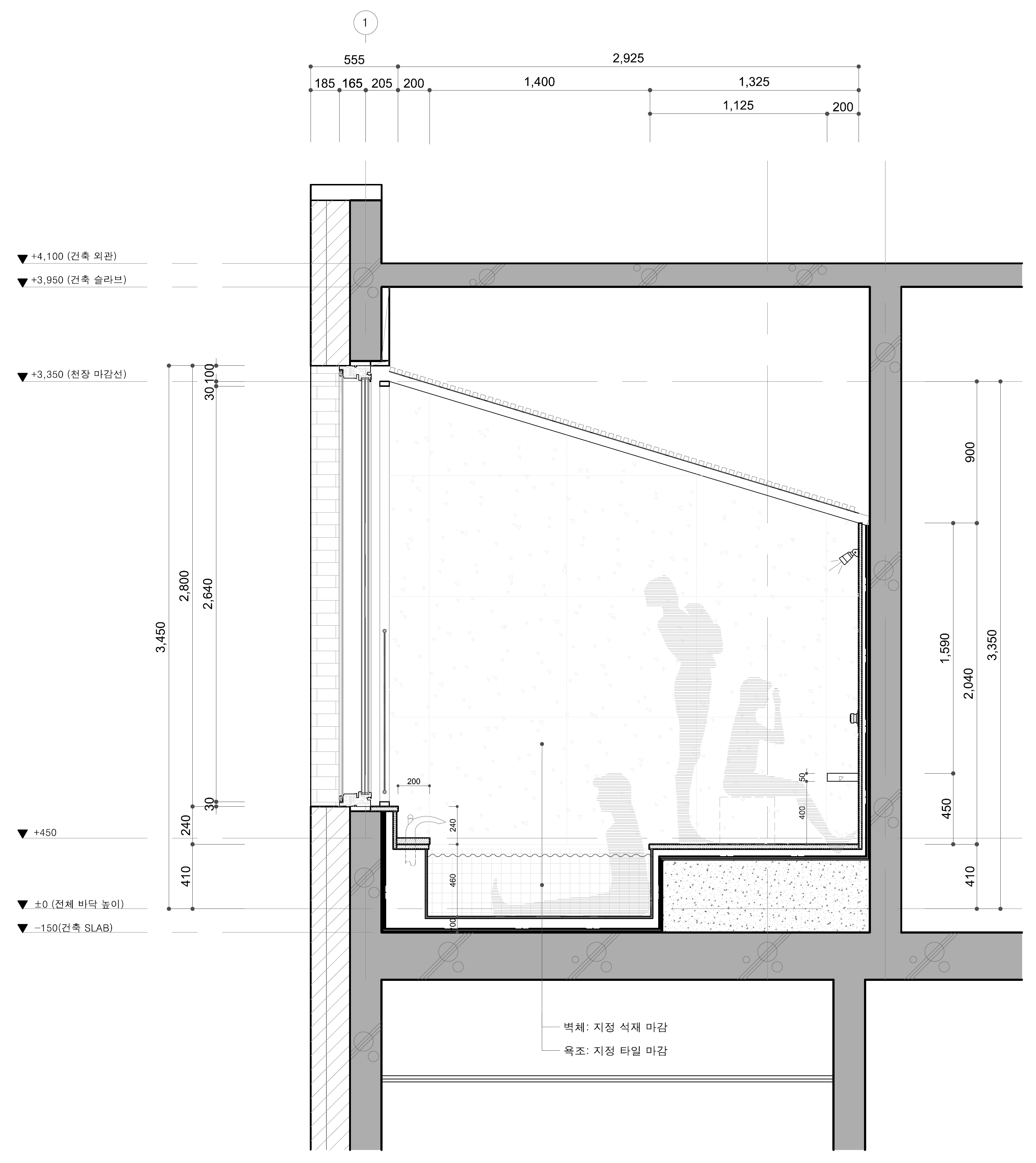
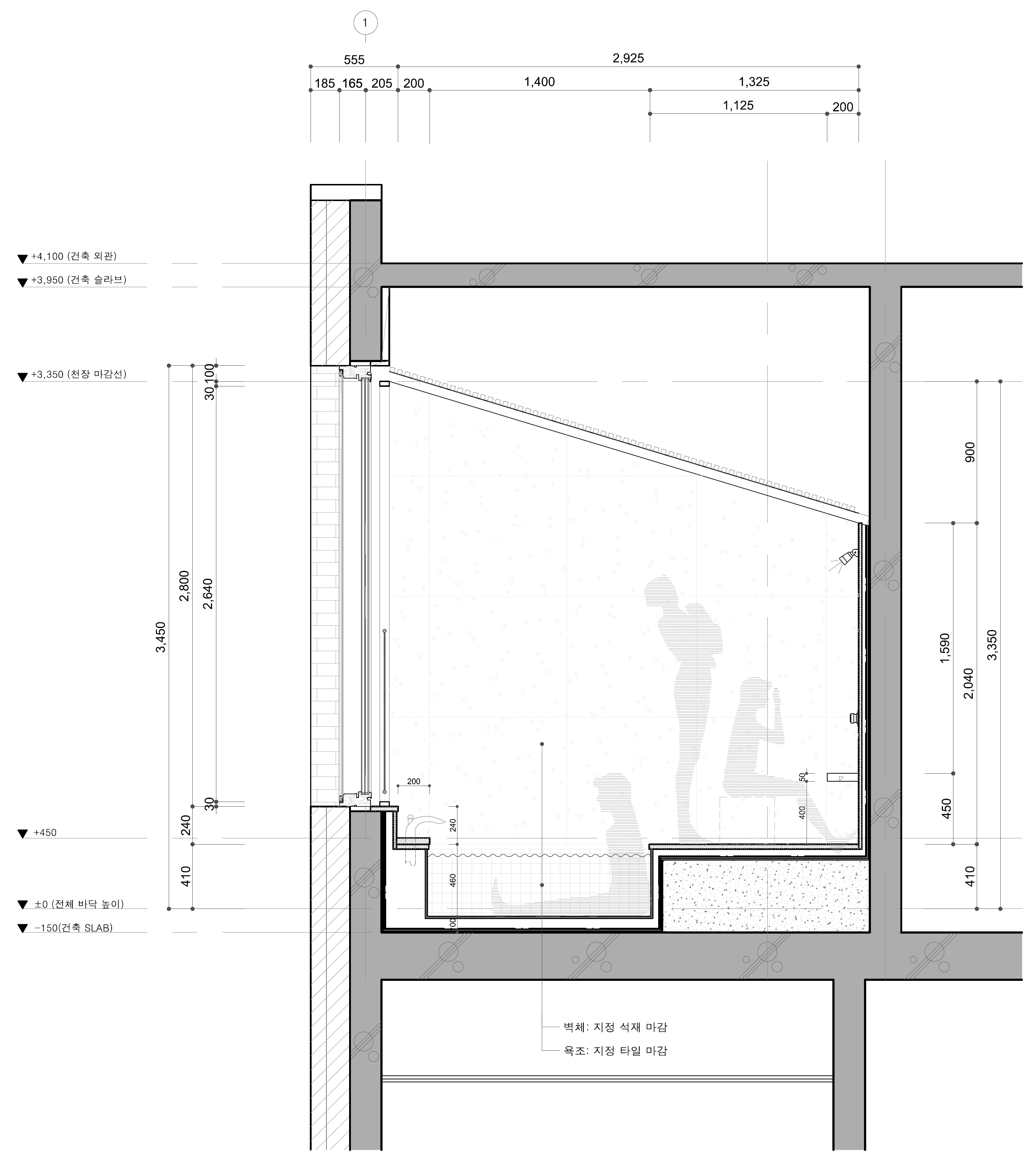
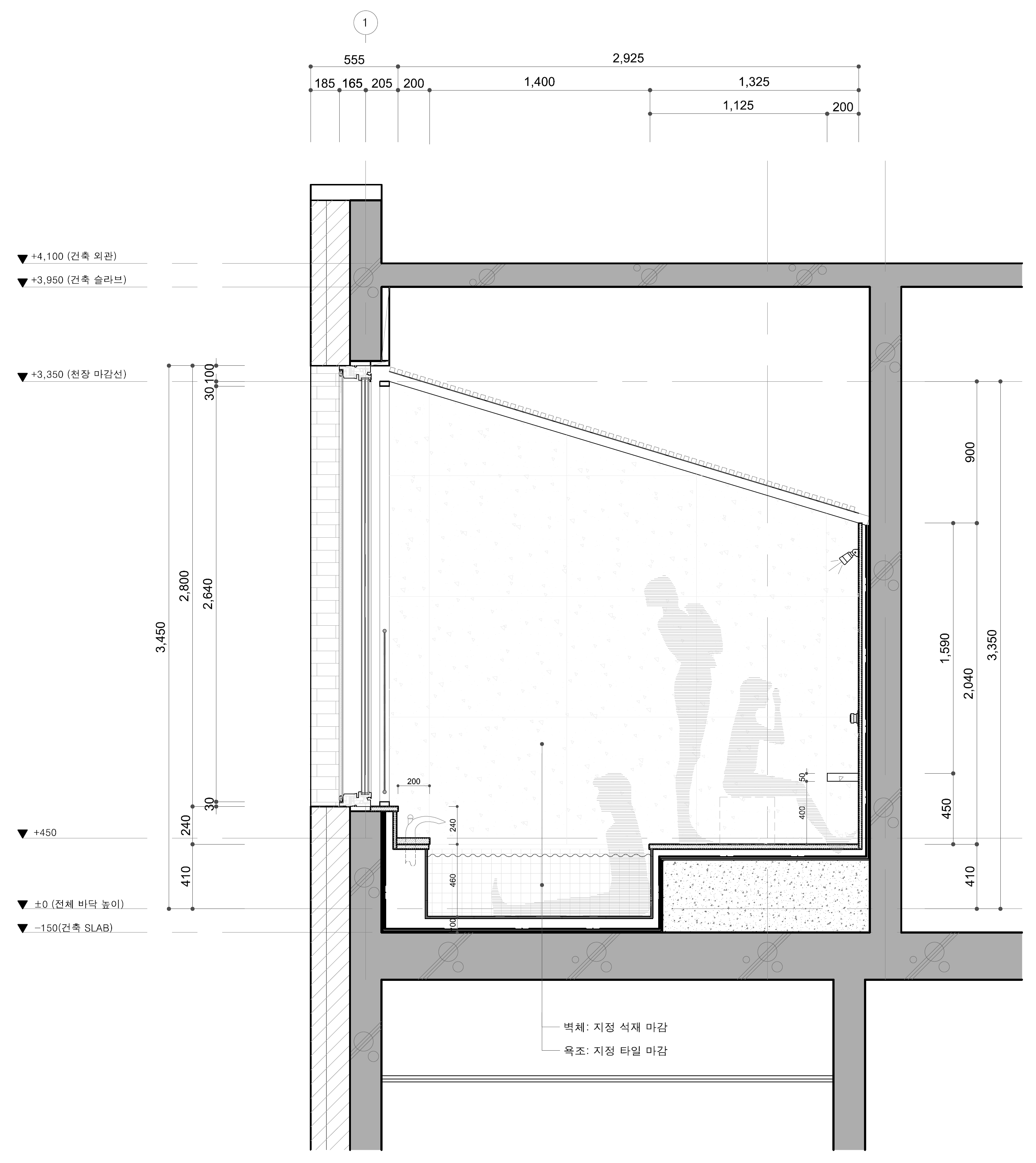
MUNHO-RI HOUSE
Munho-ri house is a quiet hideout that would not be revealed. The house provides the sunset view which is dramatic scenery from the window of the small bedroom, not only that. The site is overlooki..
anc.masilwide.com


Architects STUDIOVASE, ToWoo Architects & Consultant
Location Munho-ri, Seojong-myeon, Yangpyeong-gun, Gyeonggi-do
Completion 2020
Photographer Woojin Park
'Detail' 카테고리의 다른 글
| [Section] STACKED HOUSE (0) | 2022.03.22 |
|---|---|
| [Roof, Exterior Wall, Section] WANJU HOUSE (1) | 2022.03.21 |
| [Section] JOYCE (0) | 2022.03.17 |
| [Roof, Exterior Wall, Window] YONGIN JUKJEON HOUSE (0) | 2022.03.16 |
| [Skylight window, Handrail, Window, Canopy] TWO-YARDS HOUSE (0) | 2022.03.15 |
마실와이드 | 등록번호 : 서울, 아03630 | 등록일자 : 2015년 03월 11일 | 마실와이드 | 발행ㆍ편집인 : 김명규 | 청소년보호책임자 : 최지희 | 발행소 : 서울시 마포구 월드컵로8길 45-8 1층 | 발행일자 : 매일



