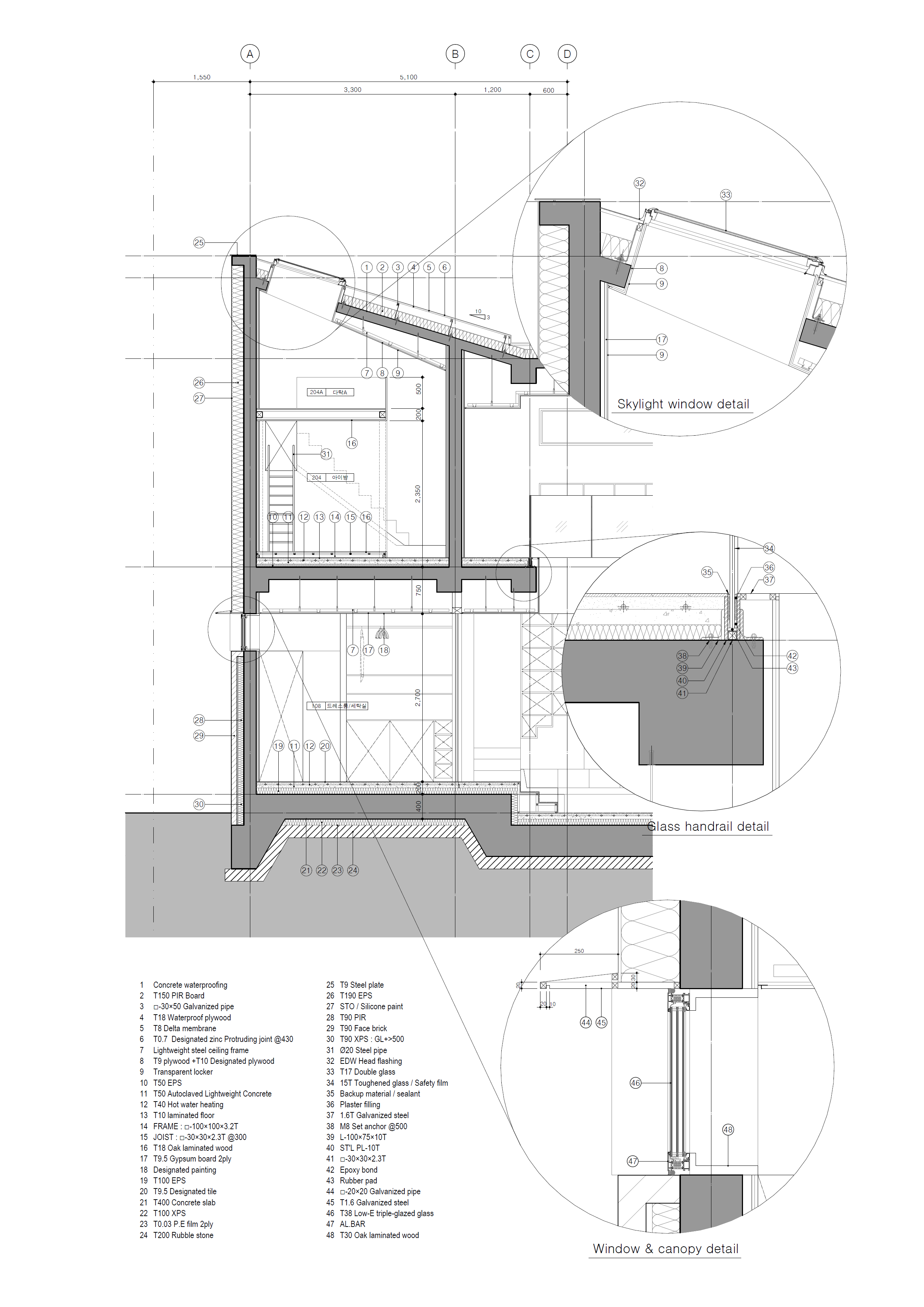
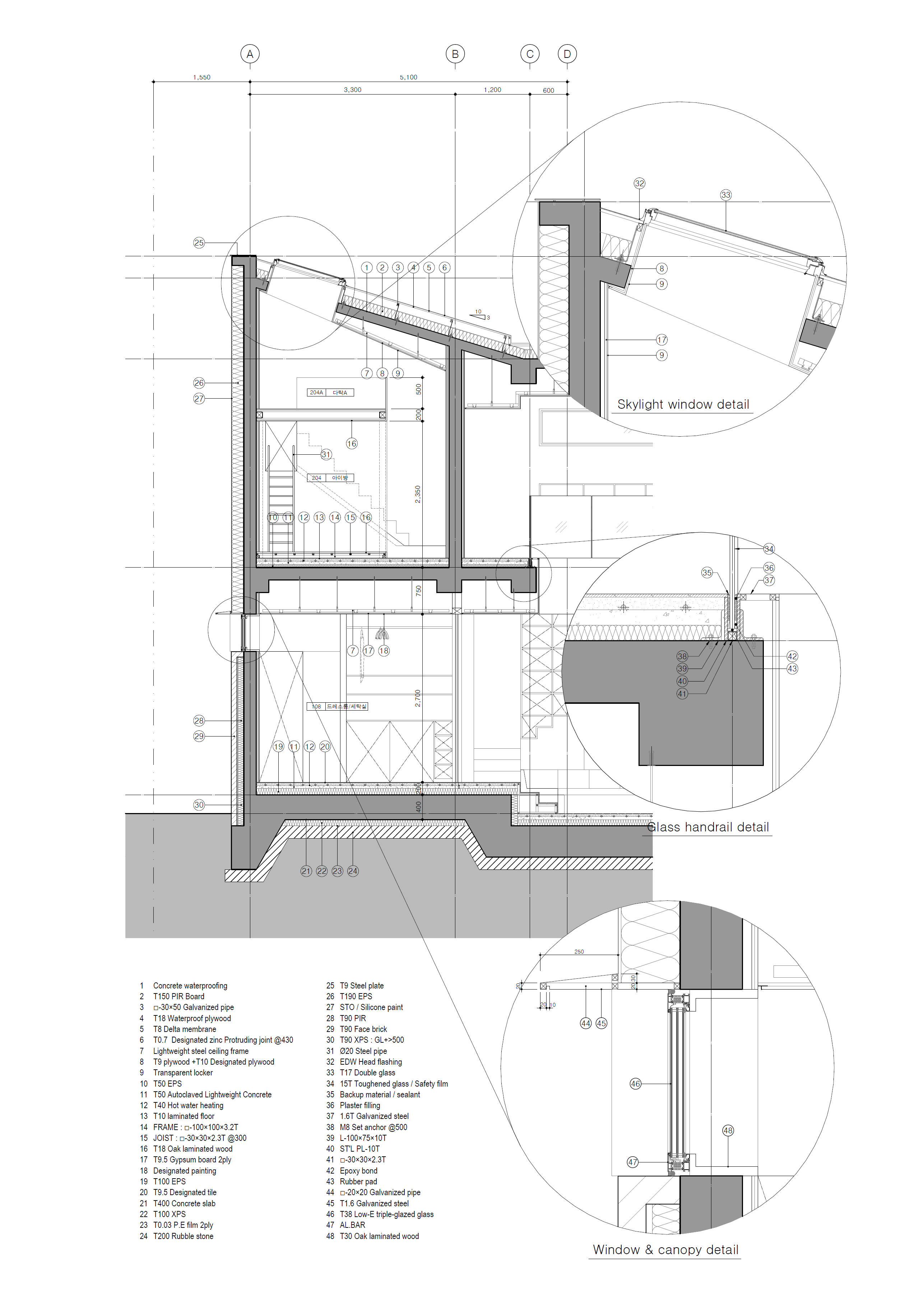
TWO-YARDS HOUSE
The Two-yards House is a new home for a couple with space for a child's unique life. The site is divided into a yard to look at and a yard to sit in. In the first yard, they can see the child from..
anc.masilwide.com



Architects Architects H2L
Location Asan-si, Chungcheongnam-do, Republic of Korea
Completion 2020. 10
Photographer Hyosook Chin
반응형
'Detail' 카테고리의 다른 글
| [Section] JOYCE (0) | 2022.03.17 |
|---|---|
| [Roof, Exterior Wall, Window] YONGIN JUKJEON HOUSE (0) | 2022.03.16 |
| [Exterior Wall, Stair] ARCABOOKS (0) | 2022.03.14 |
| [ROOF] SOOM ZIP (0) | 2022.03.11 |
| [Exterior Wall] WALDEN HOUSE (0) | 2022.03.10 |
마실와이드 | 등록번호 : 서울, 아03630 | 등록일자 : 2015년 03월 11일 | 마실와이드 | 발행ㆍ편집인 : 김명규 | 청소년보호책임자 : 최지희 | 발행소 : 서울시 마포구 월드컵로8길 45-8 1층 | 발행일자 : 매일



