HERMINE
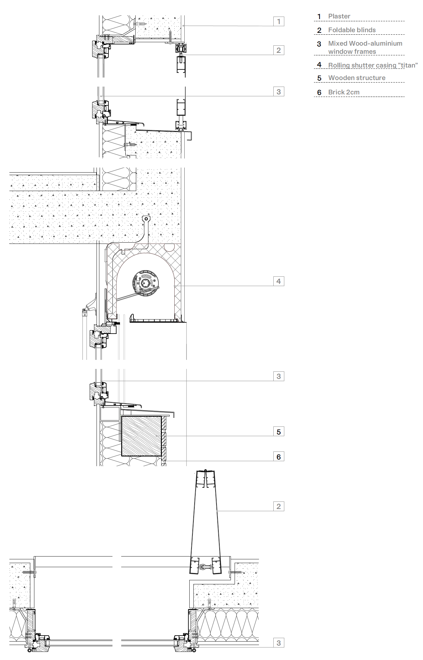
The Hermine is built in Gentilly on the outskirts of Paris. The project prioritizes pedestrian use and sustainable transportations (Bikes, seaways, pedestrians, etc…) linked..
anc.masilwide.com


Architects tectone architectes urbanistes
Location Gentilly, Paris, France
Completion 2019
Photographers Pierre LExcellent
반응형
'Detail' 카테고리의 다른 글
| [Winndow, Balcony] ZELLIGE (0) | 2022.03.04 |
|---|---|
| [Facade] The Village (0) | 2022.03.03 |
| [Loggia, Balcony] Viale Giulini Affordable Housing (0) | 2022.02.28 |
| [Facade, Window, Veranda] Bottière Chénaie (0) | 2022.02.25 |
| [Exterior Wall] Essenza (0) | 2022.02.24 |
마실와이드 | 등록번호 : 서울, 아03630 | 등록일자 : 2015년 03월 11일 | 마실와이드 | 발행ㆍ편집인 : 김명규 | 청소년보호책임자 : 최지희 | 발행소 : 서울시 마포구 월드컵로8길 45-8 1층 | 발행일자 : 매일



