ZELLIGE
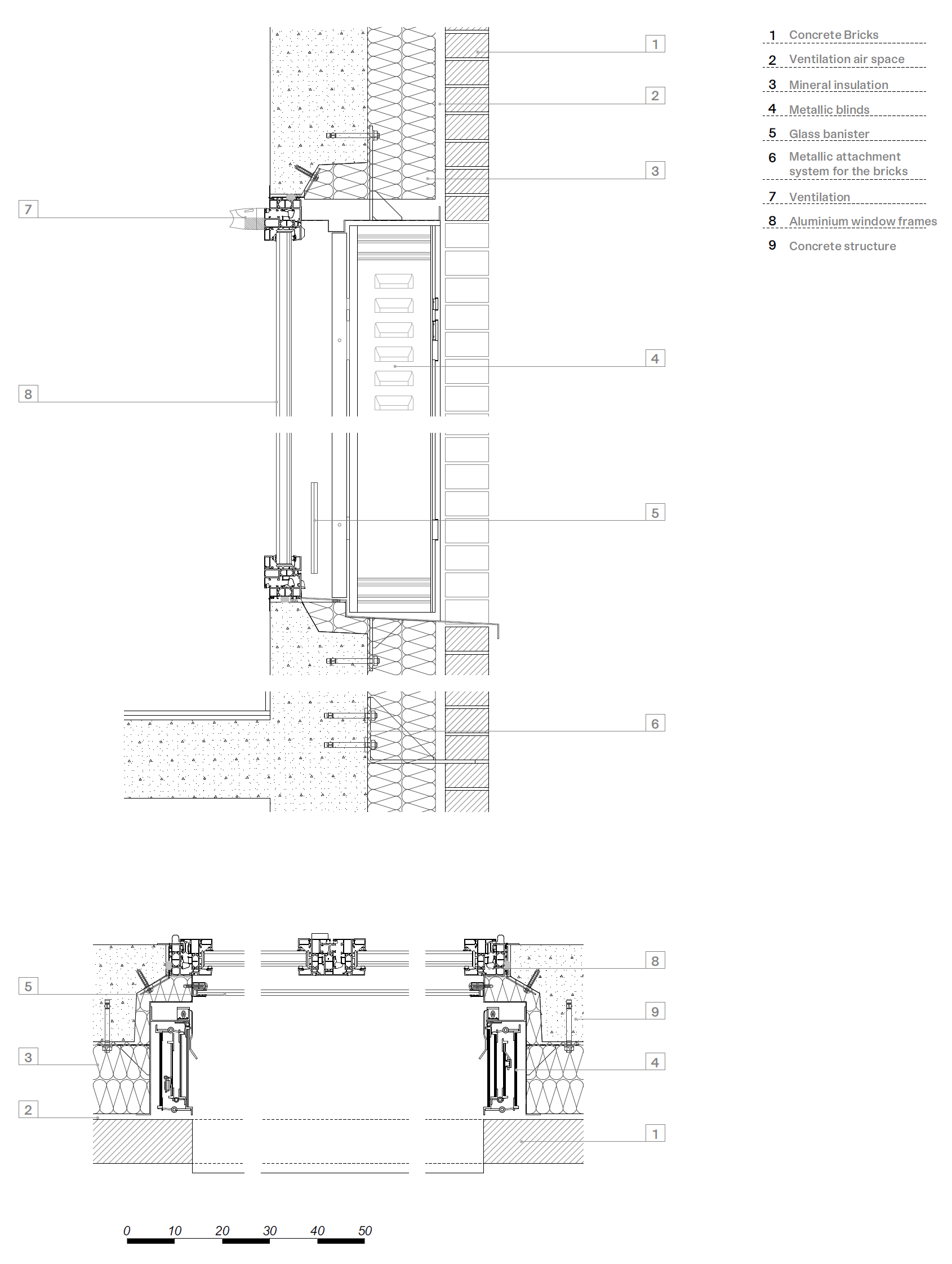
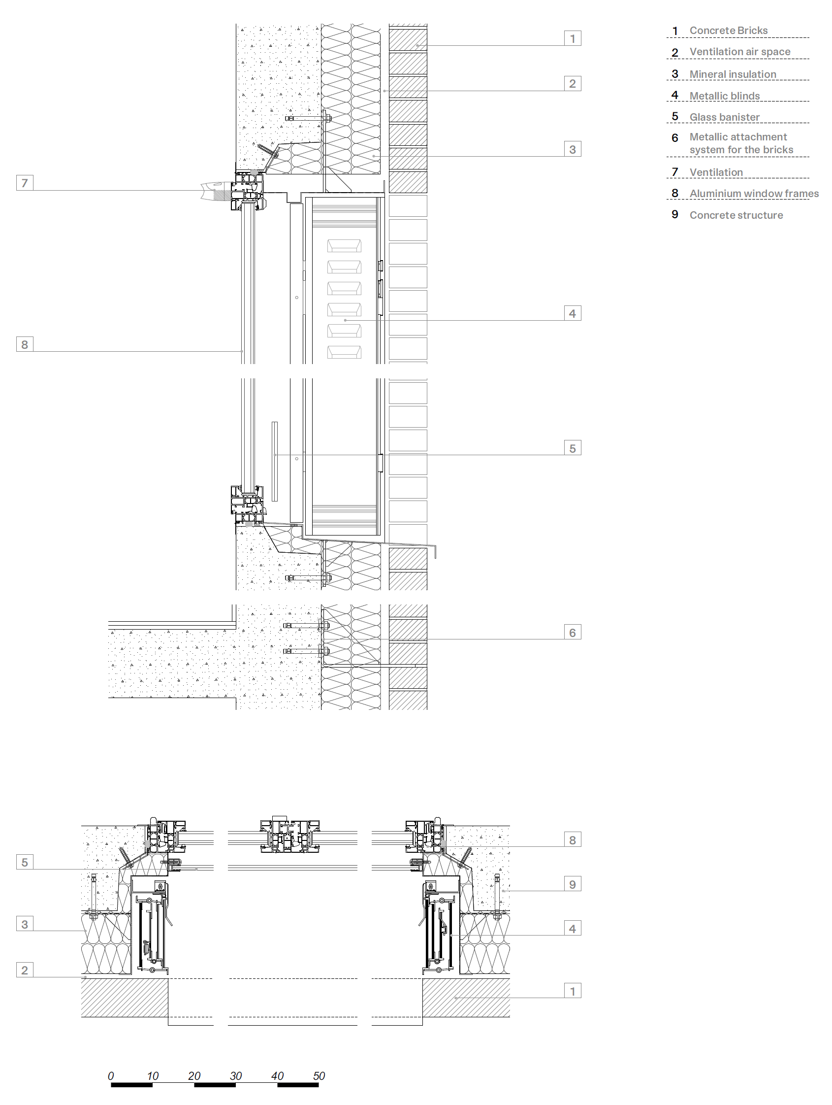
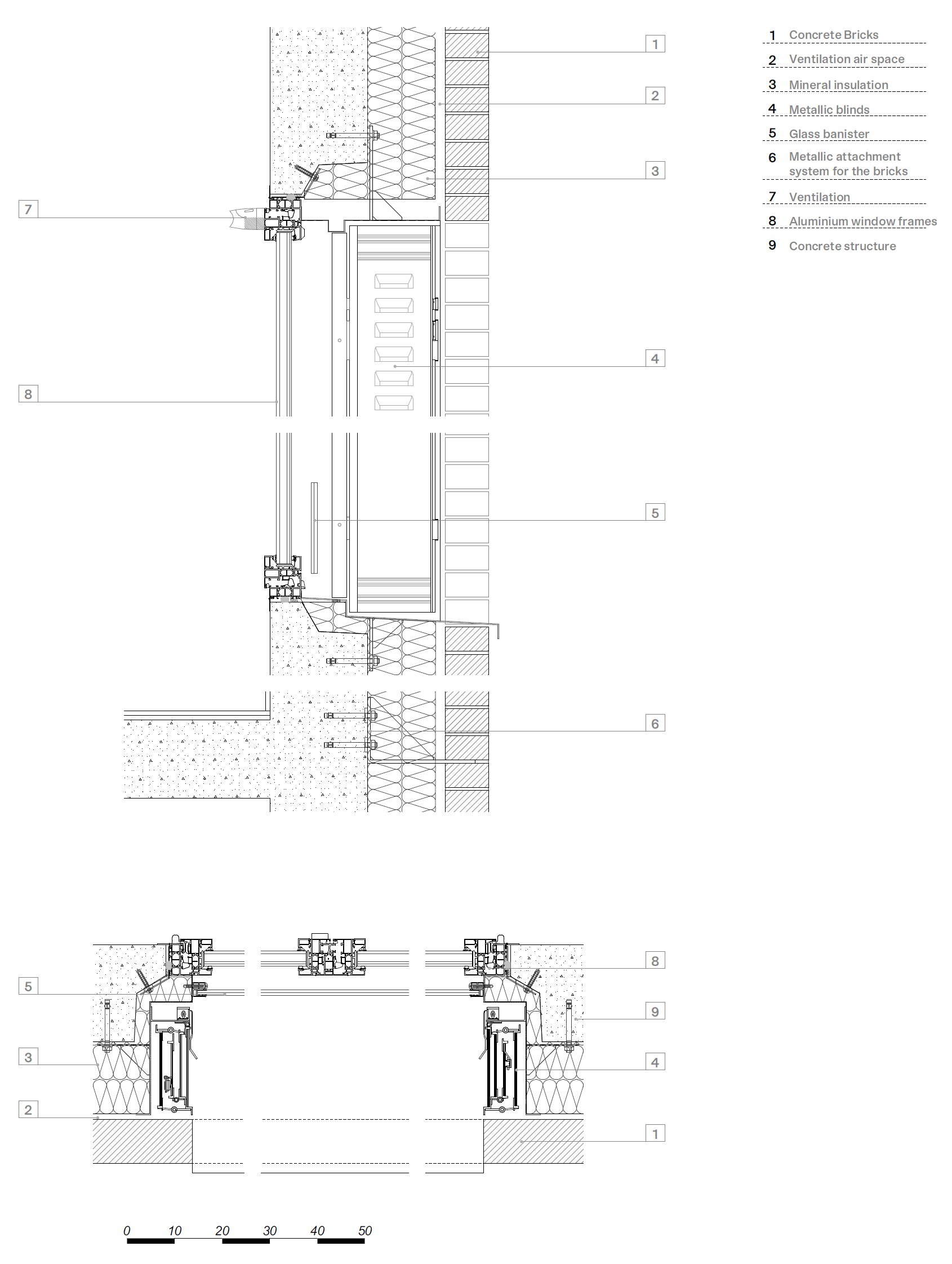
This 100 apartments project complex on Nantes island was designed through the collaboration of tectōne and tact architecture studios. Nantes island is a situated in Nantes city in western France a..
anc.masilwide.com




Architects tectone architectes urbanistes, tact architectes
Location Nantes, France
Completion 2020
Photographer Cyrille Lallement, Franck Badaire
반응형
'Detail' 카테고리의 다른 글
| [Canopy Joint] GANGHOEHEON (0) | 2022.03.08 |
|---|---|
| [Exterior Wall, Window] Summmoru (0) | 2022.03.07 |
| [Facade] The Village (0) | 2022.03.03 |
| [Window] HERMINE (0) | 2022.03.02 |
| [Loggia, Balcony] Viale Giulini Affordable Housing (0) | 2022.02.28 |
마실와이드 | 등록번호 : 서울, 아03630 | 등록일자 : 2015년 03월 11일 | 마실와이드 | 발행ㆍ편집인 : 김명규 | 청소년보호책임자 : 최지희 | 발행소 : 서울시 마포구 월드컵로8길 45-8 1층 | 발행일자 : 매일



