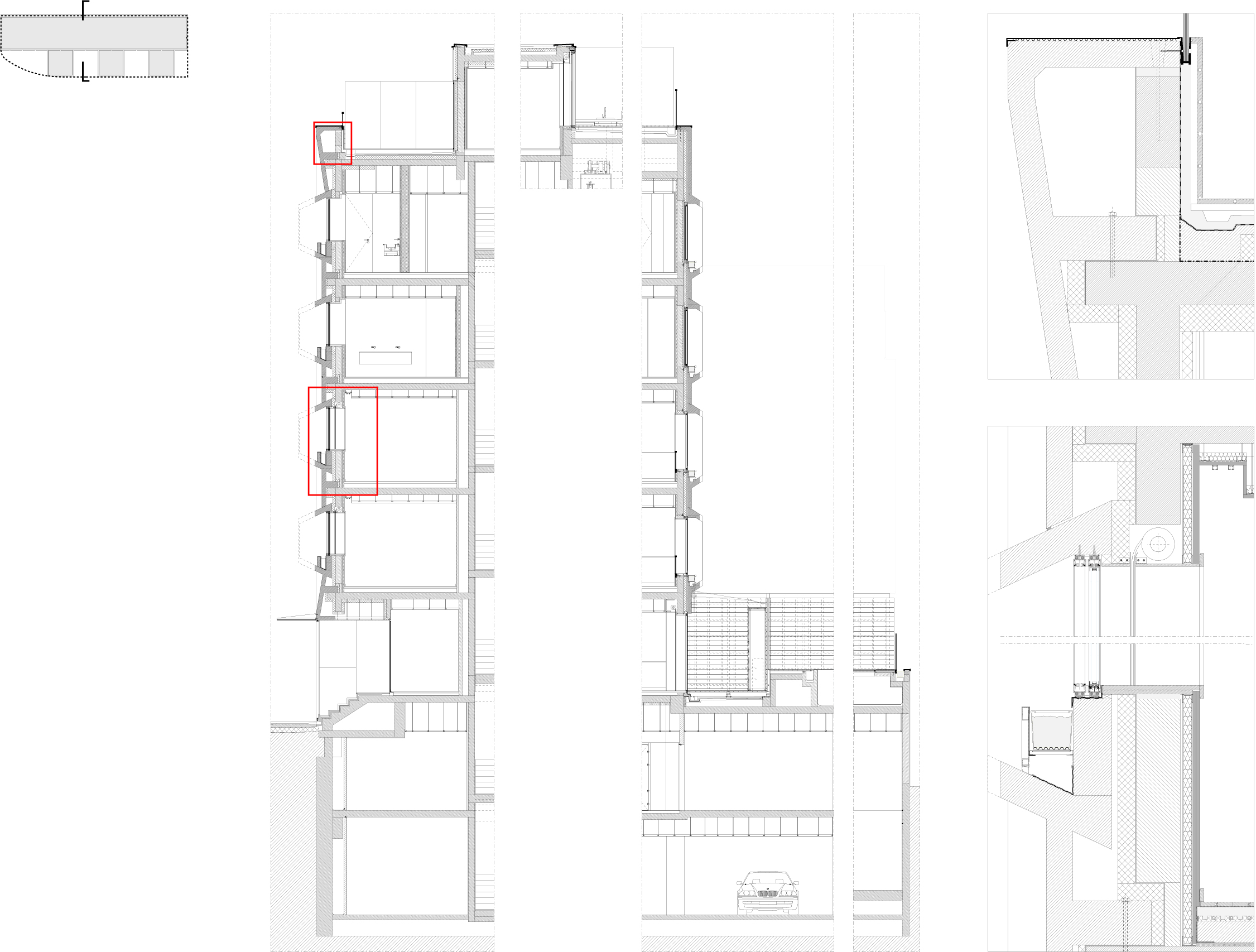
Essenza
Essenza is a luxury multifamily residential building located at the doorstep of Porto's City Park, in Portugal. Following all the guidelines and metrics defined by the Park's Urbanization Plan for..
anc.masilwide.com


Architects Ventura & Partners
Location Porto, Portugal
Completion 2020
Photographer Nelson Garrido
반응형
'Detail' 카테고리의 다른 글
| [Loggia, Balcony] Viale Giulini Affordable Housing (0) | 2022.02.28 |
|---|---|
| [Facade, Window, Veranda] Bottière Chénaie (0) | 2022.02.25 |
| [Exterior Wall, Balcony] IRRIGACIÓN 93 (0) | 2022.02.23 |
| [Exterior Wall, Balcony] GNR_IL GENERALE (0) | 2022.02.22 |
| [Facade, Window, Section] Sena House (0) | 2022.02.21 |
마실와이드 | 등록번호 : 서울, 아03630 | 등록일자 : 2015년 03월 11일 | 마실와이드 | 발행ㆍ편집인 : 김명규 | 청소년보호책임자 : 최지희 | 발행소 : 서울시 마포구 월드컵로8길 45-8 1층 | 발행일자 : 매일



