GNR_IL GENERALE
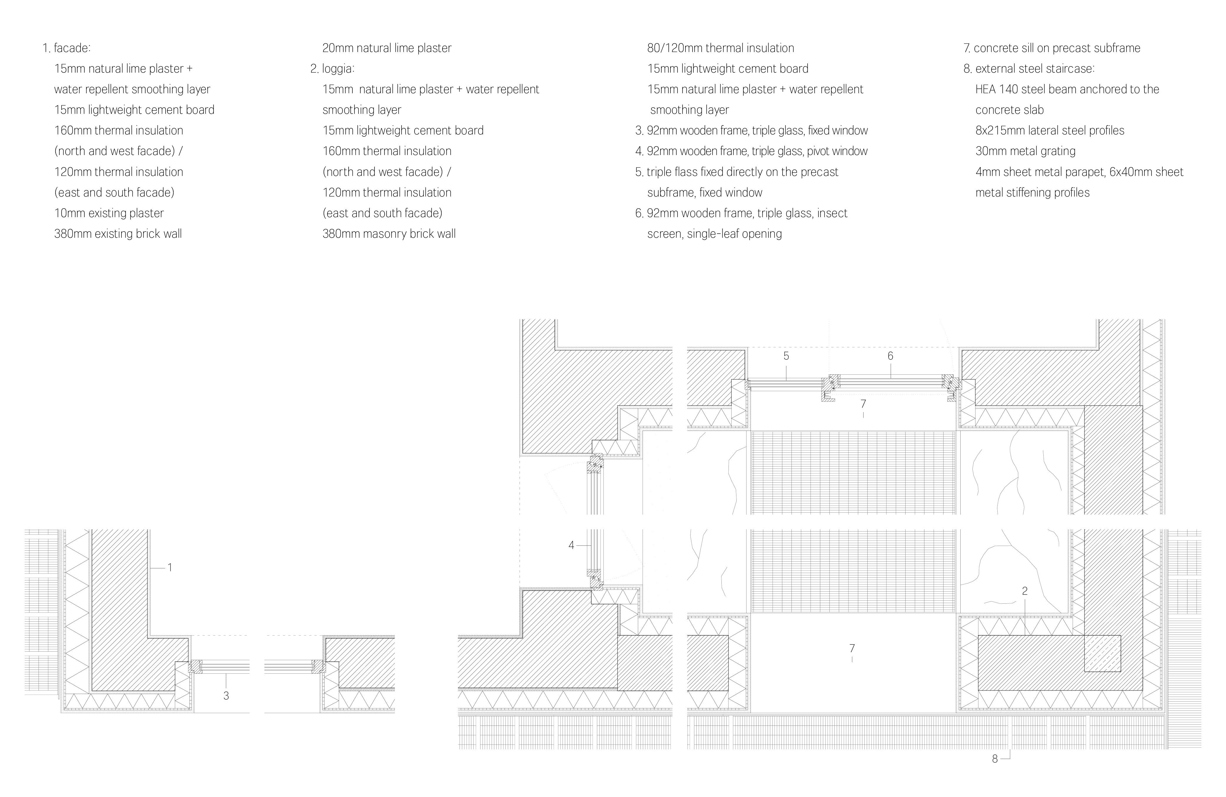
The works consist of energy efficiency upgrading, structural renovation, along with the total restyling of a residential building from the Sixties, which can be divided into three independent apart..
anc.masilwide.com




Architects Archisbang
Location Ivrea, Turin, Italy
Completion 2019. 12
Photographer Aldo Amoretti
반응형
'Detail' 카테고리의 다른 글
| [Exterior Wall] Essenza (0) | 2022.02.24 |
|---|---|
| [Exterior Wall, Balcony] IRRIGACIÓN 93 (0) | 2022.02.23 |
| [Facade, Window, Section] Sena House (0) | 2022.02.21 |
| [Section] Family House in the River Valley (0) | 2022.02.18 |
| [Exterior Wall] LLUVIA 224 (0) | 2022.02.17 |
마실와이드 | 등록번호 : 서울, 아03630 | 등록일자 : 2015년 03월 11일 | 마실와이드 | 발행ㆍ편집인 : 김명규 | 청소년보호책임자 : 최지희 | 발행소 : 서울시 마포구 월드컵로8길 45-8 1층 | 발행일자 : 매일



