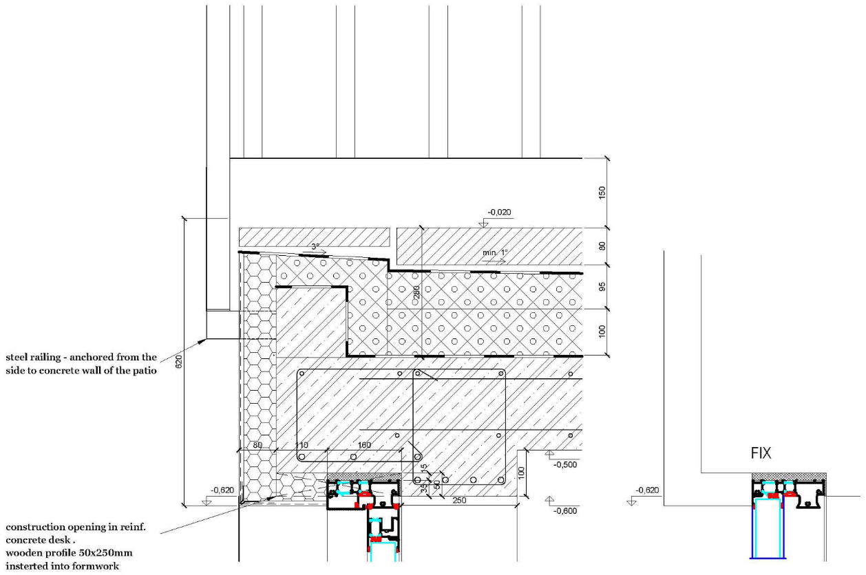
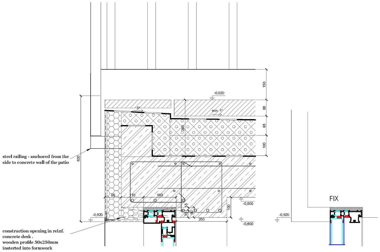
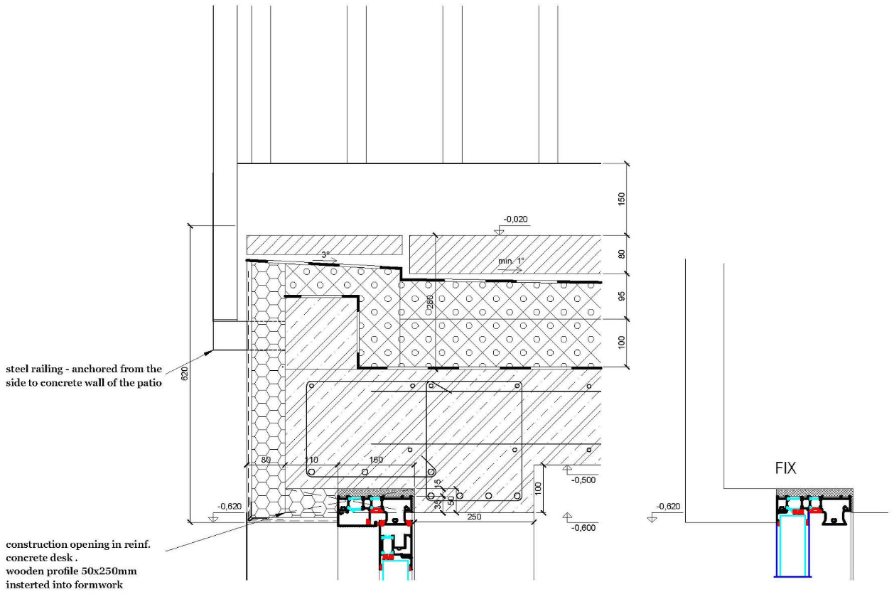
House Behind the Wall
It all started with the clients’ purchase of a house over a hundred years old. The traditional building with a gable roof was at its end. Its stone basement was still in a good condition so we dec..
anc.masilwide.com






Architect Mjölk architekti
Location Liberec, Czech Republic
Completion 2018
Photographer BoysPlayNice
반응형
'Detail' 카테고리의 다른 글
| [Section, Roof, Window] Santo Tirso House (0) | 2022.02.14 |
|---|---|
| [Roof Eave, Balcony, Handrail] House G (0) | 2022.02.11 |
| [Section] Weekend House in Beskydy (0) | 2022.02.09 |
| [Section, Joint] Sou House (0) | 2022.02.08 |
| [Section] Casa Gloma (0) | 2022.02.07 |
마실와이드 | 등록번호 : 서울, 아03630 | 등록일자 : 2015년 03월 11일 | 마실와이드 | 발행ㆍ편집인 : 김명규 | 청소년보호책임자 : 최지희 | 발행소 : 서울시 마포구 월드컵로8길 45-8 1층 | 발행일자 : 매일



