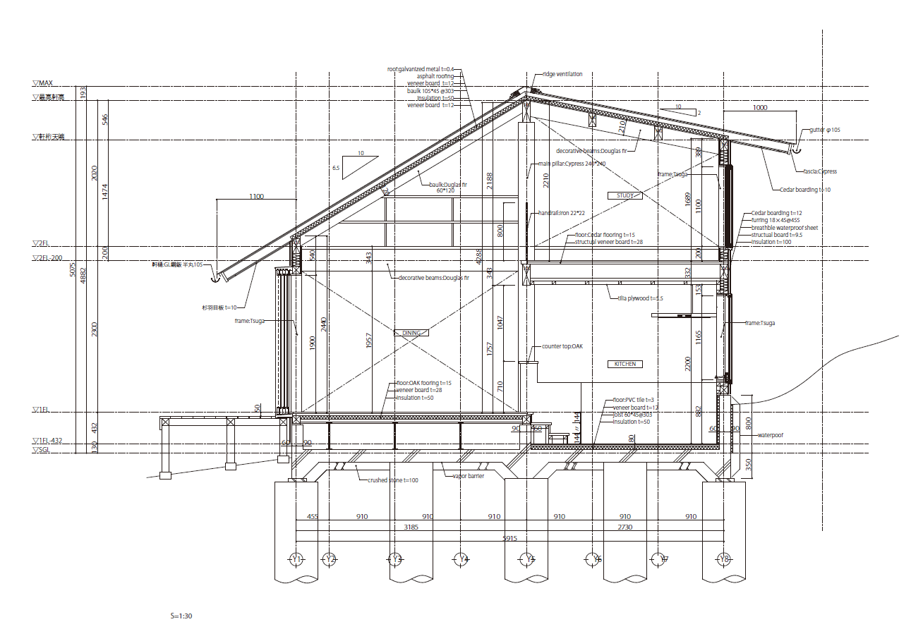
Sou House
Higashi-ikoma where surrounded by the ikoma-mountain and the Yada-hills still left some nature. On the other hand Higashi-ikoma is high-end residential as same as Gakuen- Toshi since it has been de..
anc.masilwide.com




Architects atelier thu
Location Ikoma-shi, Nara, Japan
Completion 2020. 04
Photographer atelier thu
반응형
'Detail' 카테고리의 다른 글
| [Section, Roof, Window] Santo Tirso House (0) | 2022.02.14 |
|---|---|
| [Roof Eave, Balcony, Handrail] House G (0) | 2022.02.11 |
| [Fixed Glazing, Floor Edge] House Behind the Wall (0) | 2022.02.10 |
| [Section] Weekend House in Beskydy (0) | 2022.02.09 |
| [Section] Casa Gloma (0) | 2022.02.07 |
마실와이드 | 등록번호 : 서울, 아03630 | 등록일자 : 2015년 03월 11일 | 마실와이드 | 발행ㆍ편집인 : 김명규 | 청소년보호책임자 : 최지희 | 발행소 : 서울시 마포구 월드컵로8길 45-8 1층 | 발행일자 : 매일



