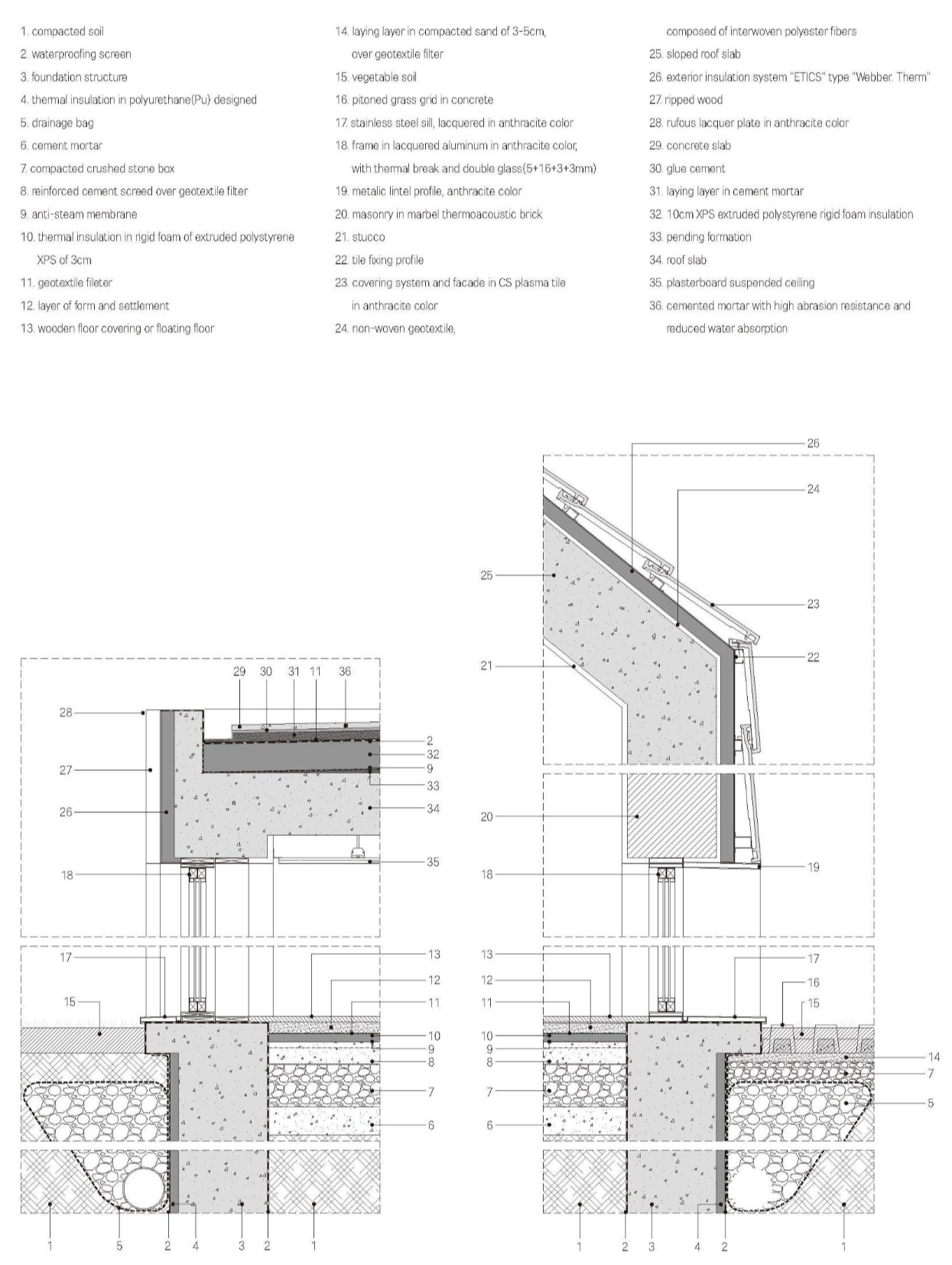
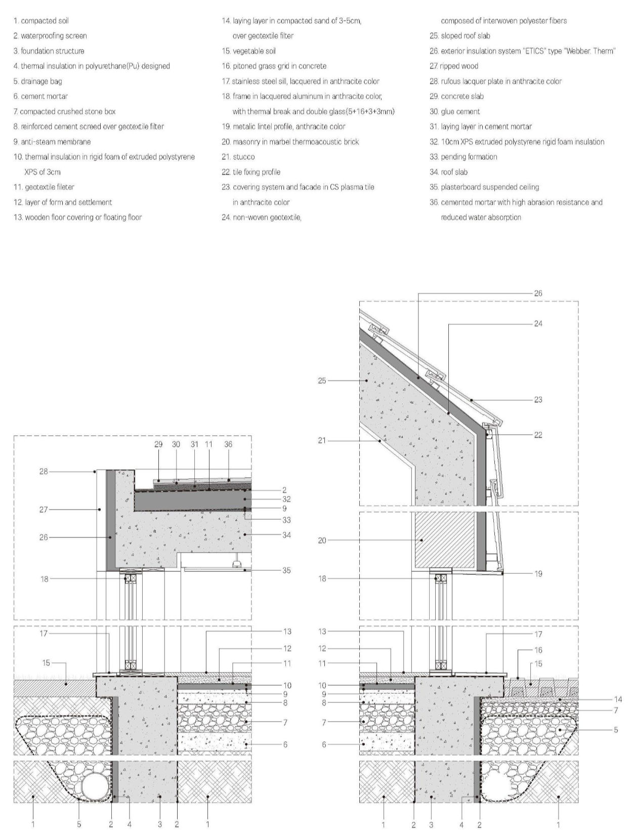
Santo Tirso House
Santo Tirso House is located on a small hill, with a dark silhouette in sharp contrast to its natural environment, offering a wide view over Santo Tirso. The architect defined a northeast-southeast..
anc.masilwide.com


Architect Hous3
Location Santo Tirso, Portugal
Completion 2020
Photographer Ivo Tavares Studio
반응형
'Detail' 카테고리의 다른 글
| [Section] House CG (0) | 2022.02.16 |
|---|---|
| [Exterior Wall, Window] House L&D (0) | 2022.02.15 |
| [Roof Eave, Balcony, Handrail] House G (0) | 2022.02.11 |
| [Fixed Glazing, Floor Edge] House Behind the Wall (0) | 2022.02.10 |
| [Section] Weekend House in Beskydy (0) | 2022.02.09 |
마실와이드 | 등록번호 : 서울, 아03630 | 등록일자 : 2015년 03월 11일 | 마실와이드 | 발행ㆍ편집인 : 김명규 | 청소년보호책임자 : 최지희 | 발행소 : 서울시 마포구 월드컵로8길 45-8 1층 | 발행일자 : 매일



