
During the last three decades, the quiet village of Saint-Jean-Port-Joli known for its longstanding woodcarving tradition has been a rallying point for artists from various locations around the world. What started as a series of casual encounters in the early 1990’s gradually turned into an artist-in-residence program, open to artists looking for inspiration along the St. Lawrence River.
Confined to makeshift facilities until 2018, Centre Est-Nord-Est now boasts a brand new building designed by Québec City’s Bourgeois / Lechasseur architectes. The 951-square-meter structure, which stands on the outskirts of the village, is the result of an architectural competition launched in 2017. After years of preparation and fundraising, the long-awaited Centre Est-Nord-Est sits elegantly on the same site as the building it replaced.
As was obvious from their competition entry, Olivier Bourgeois and Régis Lechasseur who both grew up in relatively remote locations were able to blend their intimate knowledge of Québec’s rural landscapes with their modern-day vision. The long monolithic volume reminiscent of traditional barns evolved quite naturally from their ability to marry tradition and contemporary architecture.
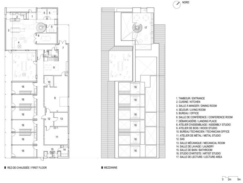
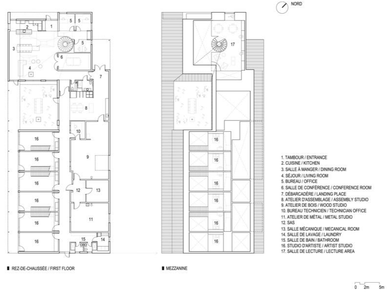
ENE’s front entrance is off the main highway, delicately inserted in the narrow wood-lined façade. Once passed the door, a surprisingly exuberant double height volume awaits visitors, staff and residents alike. This multifunctional space, the true heart of the project, serves as meeting point, lounge, exhibition area, community kitchen, and dining room. One accesses a quieter library zone via a voluptuously curved spiral staircase. Carefully framed skylights are carved out of the sloping ceiling, flooding the upper level with natural light while the main floor is mostly lit through large openings giving to an adjacent court.
The residents’ combined work and living quarters are located towards the back of the building. Key to the concept was the design of five identical, yet flexible, live-in studios with sleeping mezzanines. As floor requirements vary widely from one discipline to another, the expandable workspace was planned to be highly flexible and adaptable to individual pursuits whether sculpture, performance art, photography or others. Individual studios are reached through a central corridor, which isolates them from the livelier public areas towards the front. Three shared workshops (wood, metal and assembly) are also located along the corridor.
Locally harvested white cedar was used for the exterior cladding while sheet metal protects the huge sloping roofs, reminders of farm buildings in rural Québec. Given the institution’s modest budget ($2.3 million CAD), interior finishes are mostly plywood, gypsum boards and polished concrete. Acoustically treated gypsum panels were installed on some of the angled ceilings to keep sound reverberation to a minimum.
As they designed this unique artistic abode, the architects looked for simple, inventive solutions in order to create the best possible environment for artists. Olivier Bourgeois was not new to the challenge. In 2006, still a student, his final thesis project had been an artists’ residence in the Magdalen Islands. The project caught the eye of architect Todd Saunders just as he was starting to work on his famous Fogo Island hotel and artistic complex. It led to Bourgeois being invited to join Saunders’ team in Bergen, Norway, where he worked on the artists’ studios. In St-Jean-Port-Joli, as in the Newfoundland, Bourgeois / Lechasseur architectes gave considerable thought to natural light and to material conditions conducive to reflection, quiet stimulation and experimentation.
The region’s artistic community and the village of Saint-Jean-Port-Joli in particular were given a true surge of vitality with the recent inauguration of Centre Est-Nord-Est. With its timeless image the vibrant new facility can now easily compete with the most desirable institutions of this type in today’s art world.

지난 30년 동안 전통적인 목공예로 유명한 조용한 마을 Saint-Jean-Port-Joli는 전 세계 다양한 지역의 예술가들이 모이는 장소였다. 1990년대 초반 우연한 만남으로 시작되었던 것이 점차 세인트 로렌스 강을 따라 영감을 찾는 예술가들에게 열려 있는 레지던스 예술 프로그램으로 바뀌었다.
2018년까지 임시 시설로 제한되었던 Centre Est-Nord-Est는 새로운 건물로 재탄생됐다. 마을 외곽에 서 있는 951㎡ 규모의 이 건물은 2017년 진행된 건축 공모전의 결과물이다.
건축물의 정문은 간선도로를 벗어나 좁은 나무로 둘러싸인 파사드에 정교하게 삽입되어 있다. 문을 통과하면 놀라울 정도로 활기찬 두 배 높이의 볼륨이 방문객과 직원, 주민 모두를 기다리고 있다. 프로젝트의 진정한 심장부인 이 다기능 공간은 만남의 장소, 휴게실, 전시장, 커뮤니티 키친, 식당 등의 역할을 한다. 볼륨감 있는 곡선 나선 계단을 통해 더 조용한 라이브러리 영역에 접근할 수 있다. 세심하게 프레임된 채광창은 경사진 천장에 조각되어 있어 위층에는 자연광이 넘쳐나고, 대청에는 큰 입구를 통해 빛이 들어온다.
건물 뒤편에는 주민들의 일과 거처가 함께 자리 잡고 있다. 콘셉트의 핵심은 5개의 동일하면서도 침실이 있는 유연성을 가진 스튜디오의 디자인이었다. 각 분야마다 층별 요구 사항이 매우 다양하기 때문에 확장 가능한 작업 공간은 조각, 공연 예술, 사진 등의 개별 작업에 매우 유연하고 적응할 수 있도록 계획됐다. 각각의 스튜디오는 중앙 통로를 통해 연결되는데, 이것은 공공 장소와 전면을 분리한다. 세 개의 공유 작업장도 복도를 따라 위치해 있다.
외부 클래딩에는 현지의 백향목이 사용되었고, 판금 금속은 거대한 경사진 지붕을 보호하여 퀘벡 시골의 농장 건물을 떠올리게 한다. 인테리어 마감은 대부분 합판, 석고 보드, 광택 콘크리트를 사용했다. 음향처리된 석고 패널이 각진 천장의 일부에 설치하여 음향 잔향을 최소화했다.









Architects Bourgeois / Lechasseur architectes
Location Québec, Canada
Building area 951㎡
Completion 2019. 07
Design team Olivier Bourgeois, Régis Lechasseur, Romy Brosseau, Pascale Ouellet-Dompierre, Valérie Gauthier, Isabelle Auclair, Maxime Rousseau
Structural, civil engineers Génie-Plus
Mechanical engineers LGT
General contractor Marcel Charest et fils inc.
Project manager Michel Roberge, Norda Stelo
Spiral staircase manufacturer Métal DUMEX
Client Est-Nord-Est
Photographer Adrien Williams
'Interior Project > Residential' 카테고리의 다른 글
| Wonder House (0) | 2023.05.30 |
|---|---|
| Qishe Courtyard (0) | 2023.05.26 |
| Escenario SHIROKANE (0) | 2022.01.12 |
| BERMONDS LOCKE (0) | 2021.02.18 |
| Moscow Apartment (0) | 2020.11.30 |
마실와이드 | 등록번호 : 서울, 아03630 | 등록일자 : 2015년 03월 11일 | 마실와이드 | 발행ㆍ편집인 : 김명규 | 청소년보호책임자 : 최지희 | 발행소 : 서울시 마포구 월드컵로8길 45-8 1층 | 발행일자 : 매일


