
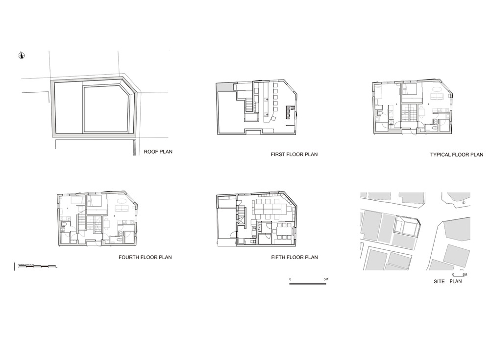
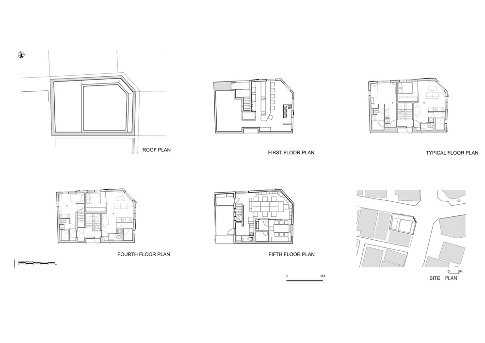
This project has a triple role of residential, retail, and office spaces within the building complex. Located in Shirokane, Minato ward in Tokyo, it is located at a corner of a four-way intersection on Gonohashidori — a street which extends to the south of Furukawa River.
While at first glance the street may seem to have an old-fashioned touch to it, it is not as narrow as what the traditional Japanese streets may be seen as — and both facades of the building may be seen from a far distance. For this reason, it was important to design the project to portray the architectural structure as an iconic presence on the street.
The five-story building’s exterior is composed of RC (reinforced concrete) bearing walls, with a shimmering surface in the light — achieved through the effect of the shifting stainless-steel panels and concrete spirals design. This composition of the facade allows the shadows falling on the street to shift depending on the time of day and seasonal changes, allowing for a wide variety of expressions. This design is appropriate for the lively Shirokane town and allows residents, visitors, pedestrians, cyclists, and drivers to catch the reflections of their vitality. While the first floor of the building consists of restaurant units, accessed through a glass sliding door entrance, the second to fourth floors each have two residential units. Finally, on the fourth floor, an entrance to a staircase leads up to the fifth-floor maisonette, which consists of office space.
These units range from a one-person studio to one-bedroom apartments with living, dining, and kitchen spaces. These units are designed to have large openings in square forms in order to recreate the effect of space, light, and wind. To create a simple design with a minimal amount of waste, and a high degree of spatial freedom within the architectural structure’s composition, the assistance of sliding walls enables the bedroom and the living room to be used as one single unit. To emphasize the contrast of the materials, white and concrete walls are used. The spatial relationship between the room areas is therefore designed to meet the individual needs of each resident, compromising a flexible structure. Additionally, the maisonette design, consisting of a two-story, 3.7 meter high ceiling with a loft space, may also be used not only as an office space — but also as a residential area.
The playful use of materials in the spatial flexibility is based on the idea of minimalism in relation to the building’s surrounding environment, providing a rich and unique experience. A lifestyle with the sense of liberating freedom in space allows the residents to take the leading role in controlling the space. The dialogue between the existing architecture and the surrounding environment is firmly established through the various use of materials and the architectural structure design of the residence unit itself.

이 프로젝트는 주거, 소매, 사무실 공간의 세 가지 역할을 한다. 도쿄 미나토구 시로카네의 사거리 코너에 위치해 있다. 언뜻 보기에 거리는 고풍스러운 느낌이 들지만 전통적인 일본 거리처럼 좁지 않으며 건물의 양쪽 정면이 멀리서도 보일 수 있다. 이러한 이유로 건축 구조를 거리의 상징적 존재로 묘사하고자 했다.
5층 건물의 외부는 RC(강화 콘크리트) 내력벽으로 구성되어 있으며, 빛을 받으면 빛나는 표면은 스테인리스강 패널과 콘크리트 나선형 설계를 통해 구현되었다. 이러한 정면의 구성은 하루 중 시간과 계절 변화에 따라 거리에 드리워지는 그림자가 이동할 수 있도록 해 다양한 표현이 가능하다. 생동감 넘치는 시로카네 마을에 적합한 디자인으로 주민, 방문객, 보행자, 자전거 이용객, 운전자 등의 활력을 반영해 담아낼 수 있다. 건물의 1층은 식당가로 구성되어 있으며 유리 미닫이문 입구를 통해 출입할 수 있다. 2층부터 4층까지는 각각 2개의 주거 공간이 있다. 4층의 계단 입구를 통해 사무실 공간으로 구성된 5층 메조네트로 이어진다.
이 유닛들은 1인용 스튜디오에서 거실, 식당 및 주방 공간이 있는 아파트에 이르기까지 다양한다. 이 유닛은 공간, 빛, 바람의 효과를 재현하기 위해 사각형 형태로 큰 개구부를 갖도록 설계됐다. 최소한의 소비로 단순한 디자인을 만들고 건축 구조의 구성 내에서 높은 공간 자유도를 만들기 위해 슬라이딩 벽의 도움으로 침실과 거실을 하나의 단위로 사용할 수 있다. 재료의 대비를 강조하기 위해 흰색과 콘크리트 벽이 사용됐다. 또한 3.7m 높이의 2층 구조와 다락방 공간으로 구성된 메조네트 디자인은 사무공간은 물론 주거공간으로도 활용이 가능하다.















Architects Sasaki Architecture, YTRO DESIGN INSTITUTE
Location Tokyo, Japan
Program Residential housing, Office, Commercial
Site area 90.97㎡
Building area 71.81㎡
Gross floor area 346.12㎡
Completion 2020. 11
Principal architect Ryuichi Sasaki(SASAKI ARCHITECTURE), Rieko Okumura(YTRO DESIGN INSTITUTE)
Design team Ryuichi Sasaki, Gen Sakaguchi, Yuriko Ogura / Sasaki Architecture
Producer Modelia Co., LTD., Escenario Co., LTD.
Structure engineer Tatsumi Terado(Tatsumi Terado Structural Studio)
Light design Natsuha Kameoka / Lighting Sou
Metal Shinko Stainless Polishing
Structure Reinforced concrete
Client Nobumitsu Ohashi(Shukou Kensetsu Co., Ltd)
Photographyer Takumi Ota Photography
'Interior Project > Residential' 카테고리의 다른 글
| Qishe Courtyard (0) | 2023.05.26 |
|---|---|
| Centre Est-Nord-Est artist residence (0) | 2022.01.18 |
| BERMONDS LOCKE (0) | 2021.02.18 |
| Moscow Apartment (0) | 2020.11.30 |
| Vista Apartement Renovation (0) | 2020.11.26 |
마실와이드 | 등록번호 : 서울, 아03630 | 등록일자 : 2015년 03월 11일 | 마실와이드 | 발행ㆍ편집인 : 김명규 | 청소년보호책임자 : 최지희 | 발행소 : 서울시 마포구 월드컵로8길 45-8 1층 | 발행일자 : 매일



