
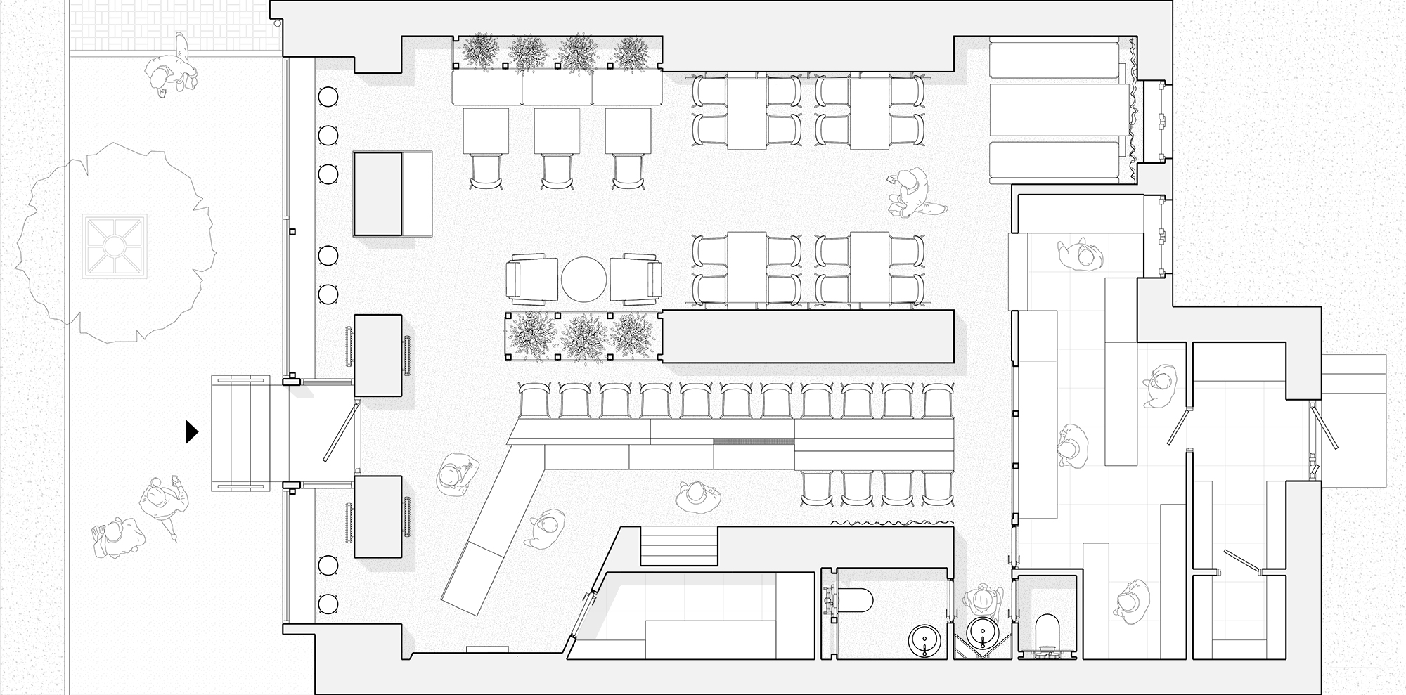
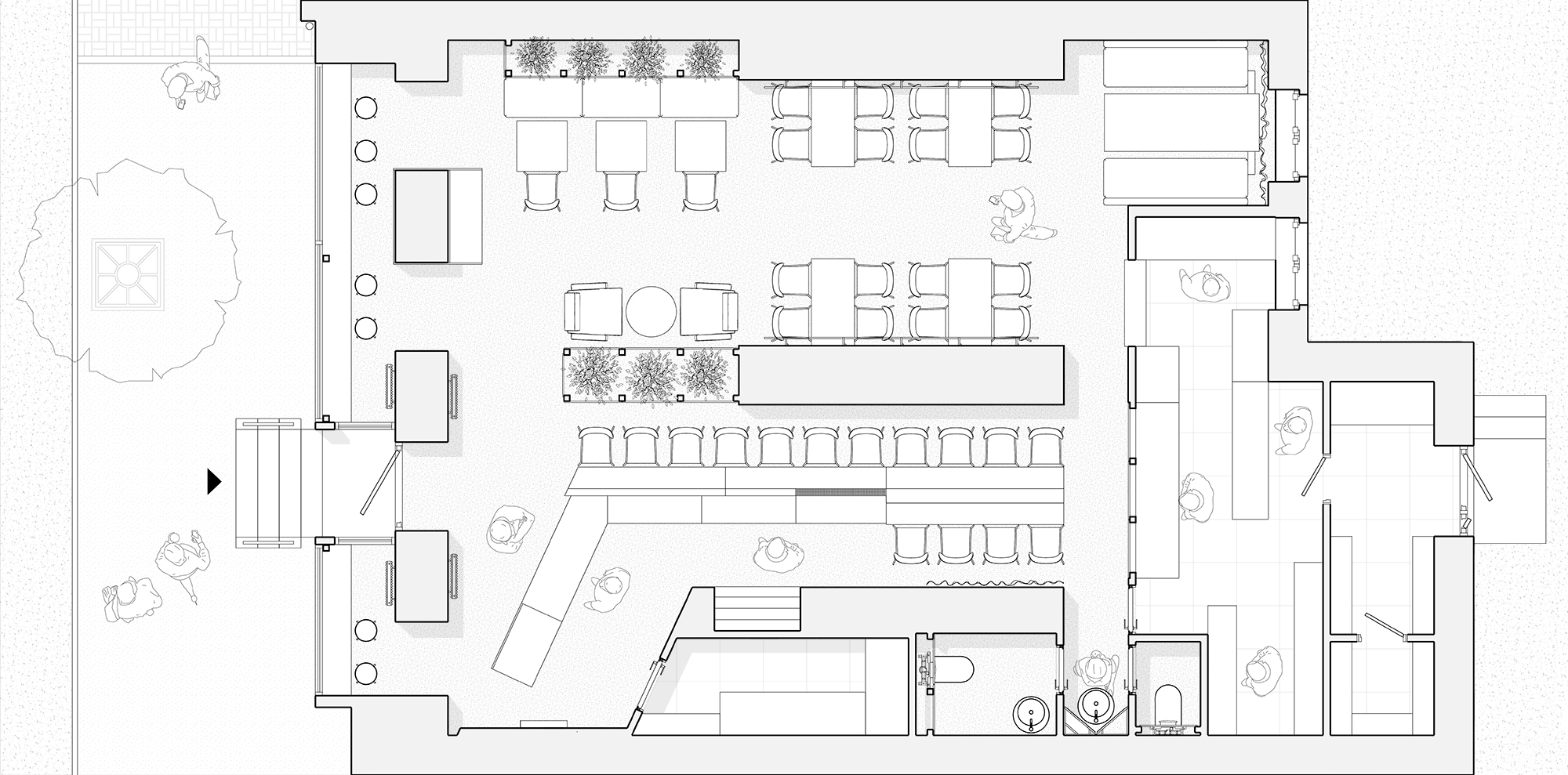
This bar is located in the centre of Kharkiv on the first floor of a residential building. Initially, the owners of the premises dismantled all partitions, widened the window openings from floor to ceiling, completed the stained-glass window and organized the entrance to the street.
The main feature of the room was the two columns in the centre, which challenged the design. After all, they actually divide a large space into small zones. During the design process, each of the zones received its own function.
Dark space and luminous cells that attract people like moths to light are the main metaphor of the project.
We looked at "Chernyi" in spatial terms, using light and shadow as the source of black. By adding perfectly smooth, gliding, reflective surfaces to counter aggressive surfaces to create a space with a rich and deep texture change.
In this project, together with The TSEKH, we have developed a new wall covering - black quartz sand. Having tried a huge number of variations of applying different fractions of sand and painting, we found the ideal technology, which we used in the project.
To counterbalance the aggressive texture of the sand, we added brushed stainless steel, as it is almost always used in professional equipment, we decided to reflect the professionalism in making coffee and cocktails in our interior. This is how stainless steel appeared in furniture, walls and false ceilings. Thanks to this, an interesting, unique play of reflections has turned out. The lowering of the stainless steel ceiling creates the effect of levitation, hiding ventilation pipes and other communications. The result is a minimalistic ceiling with a minimum of sensors and lamps.

이 바는 Kharkiv의 중심의 주거용 건물의 1층에 위치하고 있다. 처음에 건물주는 모든 칸막이를 해체하고 창 개구부를 바닥에서 천장까지 넓힌 뒤 스테인드 글라스 창을 완성하여 입구를 정리했다.
공간의 주요 특징은 중앙에 있는 두 개의 기둥이다. 기둥은 큰 공간을 작은 구역으로 나눈다. 설계 과정에서 각 공간에 고유한 기능을 부여했다.
건축가는 "검정"을 공간적으로 해석하여 빛과 그림자를 소스로 사용했다. 완벽하게 매끄럽고 미끄러지는 반사 표면을 추가하여 공격적인 표면에 대응하여 풍부하고 깊은 질감의 변화가 있는 공간을 만든다.
모래의 거친 질감을 상쇄하기 위해 브러시 스테인리스 스틸을 사용했다. 건축가는 인테리어에 커피와 칵테일을 준비하는 전문성을 반영했다. 이것이 가구, 벽 및 가천장에 스테인리스 스틸이 나타난 방식이다. 스테인리스 스틸 천장을 낮추면 공중 부양 효과가 발생하여 환기 파이프 및 기타 통신장비들이 숨겨진다. 그 결과 최소한의 센서와 램프가 있는 최소한의 천장이 만들어졌다.











Architects Ponomarenko Bureau
Location Kharkiv, Ukraine
Building area 100㎡
Completion 2020
Photographer Ivan Avdeenko photography
'Interior Project > Cafe&Restaurant' 카테고리의 다른 글
| Café 7 yad (0) | 2022.01.18 |
|---|---|
| Fifteen Steps Workshop Coffee (0) | 2022.01.14 |
| 23A Coffee (0) | 2022.01.10 |
| Black & Milk Coffee Bar (0) | 2022.01.06 |
| XU JI Seafood Restaurant(Land Kylin) (0) | 2022.01.05 |
마실와이드 | 등록번호 : 서울, 아03630 | 등록일자 : 2015년 03월 11일 | 마실와이드 | 발행ㆍ편집인 : 김명규 | 청소년보호책임자 : 최지희 | 발행소 : 서울시 마포구 월드컵로8길 45-8 1층 | 발행일자 : 매일



