
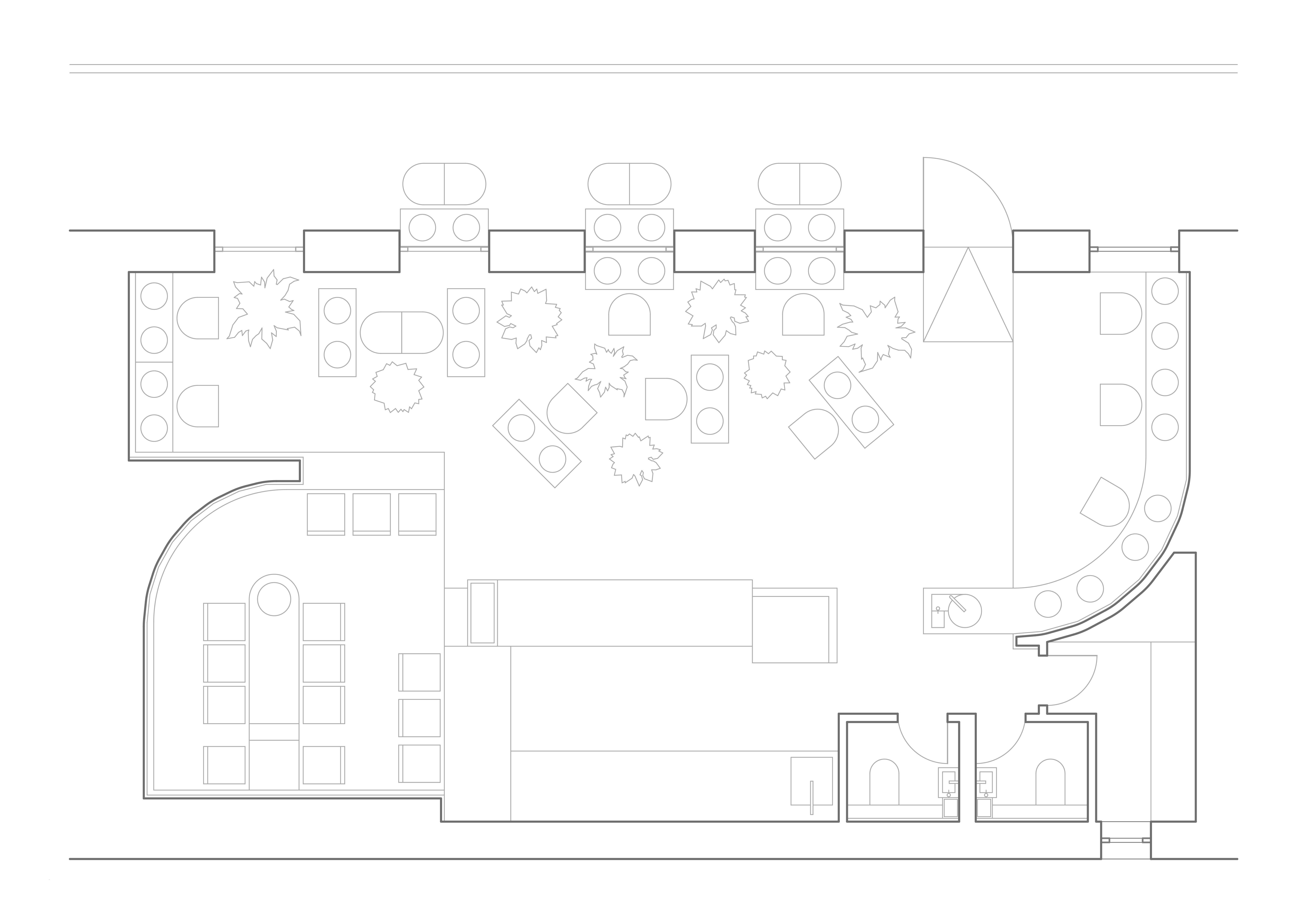
This is a dualistic establishment that operates as an urban-style coffee shop during the day, with craft drinks, simple desserts and light snacks, and in the evening as a hangout. During the day, lemonades are drunk from the glasses, in the evening - wine. The client set the goal for the project team to create the most comfortable space in different scenarios of use. On 86m2, we have placed 38 seats with an open plan, with the possibility of expansion, in which the room is divided into zones: a communal table, comfortable for working and accommodating a large company, an adaptive central zone and a static zone at the entrance with a view of the room. The central area consists of modular furniture that can be easily rebuilt and change the room depending on the purpose. The two main elements of adaptability are benches and tables, which connect and allow you to visually change the space. Plants, in turn, help create the zoning of different furniture placement options. When creating the design, we were looking for a solution that would visually distinguish the project. The centerpiece of the Ponomarenko bureau team was a rainbow-galvanized metal, which, using light colors in the interior, gives a very interesting visual effect. When working with this element, it was rather difficult to choose the right coating that would not visually change the metal and was easy to use. Through experimentation, we settled on film. An important distinction of the project is that there is an almost complete departure from brands - thus this space becomes "clean". The project immediately became highly recognizable in the city and received many accolades.

이곳은 낮에는 수제 음료, 간단한 디저트와 가벼운 스낵을 제공하는 도시형 커피숍으로 운영되고 저녁에는 회식 장소로 운영되는 이중적인 공간이다. 건축주는 다양한 경우의 수에서 가장 편안한 공간을 만드는 것을 요구했다. 디자이너는 86㎡에 38개의 좌석을 개방형 계획으로 배치했으며 중앙 공간은 용도에 따라 쉽게 재건축이 가능하고 방을 바꿀 수 있는 모듈식 가구로 구성됐다. 적응성의 두 가지 주요 요소는 벤치와 테이블로, 공간을 시각적으로 변경할 수 있다. 식물은 다양한 가구 배치에 도움이 된다. 디자이너는 무지갯빛 아연 도금 금속으로 내부에 밝은 색상을 사용하여 흥미로운 시각적 효과를 제공한다.















Architects Ponomarenko Bureau
Location Kharkiv, Ukraine
Building area 86㎡
Principal architect Volodymyr Ponomarenko
Completion 2021
Photographer Ivan Avdeenko photography
'Interior Project > Cafe&Restaurant' 카테고리의 다른 글
| Fifteen Steps Workshop Coffee (0) | 2022.01.14 |
|---|---|
| Cherniy Coffee Bar (0) | 2022.01.11 |
| Black & Milk Coffee Bar (0) | 2022.01.06 |
| XU JI Seafood Restaurant(Land Kylin) (0) | 2022.01.05 |
| Galaxy Bar and Bottle Shop (0) | 2022.01.03 |
마실와이드 | 등록번호 : 서울, 아03630 | 등록일자 : 2015년 03월 11일 | 마실와이드 | 발행ㆍ편집인 : 김명규 | 청소년보호책임자 : 최지희 | 발행소 : 서울시 마포구 월드컵로8길 45-8 1층 | 발행일자 : 매일



