
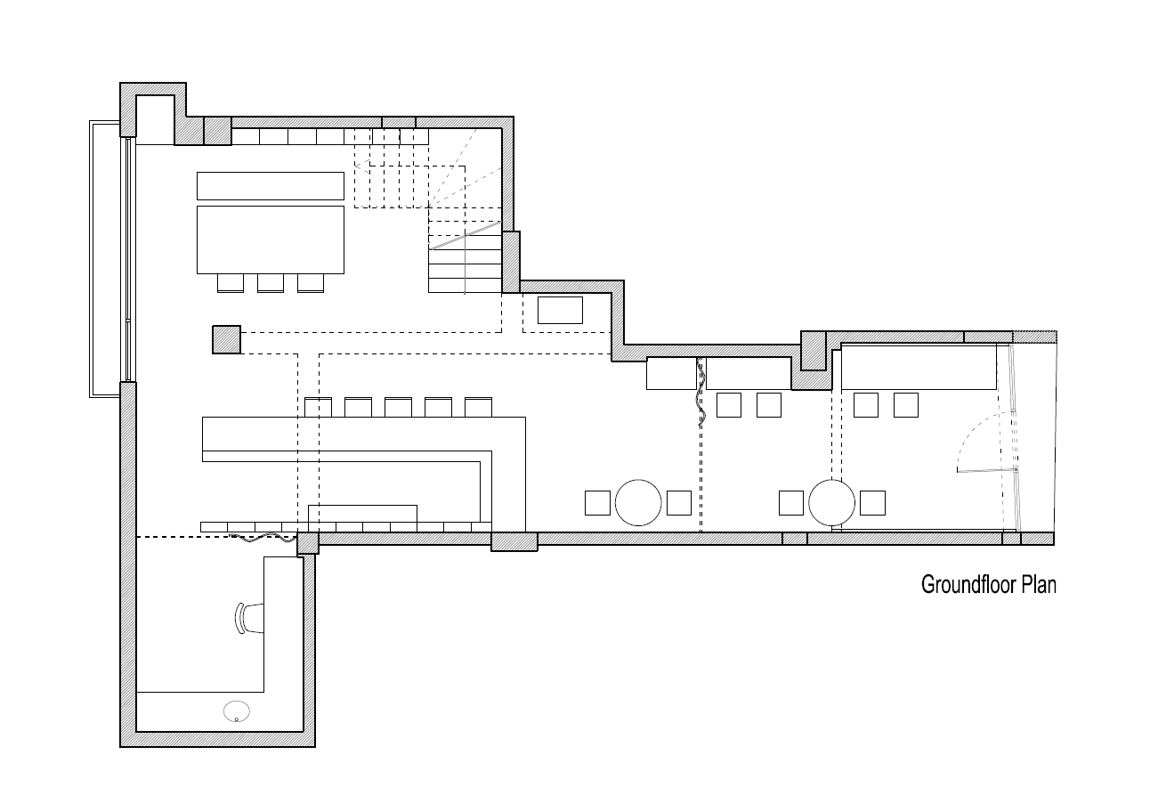
Johnnie Rousso, the new optician in the heart of downtown Athens, aims to come up with a new way of looking at the way selling glasses and optometry. Its basic feature is customized service for clients whose premise it aimed to transfer into the set-up of the 130㎡ store and the actual process of sales. Consequently the proposal focuses on programmatic interventions that attempt to enrich the functional method of sales and the way of serving renouncing however the typical display of eyewear.
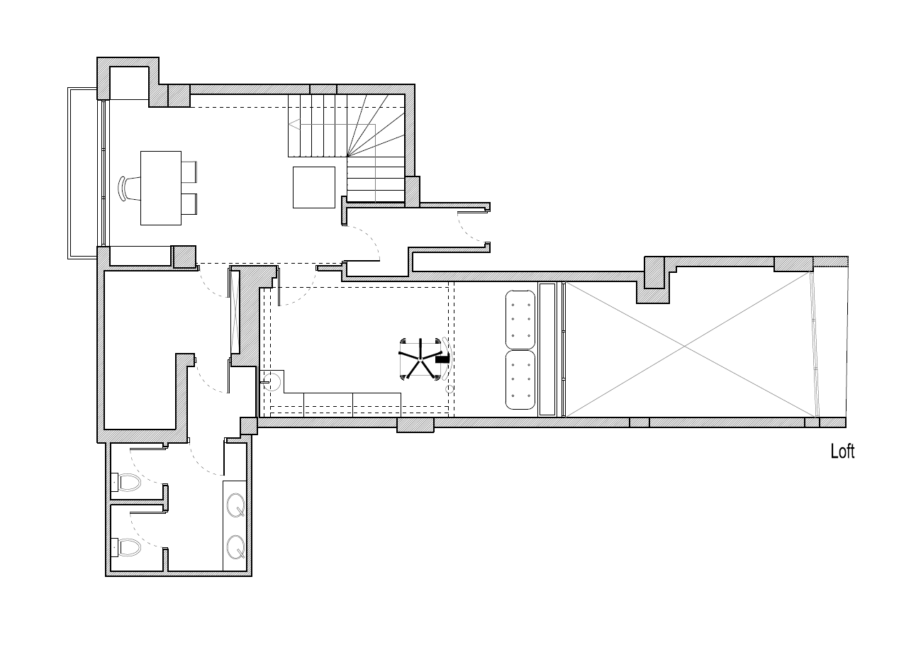
From the outside to the inside, from the public to the private, from a standing position to a seated one, the transition is smooth and distinct. The entrance area featuring the glass benches functions as a small exhibition area for the eyewear. Behind it the sales counter is located, resembling a bar, while further in the background there is the table workstation, where the customer can sit comfortably, be informed about the products and be served special pieces personally. The optometry section is in the loft.
Colors and materials enhance this smooth transition of the functions and the change in the type of service to be received in each stage. The colored mirror cladding over the entrance walls and the glass benches reflect the street image, thus relaxing the boundaries between public and private. Moving inwards, the walls gradually become uncovered and rough materials such as brick and concrete are emerging.
The shop window has no showcase. The entire shop is openly visible and works as a showcase through the use of extra clear glass at the window. When conditions require it, the space can easily be turned into a closed and private service environment by using a bell at the front door and closing the gold curtain.

아테네 시내 중심부의 안경사 조니 루소(Johnnie Rousso)는 안경을 판매하고 검안하는 방식에 대한 새로운 시각을 제시하는 것을 목표로 한다. 기본적인 특징은 130㎡ 규모의 매장과 고객 맞춤형 서비스를 통한 판매과정이다. 결과적으로 기능적 판매 방법과 안경의 전형적인 표시를 포기하는 서비스 제공 방식을 풍부하게 하려는 프로그램적 개입에 중점을 둔다.
외부에서 내부로, 공공에서 개인으로, 서 있는 자세에서 앉은 자세로의 전환이 매우 매끄럽고 뚜렷하다. 유리 벤치가 있는 입구 부분은 안경을 위한 작은 전시 공간으로 기능한다. 그 뒤에는 바 모양의 판매대가 있고, 그 뒤에는 고객이 편안하게 앉아서 제품에 대한 정보를 얻고 직접 받아볼 수 있는 테이블 워크스테이션이 있으며, 검안 구역은 다락방에 있다.
색상과 재료는 이러한 기능의 원활한 전환과 각 단계에서 받게 될 서비스 유형의 변화를 향상한다. 입구 벽과 유리 벤치를 덮는 컬러 미러 클래딩은 거리 이미지를 반영하여 공공과 개인의 경계를 완화시켜 준다. 안쪽으로 갈수록 벽이 서서히 드러나고 벽돌, 콘크리트 등 거친 재료가 등장한다.
가게의 창에는 쇼케이스가 따로 없다. 가게 전체가 탁 트인 상태로 투명한 유리로 인해 쇼케이스 역할을 한다. 필요시 현관의 벨을 울리고 금색 커튼을 닫아주면 공간을 폐쇄적이고 프라이빗한 서비스 환경으로 쉽게 전환할 수 있다.












Design dARCHstudio
Location Athens, Greece
Building area 130㎡
Design team Elina Drossou, Giorgos Makestas
Completion 2016. 10
Photographer Thanasis Karatzas
'Interior Project > Retail' 카테고리의 다른 글
| OUTOFSTOCK (0) | 2021.12.31 |
|---|---|
| V12 KOREA FLAGSHIP STORE (0) | 2021.12.24 |
| KANGOL MANUAL DESIGN (0) | 2021.12.22 |
| BOON THE SHOP (0) | 2021.12.20 |
| Weinmanufaktur Clemens Strobl (0) | 2021.12.17 |
마실와이드 | 등록번호 : 서울, 아03630 | 등록일자 : 2015년 03월 11일 | 마실와이드 | 발행ㆍ편집인 : 김명규 | 청소년보호책임자 : 최지희 | 발행소 : 서울시 마포구 월드컵로8길 45-8 1층 | 발행일자 : 매일



