
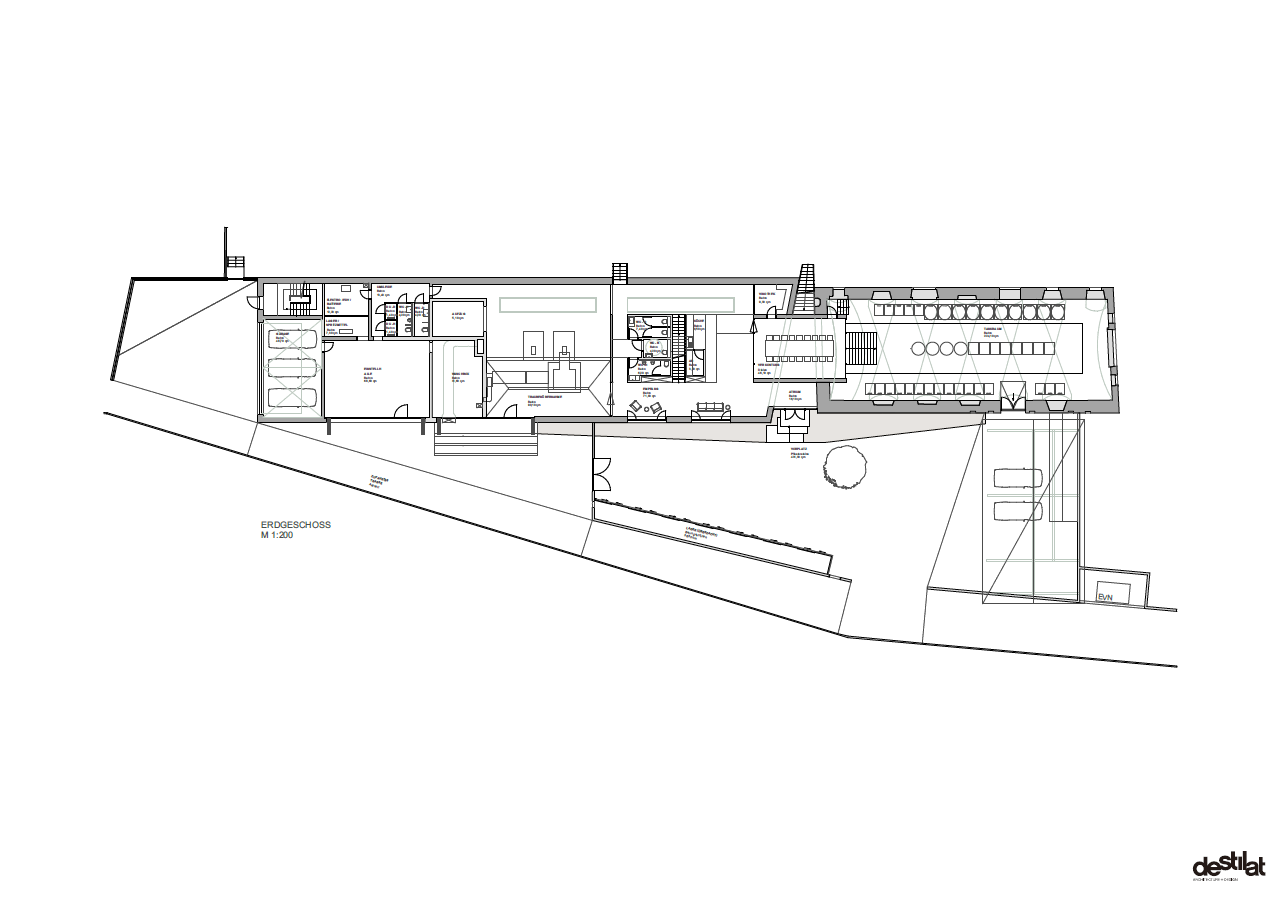
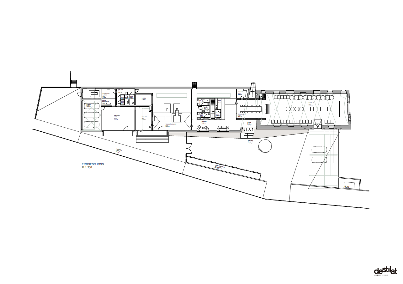
The interior design distinguishes itself with building-block-like cubes, light as a central design element, grey in all its nuances, and aesthetics that highlight the work processes involved in wine-making. A vaulted cellar, tasting room, kitchen, and office form massive spatial components that are interwoven into the structural shell, define spatial borders and take over several functions.
The vast open spaces between these components make them usable in many different ways and provide a big stage for light and all its effects. Exposed concrete walls, polished concrete floors, grey varnished spruce wood, anthracite-coloured Eternit, scaled steel, glass, and grey-washed brickwork – that is the combination of historic and modern materials characterizes the interior design, as its reduced colour palette brings out the fine nuances of the materials’ aesthetics.
Elements of industrial architecture underline that these premises are used for work; the characteristics of the wine as a natural product are translated in a puristic and simplified way, with a sober charm. These aesthetics also have a significant impact on the outdoor areas.

Weinmanufaktur Clemens Strobl는 오스트리아에 있는 와인 저장고와 사무실 공간, 시음실이 결합된 와인 제조업체이다.
내부 디자인은 건물 블록과 같은 큐브, 중심 디자인 요소로서의 빛, 모든 뉘앙스에서의 회색, 그리고 와인 제조와 관련된 작업 과정을 강조하는 미학으로 구별된다. 지하실, 시음실, 주방, 사무실은 거대한 공간 구성요소를 형성하며, 구조적인 껍데기에 서로 엮여 공간 경계를 정의하고 여러 기능을 담당한다.
이 부품들 사이의 넓은 공간은 그것들을 다양한 방법으로 사용할 수 있게 하고 빛과 모든 효과를 위한 큰 무대를 제공한다. 노출된 콘크리트 벽, 광택이 나는 콘크리트 바닥, 회색 니스 스프루즈 목재, 무연탄 색상의 이터넷, 스케일링 스틸, 유리 및 회색 워시 벽돌 세공으로 구성되었으며, 재료의 색상을 최소한으로 사용한 내부 디자인이 특징이다.
산업 건축의 요소들은 이러한 전제들이 일을 위해 사용된다는 것을 강조한다. 와인의 천연 생산물로서의 특성은 순수하고 단순화된 방식으로, 냉철한 매력으로 해석될 수 있다. 이러한 미학들은 야외 공간에도 큰 영향을 미친다.








Architects destilat design studio
Location Kirchberg am Wagram, Austria
Completion 2019
Building area 2000㎡
Project team Harald Hatschenberger, Henning Weimer, Sophie Kessler
Client Weinmanufaktur Clemens Strobl
Photographer Monika Nguyen
'Interior Project > Retail' 카테고리의 다른 글
| KANGOL MANUAL DESIGN (0) | 2021.12.22 |
|---|---|
| BOON THE SHOP (0) | 2021.12.20 |
| CNN APPAREL (0) | 2021.12.17 |
| Modes (0) | 2021.11.26 |
| Wentz Store (0) | 2021.11.23 |
마실와이드 | 등록번호 : 서울, 아03630 | 등록일자 : 2015년 03월 11일 | 마실와이드 | 발행ㆍ편집인 : 김명규 | 청소년보호책임자 : 최지희 | 발행소 : 서울시 마포구 월드컵로8길 45-8 1층 | 발행일자 : 매일



