
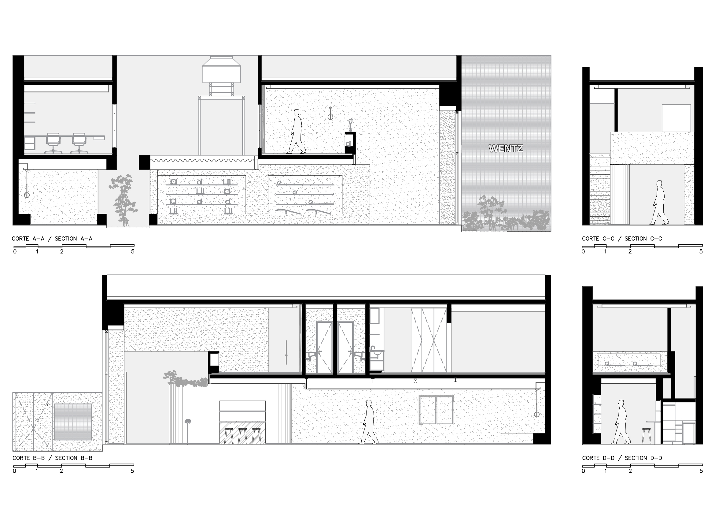
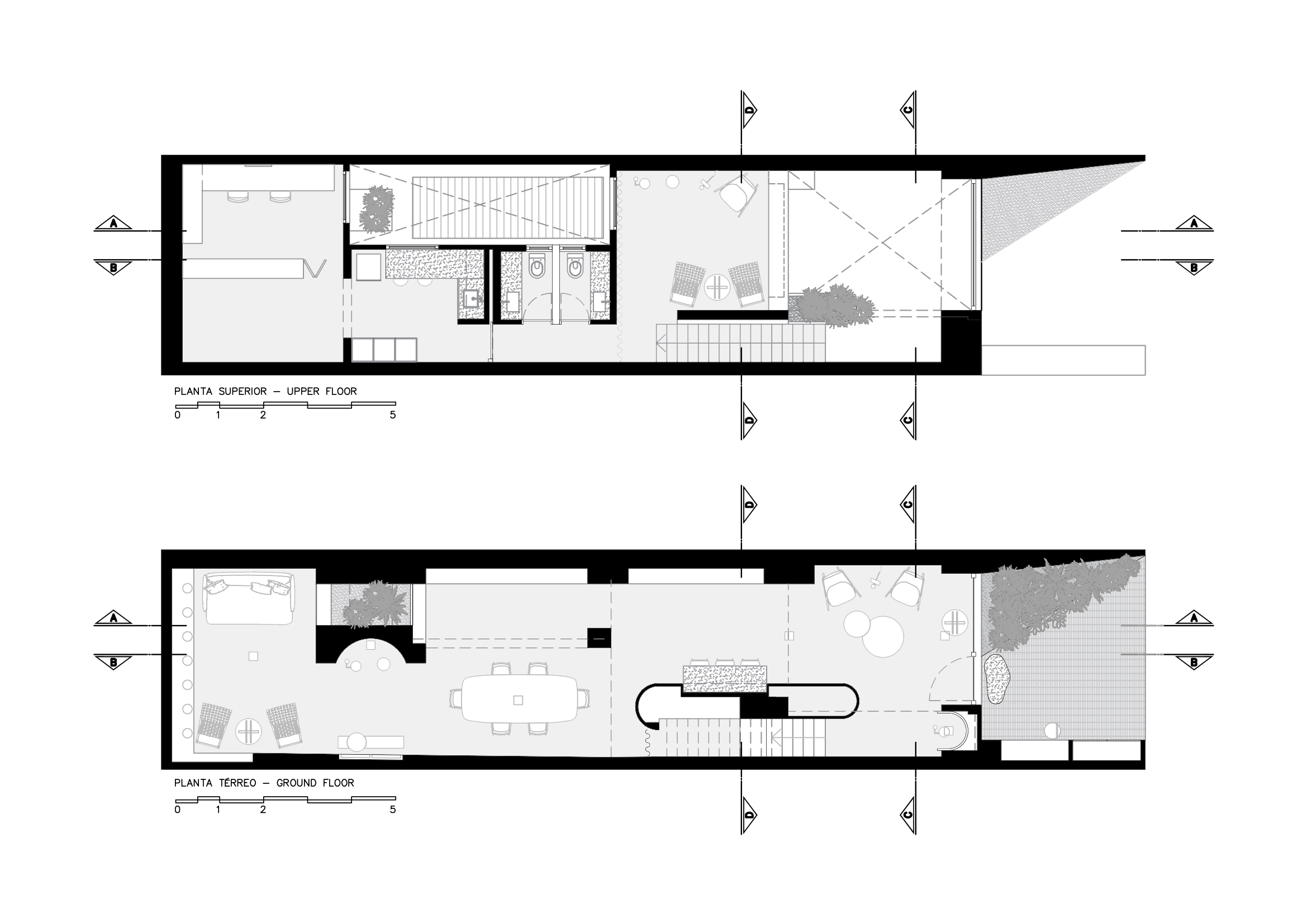
The Concept store for the designer Guilherme Wentz is a result of a renovation of a two-story building. The Architecture office took advantage of the existing recessed entrance to create an external seating area with tropical garden and a facade in two planes: one in the gable of the neighboring lot with the name of the store, and the other, the shop front itself with access to the store.
The result of its interior is made from a composition between shapes which form a final volumetry that has visual relationship with the designer’s pieces. The exposition area is held on the ground floor and mezzanine, and an indoor patio and coffee area complement the space. The store was built with the usage of few neutral coverings: hydraulic floor tiles at the facade, cement-based grouting for the floor, composition between textured and smooth walls to enhance volumetries. The lightning is diffuse, but also lights out the display spots in the store. The landscaping focuses on the essence that Wentz has: tropicality. The main purpose of the project was to reflect the brand itself, to be a mix matching display for the designer works.

디자이너 Guilherme Wentz의 콘셉트 스토어인 Wentz Store는 2층 건물을 개조한 프로젝트다. 건축가는 기존의 오목한 입구를 활용하여 열대 정원과 파사드를 간춘 외부 좌석 공간을 두 개의 평면으로 만들었다.
내부의 결과물은 디자이너의 작품과 시각적인 관계가 있는 볼륨을 형성하는 모양 사이의 구성으로 이루 진다. 전시 공간은 지상 1층과 메자닌 층에서 열리며 실내 파티오와 커피 공간이 공간을 보완한다. 매장은 외관의 유압식 바닥 타일, 바닥용 시멘트 기반 그라우팅, 부피를 향상시키기 위한 질감이 있는 벽과 매끄러운 벽 사이의 구성과 같은 몇 가지 중립적 덮개를 사용하여 지어졌다. 조명은 흩어지지만 매장의 디스플레이 스폿을 밝게 한다. 조경은 Wentz Store가 가진 본질인 열대성에 초점을 맞추고 있다. 이 프로젝트의 주요 목적은 브랜드 자체를 반영하고 디자이너의 작품을 위한 믹스매칭을 하는 것이었다.











Architects Felipe Hess Arquitetos
Location São Paulo, Brazil
Building area 160m²
Completion 2019
Lead architects Felipe Hess, João Paulo Carrascoza, Roberta Alecrim
Construction engineering Engenharia SQ2
Landscaping Flávia Tiraboschi
Photographer Fran Parente
'Interior Project > Retail' 카테고리의 다른 글
| CNN APPAREL (0) | 2021.12.17 |
|---|---|
| Modes (0) | 2021.11.26 |
| UNI_JOY (0) | 2021.11.16 |
| Dujiangyan Zhongshuge (0) | 2021.11.15 |
| Magmode of Hangzhou Kerry Center store (0) | 2021.11.12 |
마실와이드 | 등록번호 : 서울, 아03630 | 등록일자 : 2015년 03월 11일 | 마실와이드 | 발행ㆍ편집인 : 김명규 | 청소년보호책임자 : 최지희 | 발행소 : 서울시 마포구 월드컵로8길 45-8 1층 | 발행일자 : 매일



