
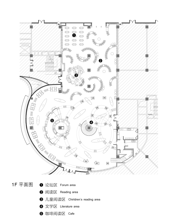
Push the glass curtain door open and observe the unique C-shape bookshelves, with natural walnut color, before your eyes. The seemingly irregular sequence builds intimacy within the space and becomes a highlight in the front hall. The inspiration is drawn from gray tiles with a historical sense. The unique and lively arc shape blazes a new trail and subtly divides the forum area. Walking under the bookshelf is like walking alongside an outdoor eave, or stepping into a rolling mountain. Open a book, and you will be instantly drawn into the atmosphere. Time appears to stand still with each step as you wander among the books.
The profound cultural heritage of the reading space offers scenery much different from traditional bookstores. Bookshelves extend from the space to the adjacent columns, ingeniously piquing readers' curiosity and guiding them along their route.
The endless bamboo forest
Walking along the winding way between the bookshelf wall, a children’s reading area is suddenly exposed, where random and irregular green bamboo has been ‘transformed’ into bookshelves in a creative way. The designer also chose a representative decorative element of Sichuan, the lovely panda. An illustration hangs on the bookshelves depicting pandas climbing on high branches, creating a beautiful artistic concept of natural vitality. Looking downward, colorful cushions are stacked like hills, creating a lovely and dreamy reading atmosphere for children. The cushions can also be separated for individual use, allowing children to comfortably sit and relax on the ground.
Greenery, Trees, and Lakes
In the Central Literature District, the designer uses a mirrored ceiling to visually expand spatial ductility, and to create a sense of openness. The bookshelf wall, inspired by the magnificent Dujiangyan Dam, spreads upward like a super city wall built of historical culture and serves as a functional carrier for books. With the effect of black tile flooring, the book tables appear like boats quietly moored on the lake. They paddle and float between the bookshelf wall. A glimpse at the space provides a visual treat. Architectural changes to the structure along the walkway also reflect the dynamic aesthetics of climate change, whether it be rain, wind, or fog. The breathtaking scenery of Dujiangyan is vividly presented in the space. Through door holes on the bookshelf wall, different functional areas are all within sight, enriching the visual experiences of readers. Grab your favorite book, come to the comfortable cafe, and enjoy a cup of coffee in the quiet embrace of the mellow, art-inspired ambiance. Whether you stay for an afternoon, or drop by for a quick visit, you will appreciate the unique spiritual core of Zhongshuge, providing readers with a very ornamental space that creates value and is conducive to ideological inspiration.
As you go up the stairs, bookshelves to the side offer a variety of books within reach. Other inaccessible areas are decorated with book pattern film, continuing to build the majestic momentum of the space. By creating end scenery and using architectural techniques, the designer moves the magnificent spirit of mountains and rivers into the indoor space, presenting readers with a powerful artistic landscape that captures the awe-inspiring beauty of nature.
Here, we see a city. We listen to the dialogue between culture and wisdom, interpret the cultural thoughts condensed in a historical context, experience ancient feelings with a poetic flavor, and picture the dream in our minds. Whether it be the tile technology used to depict ancient wisdom in the reading area, or the bamboo sea display in the children’s reading area that captures a sense of happiness and innocence, or the portrayal of natural scenery in the literary area, the design elements aim to create an ideal destination for the soul, marked by the harmonious coexistence of livability and natural ecology.

유리 커튼 문을 열고 들어가면 내추럴한 월넛 컬러의 독특한 C형 책장이 눈앞에서 펼쳐진다. 불규칙해 보이는 시퀀스는 공간 내에서 친밀감을 형성하고 현관의 하이라이트가 된다. 역사적인 감각을 지닌 그레이 타일에서 영감을 얻었다. 독특하고 활기찬 호 모양은 새로운 길을 개척하고 포럼 영역을 미묘하게 나눈다. 책장 아래를 걷는 것은 야외 처마를 따라 걷거나 구불구불한 산에 들어가는 것과 같다. 책을 펼치면 순식간에 그 분위기에 빠져들 것이다. 책 사이를 방황하는 동안 시간은 각 단계에서 정지된 것처럼 느껴진다.
독서 공간의 깊은 공간은 전통적인 서점과는 사뭇 다른 풍경을 선사한다. 책장은 공간에서 인접한 기둥으로 확장되어 독자의 호기심을 독창적으로 자극하고 경로를 안내한다.
끝없이 펼쳐진 대나무 숲
책장 벽 사이의 구불구불한 길을 따라 걷다 보면 갑자기 드러난 아이들의 독서 공간, 불규칙하고 불규칙한 녹색 대나무가 창의적으로 책장으로 '변형'된다. 디자이너는 쓰촨성의 대표적인 장식 요소로 사랑스러운 판다를 선택했다. 책꽂이에는 판다가 높은 나뭇가지를 타고 올라가는 모습을 그린 삽화가 걸려 있어 자연의 생명력에 대한 아름다운 예술적 개념을 만들어낸다. 아래를 내려다보면 알록달록한 쿠션들이 언덕처럼 쌓여 있어 아이들에게 사랑스럽고 꿈같은 독서 분위기를 제공한다. 또한, 쿠션은 각각 분리되어 개별 사용이 가능하여 아이들이 바닥에 편안하게 앉아서 쉴 수 있다.
녹지, 나무, 호수
중앙의 문학영역에서 디자이너는 거울 천장을 사용하여 시각적으로 공간 연성을 확장하고 개방감을 만들었다. 두장옌 댐에서 영감을 받은 책장 벽은 역사문화가 쌓인 도성의 벽처럼 위로 펼쳐져 책의 기능적 운반체 역할을 한다. 검은 타일 바닥의 효과로 책상은 호수에 조용히 정박해 있는 배처럼 보인다. 공간은 시각적인 즐거움을 선사한다. 산책로를 따라 구조에 대한 건축적 변화는 비, 바람, 안개 등 기후 변화의 역동적인 미학을 반영한다. 두장옌의 숨 막히는 풍경이 공간에 생생하게 표현된다. 책장 벽의 문구멍을 통해 다양한 기능 영역이 모두 시야에 들어오며 독자의 시각적 경험을 풍부하게 한다. 마음에 드는 책을 들고 편안한 카페에서 예술에서 영감을 받은 부드러운 분위기의 조용한 공간에서 커피 한 잔을 즐길 수 있다. 오랜 시간 머물든 짧은 방문을 하든 독자에게 가치를 창출하고 이념적 영감에 도움이 되는 매우 장식적인 공간을 제공하는 Zhongshuge의 독특한 영적 핵심을 감상하게 될 것이다.
계단을 올라가면 옆에 있는 책꽂이에 다양한 책들이 놓여 있다. 그 외 접근이 불가능한 부분은 북패턴 필름으로 장식하여 공간의 장엄한 추진력을 지속적으로 구축하고 있다. 끝 풍경을 만들고 건축 기법을 사용하여 디자이너는 산과 강의 장엄한 정신을 실내 공간으로 옮겨 독자들에게 경외심을 불러일으키는 자연의 아름다움을 포착하는 강력한 예술적 풍경을 제시한다.
여기에서 도시를 볼 수 있다. 문화와 지혜의 대화에 귀를 기울이고, 역사적 맥락에 응축된 문화적 사상을 해석하고, 시적 풍미로 고대의 감정을 경험하고, 마음에 꿈을 그린다. 독서 공간에서 고대의 지혜를 묘사하는 타일 기술, 행복과 순수함을 포착하는 어린이 독서 공간의 대나무 바다 전시, 문학 영역에서 자연경관의 묘사 등 디자인 요소는 살기 좋은 환경과 자연 생태의 조화로운 공존으로 특징지어지는 영혼을 위한 이상적인 목적지를 만들기 위한 목표를 달성한다.










Design X+LIVING
Location Chengdu, China
Building area 973㎡
Completion 2020.9
Creative designer LI XIANG
Project director Fan Chen, Wu Feng
Participating designers Cu Zehuan, Lin Maiqi, Jiang Xueping, Fan Haifeng, Che Rui, Peng Xiang
Photographer SFAP
'Interior Project > Retail' 카테고리의 다른 글
| Wentz Store (0) | 2021.11.23 |
|---|---|
| UNI_JOY (0) | 2021.11.16 |
| Magmode of Hangzhou Kerry Center store (0) | 2021.11.12 |
| L'OCCITANE Shibuya (0) | 2021.11.01 |
| DMIL VIP SELEC SHOP (0) | 2021.10.06 |
마실와이드 | 등록번호 : 서울, 아03630 | 등록일자 : 2015년 03월 11일 | 마실와이드 | 발행ㆍ편집인 : 김명규 | 청소년보호책임자 : 최지희 | 발행소 : 서울시 마포구 월드컵로8길 45-8 1층 | 발행일자 : 매일



