
CNN, which everyone has most likely encountered and heard of at least once, aims to transform itself into clothing(apparel) and approach people in a new way to be with them anytime and anywhere in everyday life, just as they vividly deliver everything that happens in everyday life rather than stopping at the various news seen on TV as a news desk.
As can be seen from the brand slogan and concept ‘Go There’, it aims to approach each to their own form and implement URBAN ACTIVITY LIFE WEAR offline. This was aimed to be fused into the space with the meaning of ‘RECORDS’, which is also a characteristic of NEWS.
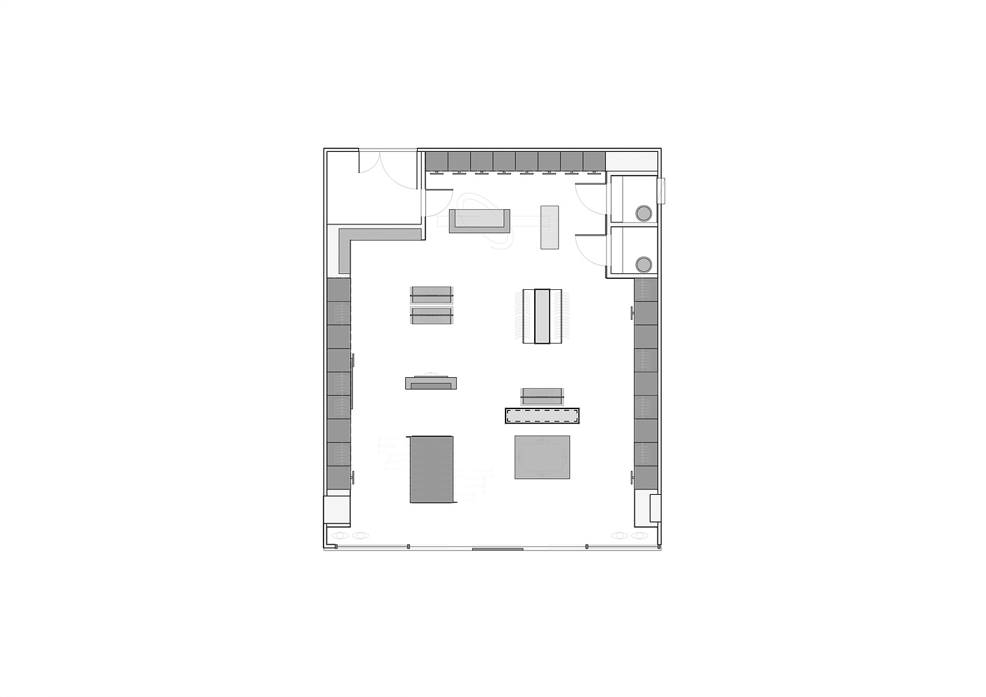
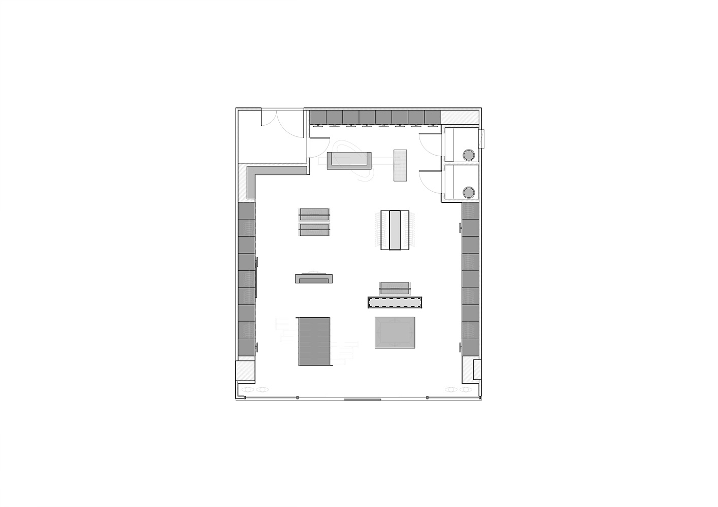
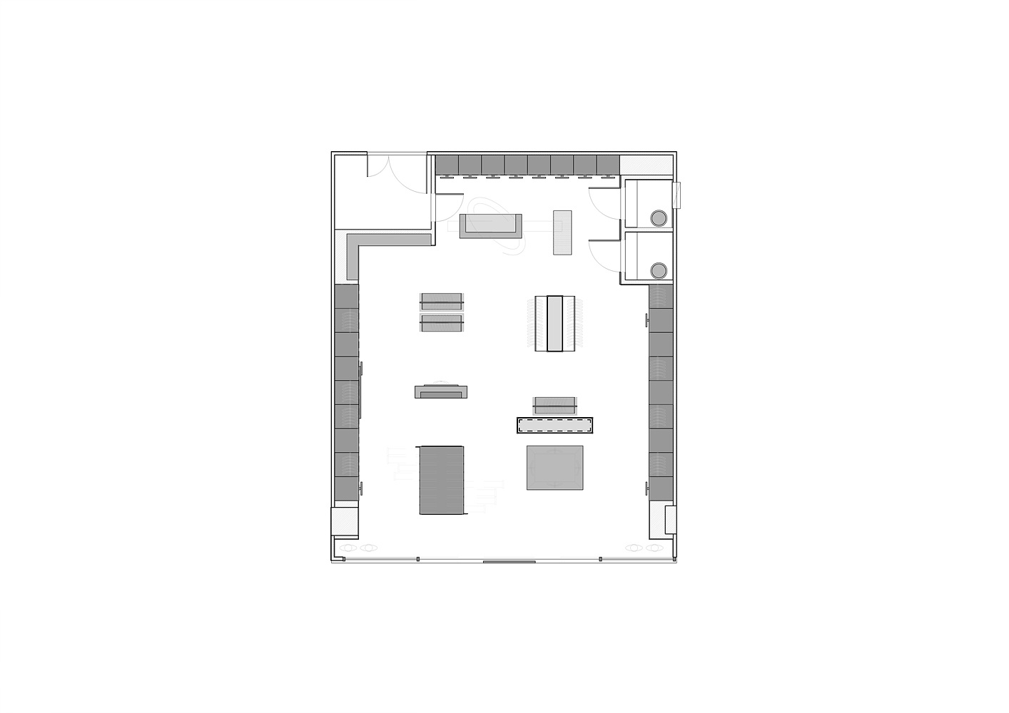
It aims to show the essence of CNN as a news outlet based on fact-finding and fact-recording, and this can lead to the recording of trivialities, happiness, joy in everyday life. Therefore, the various clothes can be classified by each TAG, and the clean and bright atmosphere, which is reminiscent of a news desk, can emphasize the trust as well as the original appearance of the product. The design and practicality of space itself were applied with some of the archive storage boxes to increase efficiency.

CNN이라는 누구나 한번쯤은 접하고 들어봤을, 뉴스데스크의 모습으로 TV에서 보는 다양한 뉴스에 그치지 않고, 일상생활에서 일어나는 모습을 생생하게 전달하듯 의류웨어(어패럴)로 탈바꿈하여 일상의 언제 어디서든 함께 할 수 있는 새로운 모습으로 다가갈 수 있게 하고자 한다.
브랜드 슬로건이자 컨셉인 Go There 에서 알수 있는 것 처럼 항상 생생한 소식을 전달하듯 각자의 나를 위한 모습으로 다가 올 수 있으며, URBAN ACTIVITY LIFE WEAR 를 오프라인으로써 구현하고자 한다. 이러한 모습을 NEWS의 특성이기도한 기록하다'RECORS'라는 의미로 브랜드를 공간에 녹여내고자 하였다.
사실파악과 사실 기록, 그에 입각한 보도 창구로써의 CNN의 본질을 보여주고자 함이며, 이는 일상에서의 사소함과 행복, 즐거움의 기록으로 이어질 수 있다. 때문에 다양한 의류는 각각의 TAG로써 구분을 해주고 뉴스데스크를 연상하듯 깔끔하고 밝은 무드는 신뢰감과 제품의 본연의 모습을 부각시켜 줄수 있다. 일부 기록실의 보관함 또한 공간 자체의 실용성과 디자인을 함께 적용함으로써 효율을 높여주게끔 하고자 하였다.








Studio NiiiZ DESIGN LAB
Location Gosan-ro, Uiwang-si, Korea
Use Commercial
Area 129.7㎡ / 39.2py
Design period 2021. 06 - 2021. 07
Construction period 2021. 08. 10 - 2021. 09. 10
Design team NiiiZ DESIGN LAB
Photographer Studio Gothic_jaesung Lee
'Interior Project > Retail' 카테고리의 다른 글
| BOON THE SHOP (0) | 2021.12.20 |
|---|---|
| Weinmanufaktur Clemens Strobl (0) | 2021.12.17 |
| Modes (0) | 2021.11.26 |
| Wentz Store (0) | 2021.11.23 |
| UNI_JOY (0) | 2021.11.16 |
마실와이드 | 등록번호 : 서울, 아03630 | 등록일자 : 2015년 03월 11일 | 마실와이드 | 발행ㆍ편집인 : 김명규 | 청소년보호책임자 : 최지희 | 발행소 : 서울시 마포구 월드컵로8길 45-8 1층 | 발행일자 : 매일



