
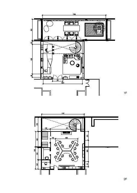
Variations and Expansion in Space
The two units yield multiple compositions and expansions in response to distant characters. The cubic unit is applied on the couch, blanket, and steps, where the cubes cover the multi-dimensions of up and down, left and right. The stereometric layering defines the openness of multiple compositions on the first floor, such as the movable layout of the furniture, the salon area for a small lecture, and the gathering. The transparent door with a steel frame connects the inside to outside, implying the interlocking relationship between the two.
The black steel panels form the curvaceous unit and the layering of geometric shapes are distorted and divided like an organic morphology of water bar, information desk, and the long dining table. The working desk on the second floor combines wood joints with steel panels. The structure looks like a butterfly that appears light and heavy at the same time. The symmetric shape facilitates the smooth circulation of the workflow.
Defining the Work Space
(1) The first floor is the lounge. The second floor is the working area. The long table on the center facilitates the discussion. The supporting functions are laid out on the periphery, such as the LED screen, cabinet, printing room, material display room, and library. There is no director’s office. Each employee is free to walk and exchange ideas with their own choice of the work area.
(2) Work as life: The sense of relaxation is enhanced by the pond, greenery outdoor, the kitchen, and dining table indoor with bamboo panels on the ceiling.
The Purity of Material
The use of simple elements such as wood, steel, and artistic paints achieve the purity of the space in this project. It also expresses the central mission of the company: to form the attitude and purity of design through the nature of the material.

공간의 변형과 확장
두 유닛은 멀리 떨어져 있는 특징에 대응하여 여러 구성과 확장을 만들어낸다. 큐빅 유닛은 소파, 담요 및 계단에 적용되며 큐브는 상하좌우의 다차원을 덮고 있다. 입체적 층위는 가구의 이동이 가능한 레이아웃, 소규모 강의를 위한 공간, 모임 등 1층의 다중 구성의 개방성을 정의한다. 철골이 있는 투명한 문은 내부와 외부를 연결하여 서로 맞물려 있다는 것을 보여준다.
검은색의 철재 패널은 곡선형 단위를 형성하고 기하학적 형태의 층은 워터바, 안내데스크, 긴 식탁의 유기적 형태처럼 왜곡되고 분할된다. 2층의 업무용 책상은 목재 조인트와 강철 패널을 결합하여 만들어졌다. 그 구조는 가볍지만 동시에 무거워 보이는 나비처럼 보인다. 대칭 모양은 워크플로우의 원활한 순환을 용이하게 한다.
작업 공간
(1) 1층은 라운지이고. 2층은 작업공간이다. 중앙의 긴 테이블은 토론을 용이하게 한다. 주변에는 LED 스크린, 캐비닛, 인쇄실, 자료 전시실, 도서관 등의 지원 기능이 배치되어 있다. 각 직원은 자신의 작업 영역을 선택하여 자유롭게 걸어 다니며 아이디어를 교환할 수 있다.
(2) Work as life: 연못, 야외 녹지, 주방, 천장에 대나무 패널이 있는 실내 식탁을 통해 편안함을 느낄 수 있다.
재료의 순수성
나무, 강철, 예술적 물감 등의 단순한 요소를 사용하여 이 프로젝트에서 공간의 순수성을 구현한다. 또한, 소재의 특성을 통해 디자인의 태도와 순수성을 형성한다는 회사의 핵심 사명을 표현한다.














Architects 9 Studio Design Group
Designers Tung Tsan Lee
Location Guangzhou, China
Building area 330㎡
Completion 2019.10
Material black iron, black glass, metal mesh, special paint, natural bamboo, wood & biofiber plastic composites, quartz brick
Photographer 9 Studio Design Group
'Interior Project > Office' 카테고리의 다른 글
| STGM Architects Head Office (0) | 2021.11.18 |
|---|---|
| Clarks Originals Design Studio (0) | 2021.11.17 |
| U-125 (0) | 2021.11.10 |
| Piknic Électronik (0) | 2021.11.09 |
| IMDAD (0) | 2021.11.05 |
마실와이드 | 등록번호 : 서울, 아03630 | 등록일자 : 2015년 03월 11일 | 마실와이드 | 발행ㆍ편집인 : 김명규 | 청소년보호책임자 : 최지희 | 발행소 : 서울시 마포구 월드컵로8길 45-8 1층 | 발행일자 : 매일



