
Private open spaces
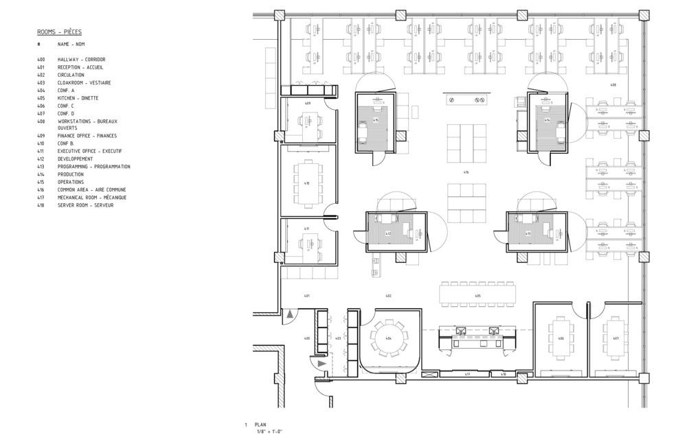
How do you balance the benefits and annoyances of an open‑concept office? How do you encourage collaboration while keeping things relatively private? How do you keep the hubbub of boisterous colleagues down? Open‑concept, the ultimate symbol of synergy and life in a workplace, accommodates more people in large, bright spaces. To make sure that everyone could enjoy the space without having to endure the general cacophony, the architects employed three strategies: create semi-open executive offices for the four co‑founders, add multiple set‑back areas where people can gather casually, and offer a variety of small closed, isolated meeting rooms.
Light for all
Located in a former clothing factory in the Mile End neighbourhood, the office has a wide bank of windows that wraps around the building. To make the most of this feature, workstations line the outer walls. This arrangement offers employees plenty of natural light and a sweeping view over the Jardin des possibles.
Standing desks
Made from a solid ash slab on raw bent steel supports, the custom furniture was raised to give employees the option of either sitting or standing. A low steel screen divides the individual workstations and lets employees personalize their own corner with a system of magnets. LED strips are concealed under the bend of the top section to directly illuminate the work surface.
Four founders, four booths
Right in the centre are four semi-open booths, very much reminiscent of take-out stands, for each of the founding partners. Made from local poplar plywood and translucent polycarbonate, they let in lots of natural light. These compact micro-offices have an integrated work desk and a small sit-down table in solid maple for private one‑on‑ones. A large pivot pane encourages team members to stop by and grab some work…to go!
Multiple gathering spots
Between the four executive offices and away from the workstations, the Bequia modular seating system made in Montreal by Perez furniture, and low bent steel tables serves as a casual spot for people to gather. With countless configurations, the space lends itself well to all sorts of activities, including friendly chit-chat, team meetings, group training, screenings, conferences and cocktail receptions. Although set back, these more discrete activities are still public. For confidential meetings, visitors and employees can use a number of closed‑off rooms with a variety of setups.
The lunchroom
A central feature of the layout, the long bar‑style counter makes a statement with its fifteen feet of solid ash. Spanning the length of the lunchroom, it is ideal for co‑workers to enjoy a chat over a meal. A large serving hatch with cabinets, top and bottom, hides all the kitchen tools and implements. Seated comfortably at the counter, the team has an unobstructed view of the open office. This makes for a perfect post-industrial piknic in great company!
Creative and inspiring, Piknic Électronik HQ speaks to the values of the burgeoning company through its layout. Open, warm and inclusive, it provides the optimal balance between peaceful and lively spaces.

프라이빗한 오픈 스페이스
개방형 개념의 사무실의 장점과 불편함을 어떻게 균형을 잡을 수 있을까. 어떻게 하면 사생활을 비교적 비공개로 유지하면서 협업을 장려할 수 있을까. 떠들썩한 동료들의 소란을 어떻게 가라앉힐까. 직장에서의 시너지와 삶의 궁극적인 상징인 개방형 콘셉트는 크고 밝은 공간에 더 많은 사람들을 수용한다. 건축가들은 일반적인 불협화음을 견디지 않고도 모든 사람들이 공간을 즐길 수 있도록 하기 위해 네 명의 공동 창업자를 위해 반개방형 사무실을 만들고, 사람들이 모일 수 있는 셋백 공간을 여러 개 추가하고, 다양한 폐쇄적인 회의실을 제공하는 세 가지 전략을 사용했다.
모두를 위한 빛
캐나다의 마일 엔드(Mile End) 인근 지역의 이전 의류 공장에 위치한 이 사무실은 넓은 창문이 건물을 감싸고 있다. 이 기능을 최대한 활용하기 위해 워크스테이션이 외벽을 따라 늘어서 있다. 이 배치는 직원들에게 풍부한 자연광과 정원을 한눈에 볼 수 있는 시야를 제공한다.
스탠딩 데스크
구부러진 강철 지지대에 단단한 재 슬래브로 만들어진 맞춤형 가구는 직원들에게 앉거나 서 있을 수 있도록 만들어졌다. 낮은 강철 스크린은 개별 워크스테이션을 나누고 직원들이 자석 시스템으로 자신의 자리를 개인화할 수 있도록 한다. LED 스트립은 작업 표면을 직접 비추기 위해 상단 부분의 구부러진 부분 아래에 숨겨져 있다.
4명의 창립자, 4개의 부스
바로 중앙에는 4명의 창립자들을 위한 각각 4개의 반개방형 부스가 있는데, 이것은 마치 테이크 아웃 판매대를 연상시킨다. 현지의 포플러 합판과 반투명 폴리카보네이트로 만들어진 그것들은 많은 자연광을 들여보낸다. 이 소형 마이크로 오피스에는 통합된 작업 데스크와 개인 1:1을 위한 단풍나무로 만들 작은 좌식 테이블이 있다. 커다란 피벗 창을 통해 팀원들은 잠시 들러서 작업을 할 수 있다.
여러 개의 모임 장소
네 개의 임원 사무실 사이와 워크스테이션에서 멀리 떨어져 있는 베키아 모듈식 좌석 시스템과 낮은 철제 테이블은 몬트리올 Perez Furniture의 가구로 사람들이 모일 수 있는 편안한 장소 역할을 한다. 셀 수 없이 많은 구성으로, 그 공간은 친근한 잡담, 팀 회의, 그룹 교육, 상영, 회의, 칵테일 리셉션을 포함한 모든 종류의 활동에 적합하다. 비록 뒤쪽으로 물러나 있지만, 이러한 보다 개별적인 활동은 여전히 공개적이다. 비밀회의를 위해 방문자와 직원은 다양한 설정이 있는 여러 개의 폐쇄형 방을 사용할 수 있다.
식사 공간
레이아웃의 중심 특징인 긴 막대형 카운터는 15피트의 단단한 재로 특징을 나타낸다. 점심 식사공간 전체에 걸쳐 동료들이 식사하면서 대화를 나누기에 이상적이다. 위아래로 캐비닛이 있는 대형 서빙 해치에는 모든 주방 도구와 기구들이 숨겨져 있다. 카운터에 편안하게 앉아 탁 트인 사무실을 볼 수 있다. 이것은 훌륭한 회사에서 산업화 이후의 완벽한 피크닉을 만든다.
창의적이고 영감을 주는 Piknic Electronik HQ는 배치를 통해 급성장하는 회사의 가치에 대해 말한다. 개방적이고, 따뜻하고, 포용적이며, 평화롭고 활기찬 공간 사이의 최적의 균형을 제공한다.












Architects L. McComber ltée
Location Montréal, Canada
Building area 466.37㎡
Design team David Grenier, Olivier Lord, Philip Staszewski et Laurent McComber
Collaborators Design par Judith Portier, Félix Lepage, Stéphane Latreille
General contractor Construction Mathieu Champagne
Modular seating system Perez Furniture
Completion 2016. 01
Client Piknic Électronik & Igloofest
Photographer Raphaël Thibodeau
'Interior Project > Office' 카테고리의 다른 글
| No. 9 Rhapsody (0) | 2021.11.11 |
|---|---|
| U-125 (0) | 2021.11.10 |
| IMDAD (0) | 2021.11.05 |
| Basix HQ (0) | 2021.11.04 |
| Redwood Highway (0) | 2021.11.03 |
마실와이드 | 등록번호 : 서울, 아03630 | 등록일자 : 2015년 03월 11일 | 마실와이드 | 발행ㆍ편집인 : 김명규 | 청소년보호책임자 : 최지희 | 발행소 : 서울시 마포구 월드컵로8길 45-8 1층 | 발행일자 : 매일



