
The life traces in the old city of Beijing, enable the deeply hidden hotel to show the unique spatial quality and continue to attract travelers from afar to stay and experience. Every time walking through the alleys, people could be attracted by different forms of old houses in courtyards of different sizes.
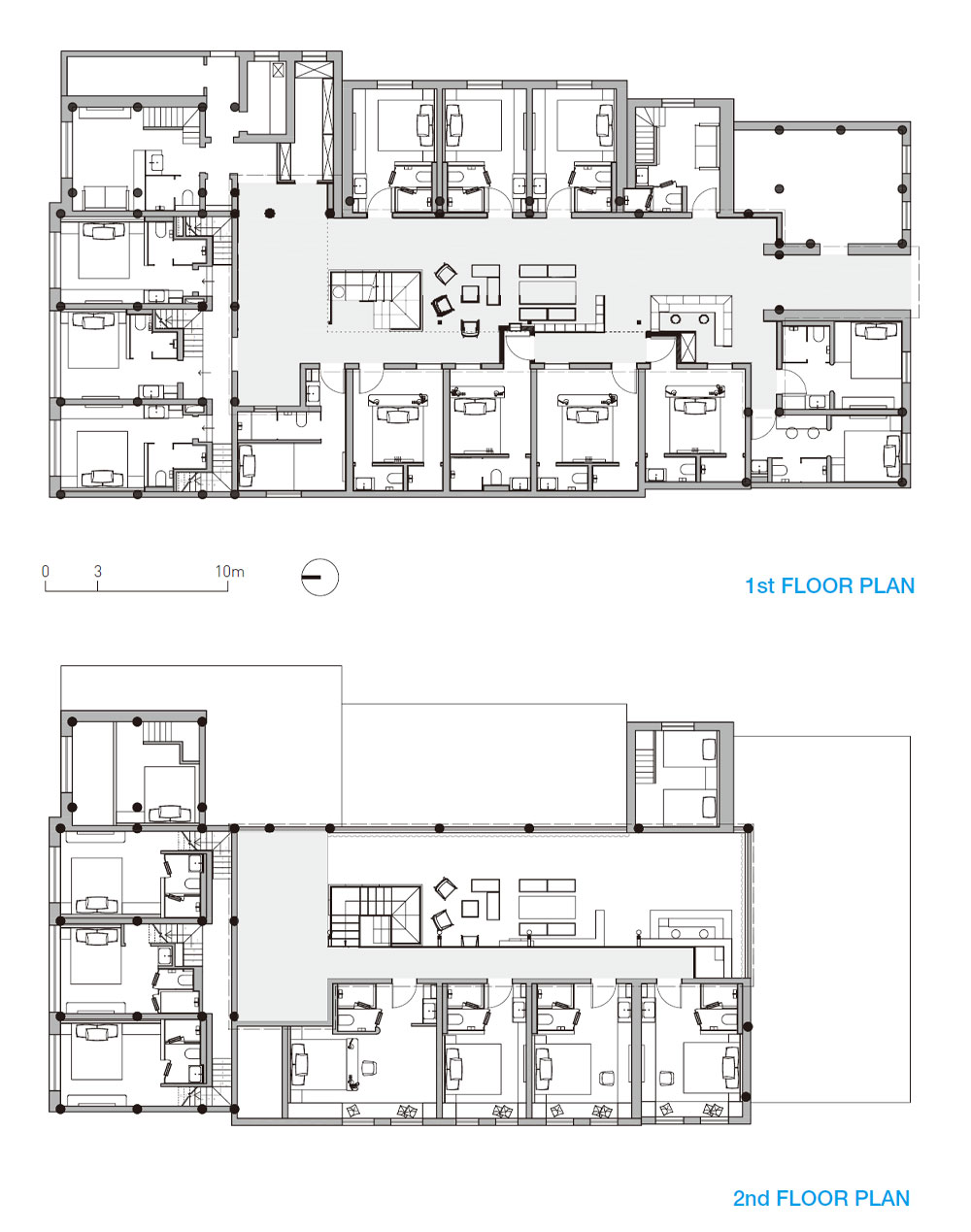
Initially, the original decoration was demolished. We were attracted by the sophisticated wooden roof structure of this old house, which increased the richness and visual characteristics of the space. 13 guest rooms are arranged in a compact layout, while the courtyard under the large roof becomes the core area for tourists to enter. A light staircase is placed in the relatively introverted area, allowing the newly added second floor to be more easily connected with the courtyard. Both floors have reserved public activity space for guests, and there are also small corners for communication and collision; reading, talking, and daze under the big roof become a part of the hotel.
Respond to the original structural proportions, the reinforced columns are connected with the roof beams homeopathically. All designs are developed under the structural logic of the original old building; the structure of the staircase naturally becomes a visual focus in the space, but its turning form and scale are still integrated with the overall atmosphere. In the way of atmosphere creation, the main visual color is the combination of logs and dark red under different gray textures. It also abstracts and organizes people’s intuitive feelings in the alley, simple and delicate.

현대적 감각이 더해진 전통가옥에서의 하루, 웰웰웰 호텔
베이징 구시가지 내 깊게 숨겨진 웰웰웰 호텔은 독특한 공간을 보여주고, 계속해서 여행자들의 발길을 이끈다. 골목을 걸을 때마다 사람들은 다양한 크기의 안뜰에 있는 서로 다른 형태의 오래된 집에 매료된다.
처음에는 기존의 장식을 철거할 계획이었지만 건축가는 공간의 풍부함과 시각적 특성을 높인 오래된 집의 세련된 목조 지붕 구조에 매료됐다. 13개의 객실이 촘촘하게 배치되어 있으며, 큰 지붕 아래의 안뜰은 관광객의 출입을 위한 핵심 공간이 된다. 비교적 내향적인 지역에 가벼운 계단이 배치되어 새로 추가된 2층을 안뜰과 더 쉽게 연결할 수 있다. 두 층 모두 손님을 위한 공공 활동 공간이며, 큰 지붕 아래는 독서, 담소 및 휴식을 취할 수 있는 공간이 조성됐고, 대화를 위한 작은 모퉁이 공간도 있다.
기존의 구조적 비율에 따라 콘크리트 기둥은 같은 방법으로 서까래와 연결된다. 모든 디자인은 원래의 오래된 건물의 구조적 논리에 따라 개발되었다. 계단의 구조는 자연스럽게 공간의 시각적 초점이 되지만 그 회전 형태와 규모는 여전히 전체적인 분위기에 통합되어 있다. 분위기를 만드는 주요한 시각적 방법은 회색의 질감 아래에 통나무와 진한 빨간색을 배치하는 것이다. 또한, 골목에서 사람들의 감정을 단순하고 섬세하게 추상화하고 구성하는 것이 중요하다.
















Architect FON STUDIO
Location Dongcheng District, Beijing, China
Gross floor area 800㎡
Design period 2020. 8 - 2020. 9
Completion 2020. 11
Design team Jin Boan, Li Hongzhen, Luo Shuanghua, Song Yuanyuan
Client ttg
Photographer Fon Studio
해당 프로젝트는 건축문화 2021년 8월호(Vol. 483)에 게재되었습니다.
The project was published in the August, 2021 issue of the magazine(Vol. 482).
August 2021 : vol. 483
Contents : RECORDS 2021 KOREA YOUNG ARCHITECT AWARD 문체부, 2021 젊은 건축가상 발표 : NEWS / COMPETITION / BOOKS : SKETCH THE SHAWSHANK REDEMPTION / CRISTINA CORREA FREILE 쇼생..
anc.masilwide.com
'Architecture Project > Commercial' 카테고리의 다른 글
| HOTEL SIRO (0) | 2021.11.08 |
|---|---|
| SINDHORN KEMPINSKI HOTEL (0) | 2021.11.05 |
| NEYA PORTO HOTEL (0) | 2021.11.03 |
| SHIROIYA HOTEL (0) | 2021.11.02 |
| OKLM LUXE PENSION (0) | 2021.10.26 |
마실와이드 | 등록번호 : 서울, 아03630 | 등록일자 : 2015년 03월 11일 | 마실와이드 | 발행ㆍ편집인 : 김명규 | 청소년보호책임자 : 최지희 | 발행소 : 서울시 마포구 월드컵로8길 45-8 1층 | 발행일자 : 매일



