
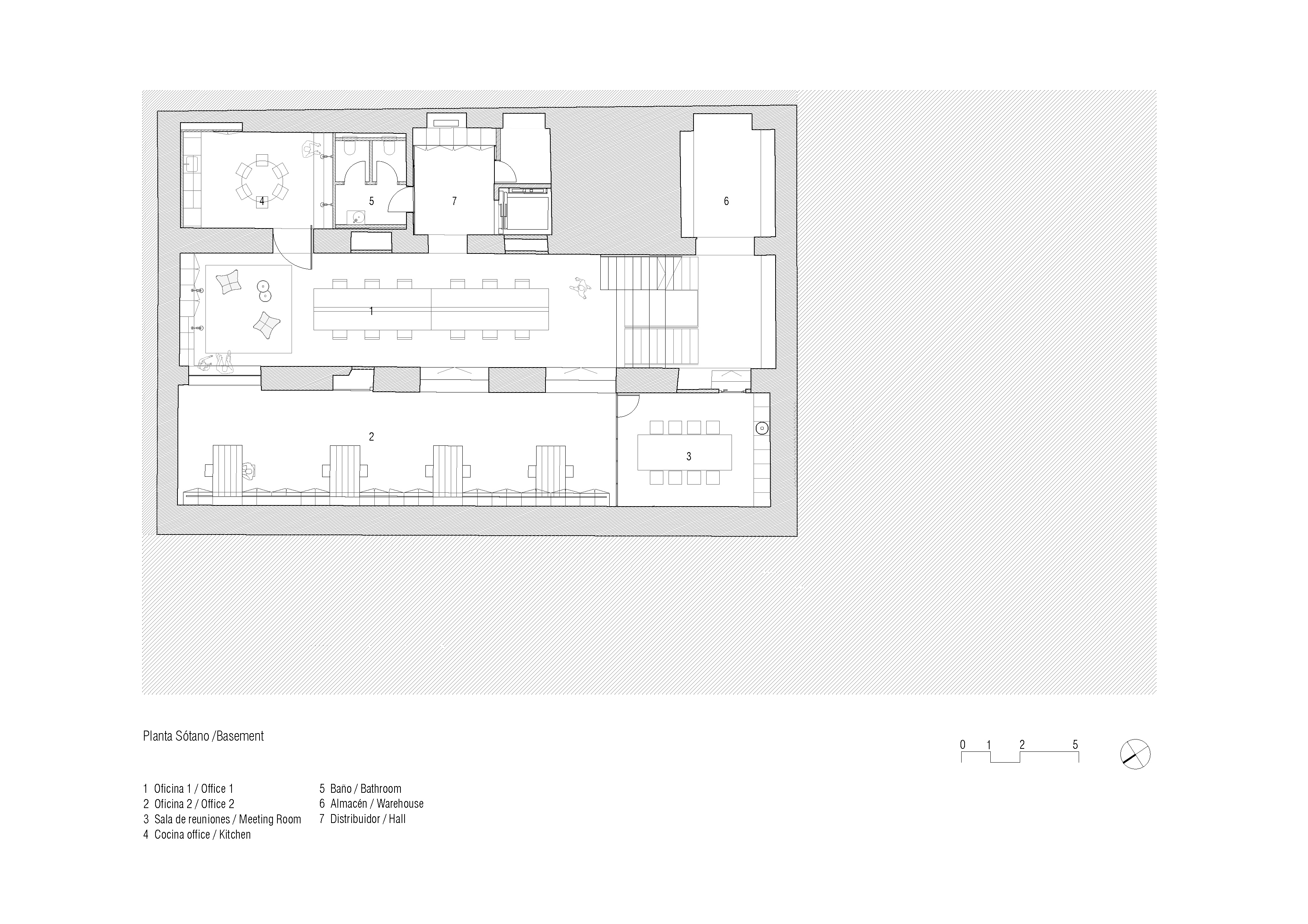
In the ground floor and basement of a corner building built in 1904, between Comerç and Ribera streets, we find the new headquarters of the dermatological company. Taking into account the company has a strong committment with the training of its employees and representatives the headquarters were in need of a training area. The ground floor with access from the street is distributed between two scopes, the hall and these formation area. The divisions between the spaces are conceived as containing walls of habitable furniture, harboring the necessary program and installations. On the other hand, three adjacent rectangular floor vaults made of ceramic brick conform the basement floor. This basement floor is thought from the idea of having again the original visual connections across a great central space with a large table. where habitually the main business activity resides as well as intersections and interactions of the daily company routine. The other two vaults are distributed parallel, and from every point of view, makes it possible to recognize the entire basement in its whole dimension. Both the original structure and the rediscovered materials had been considered in the rehabilitation of this local, enhancing the preexisting space conditions and the heritage gathered over time. Rehabiting the space is the main intention of the project, from the beginning three premises had been taken into account respecting the existing: Recovering + Re-using + Re-lighting
Recovering
Interventions seek to bring back the autenticity of the original material in its time of construction, the ambience that once the building was originally designed for, minimizing the use of new materials, leaving just the existing resting on it respecting and reducing the impact versus the recovered.
Re-using
The intention to purposely underline the “use again” attitude lead the project to reuse the furniture from the relocated headquarters, which had been planned by our studio in another building years before.
Not only the furniture has been reused, it has also been thoroughly relocated in every single space. Rehabiting and establishing new relationships has been the main goal, embracing the existing and settling new spacial relationships with the uses program.
Relighting
The goal was to achieve the maximum amount of light in all these area. Being a basement level is indeed a strong conditionant as the only natural entrance of light was a large window to Comerç Street, next to the access stairs to its lowest level.
A mirror box becomes the strong point of this intervention sheltering a settled program underneath this great point of light reflections. The personality of each space evolves with the amount of natural light given according to the solar schedule. The more white color is in the surfaces, the more light is all over the space. As a game of duplicities between interior and exterior, the mirror box becomes a “follie” gathering complexity and distorsion, amuseing us as the architecture some times has to.

Comerç 거리와 Ribera 거리 사이에 있는 1904년에 지어진 모퉁이 건물의 1층과 지하에는 피부과 회사의 새 본사가 있다. 회사가 직원 교육에 강한 의지를 갖고 있다는 점을 고려하면 본사에는 교육 구역이 필요했다. 거리에서 접근할 수 있는 1층은 홀과 이러한 형성 영역의 두 스코프 사이에 분배된다. 공간 사이의 구분은 거주 가능한 가구의 벽을 포함하고 필요한 프로그램과 설치를 포함하는 것이다. 세라믹 벽돌로 만들어진 세 개의 인접한 직사각형 바닥 금고는 지하 바닥과 동일하다. 이 지하층은 큰 테이블이 있는 큰 중앙 공간을 가로질러 다시 원래의 시각적 연결을 갖는 생각에서 나온 것이다. 주요 비즈니스 활동뿐만 아니라 일상적인 회사 루틴의 교차점과 상호작용이 있는 곳이다. 다른 두 개의 금고는 평행하게 분포되어 있고, 모든 관점에서 볼 때 지하실 전체를 인식하는 것이 가능하다. 원래 구조와 재발견된 재료 모두 이 지역의 재건에 고려되어 기존의 공간 조건과 시간이 지남에 따라 수집된 유산을 향상시켰다. 공간을 재건하는 것이 프로젝트의 주요 의도이며, 처음부터 기존의 세 가지 전제가 고려됐다.
복구 + 재사용 + 조명
복구
건물이 원래 설계되었을 때의 분위기인 원래 재료의 독립성을 되찾고, 새로운 재료의 사용을 최소화하며, 기존의 휴식만 보존하고 복구된 재료에 비해 충격을 감소시킨다.
재사용
일부러 "다시 사용"하는 태도를 강조하려는 의도가 이전된 본사의 가구를 재사용하는 프로젝트를 이끌었는데, 이전 본사는 몇 년 전에 다른 건물에서 이 가구를 계획했다. 가구들이 재사용되었을 뿐만 아니라, 그것은 또한 모든 공간마다 완전히 재배치됐다. 기존의 관계를 수용하고 용도 프로그램과 새로운 공간적 관계를 정착시키는 것이 주요 목표였다.
재분배
이 모든 영역에서 최대한의 빛을 얻는 것이 목표였다. 가장 낮은 층으로 가는 계단 옆에 있는 Comerç Street로 통하는 큰 창문이 유일한 자연적인 빛의 입구였기 때문에 지하층이라는 것은 실제로 강력한 조건이다.
미러박스는 이 큰 빛 반사 지점 아래에 정착된 프로그램을 보호하는 이 개입의 강점이 된다. 각 공간의 개성은 태양 일정에 따라 주어진 자연 채광의 양에 따라 진화한다. 표면에 흰색이 많을수록 공간 전체에 더 많은 빛이 공간 전체에 퍼진다. 내부와 외부 사이의 이중성의 게임으로서, 미러 박스는 복잡성과 왜곡을 모으는 "follie"가 되어, 때때로 건축물이 해야 하는 것처럼 우리를 즐겁게 한다.












Architects Balet Roselló Arquitectos
Location Barcelona, Spain
Completion 2020
Architects on charge BR arquitectos
Design team Cristina Balet, Esther Roselló, Eulàlia Grabolosa
Engineering Sergi Cano
Photographer Davide Camesasca
'Interior Project > Office' 카테고리의 다른 글
| SK Networks Lounge (0) | 2021.10.14 |
|---|---|
| SK magic Brand shop, it’s magic (0) | 2021.10.13 |
| SEOUL MADE SPACE (0) | 2021.10.12 |
| Electronic Arts (0) | 2021.10.06 |
| 165_MIDEarchitetti office (0) | 2021.10.04 |
마실와이드 | 등록번호 : 서울, 아03630 | 등록일자 : 2015년 03월 11일 | 마실와이드 | 발행ㆍ편집인 : 김명규 | 청소년보호책임자 : 최지희 | 발행소 : 서울시 마포구 월드컵로8길 45-8 1층 | 발행일자 : 매일



