
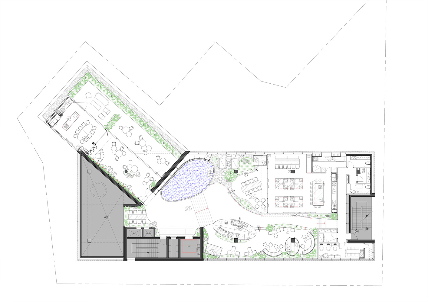
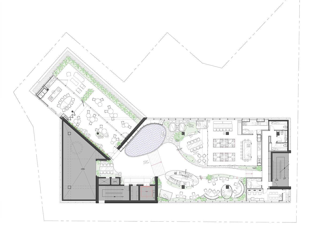
The redefinition of brand shop “Vital Streaming Platform”
The SK magic’s first brand shop ‘it’s magic’ is different from the usual brand shop as it makes an interface of a customer and a brand ambiguous and it’s an intended space for consumers to experience brand items in unconscious. To realize it, the person in charge of the project planned a design to bring out an activity which consumer itself could approach to the product by themselves not a showroom which just displays the brand products.

[nature gallery Happiness Garden]
'Nature Gallery Happiness Garden', which will give 'it's magic's first impression, is a place that raises expectations for various contents and brand products that will meet the brand shop. The large media wall, about 10m wide and 3m high, embodies the essential values of water and fire pursued by the brand, and consumers can feel overwhelmed as soon as they enter the space and appreciate nature in a different way. At the bottom, a water space connected to the media wall where the image of nature will be streamed was provided to give scalability to the space, and an underwater motor was installed to connect with changing images.

[Fresh Shower zone]
The Fresh Shower Zone, the first space to reach past the entrance, is where SK Magic's unique technology is applied to the space. It is also a space that differentiates itself from existing brand shops as it can cope with fine dust and viruses, the biggest issues in recent years, allowing consumers to experience fine dust reduction mats and SK Magic's air purifiers and feel comfort and stability that have not been felt anywhere else.

[Cooking Studio]
Kitchen products made with the brand's main technology are essential products for life, so we planned a space where you can experience the product naturally, not a typical showroom. Visitors will naturally use brand products such as induction and electric ovens at the cooking studio.
As it is the most active space for solidarity, it gave a warm atmosphere using patterned wood and installed an open-close door to create a private atmosphere while connecting to the Gildong Lounge according to the purpose. Overall space is giving clean and refining atmosphere with heavy off-white concrete and coating finishes but designed in various ways by extending material spectrums in the classes and seats of café, where customers will stay. Above all, the stainless steel "direct water pipe" in the direct water purifier, a product of SK Magic, was brought as an element of spatial design, and the heterogeneous material, Wood, was compromised in a structural and simple way to configure the smart image of the magic product line.

[Gildong Lounge]
Gildong Lounge, located in the center of It's Magic brand shop and serves as the center of space, is a cafeteria designed for consumers to share their experiences in it's magic. We intended a minimal atmosphere to match the exterior of the building and used concrete as the main finishing material for connection with the floor. In particular, the counter, which can be said to be the point of the lounge, is made of ultra-density micro-concrete and boasts a stable mass among brand shops with various contents.

브랜드샵의 재정의 “Vital Streaming Platform”
SK매직의 첫 브랜드샵인 it’s magic은 일반 브랜드샵과 달리 소비자와 브랜드의 접점을 모호하게 하여 소비자들이 무의식중 브랜드의 제품을 경험하도록 의도된 공간입니다. 이를 구현시키기 위해 프로젝트 담당자는 단순히 브랜드의 제품을 진열해 놓은 쇼룸이 아닌, 고객 스스로 제품에 접근할 수 있는 능동성을 끌어낼 수 있는 디자인을 설계했습니다.

[nature gallery 행복정원]
t's magic 의 첫인상을 심어줄 'nature gallery 행복정원' 은 브랜드샵을 만나게 될 다양한 콘텐츠와 브랜드 제품에 대한 기대감을 불어 넣어주는 곳입니다. 가로 10m, 높이 3m 가량의 대형 미디어 월에 브랜드가 추구하는 생명 본질의 가치인 물, 불 공기를 형상화했고 이를 보며 소비자들은 공간에 들어서자마자 압도감을 느끼는 동시에 자연을 색다른 방법으로 감상하며 가까이 할 수 있습니다. 하부에는 자연의 이미지가 스트리밍 될 미디어월과 연결되는 수공간을 마련하여 공간에 확장성을 부여했고 수중 모터를 설치해 변화하는 영상과 이어질 수 있도록 인터렉티브 미디어를 설치하였습니다.

[프레쉬샤워존]
입구를 지나 가장 먼저 도달하게 될 공간인 프레쉬샤워 존은 SK매직의 독보적인 기술력을 공간에 적용한 곳입니다. 최근 가장 큰 이슈인 미세먼지와 바이러스에 대응할 수 있어 기존 브랜드샵과는 다른 차별점을 갖는 공간이기도 한 이곳에서 소비자들은 미세먼지 저감매트 와 SK매직의 공기청정기를 경험하며 다른 곳에서는 느낄 수 없던 쾌적함과 안정성을 느낄 수 있도록 하였습니다.

[쿠킹 스튜디오]
브랜드의 주기술력으로 만들어진 주방제품은 생활에 꼭 필요한 제품인만큼 일반적인 쇼룸이 아닌 제품을 자연스럽게 경험할 수 있는 공간을 계획하였습니다. 방문객들은 쿠킹 스튜디오에서 브랜드 제품인 인덕션과 전기 오븐 등을 자연스럽게 사용하게 될 예정입니다.
가장 활발하게 연대가 이루어질 공간인 만큼 무늬목 원목을 이용해 따뜻한 분위기를 주었고 여닫이문을 설치하여 프라이빗한 분위기를 조성하면서도 목적에 따라 길동라운지와 연결될 수 있도록하였습니다. 전체적인 공간은 묵직한 오프화이트 콘크리트, 도장 마감으로 깨끗하고 정제된 느낌을 주면서도 클래스와 카페 좌석 등 고객이 머물게 될 곳에는 소재의 스펙트럼을 넓혀 다채롭게 디자인했습니다. 무엇보다 sk매직의 제품인 직수 정수기 속 스테인리스 '직수관'을 공간디자인의 요소로 가져왔고 그에 이질적인 소재인 우드를 구조적이고 심플한 방식으로 절충하여 매직 제품군의 스마트한 이미지를 형상화하였습니다.

[길동 라운지]
It’s magic 브랜드 샵 중심에 자리하며 공간의 구심점 역할을 해주는 길동 라운지는 소비자들이 it's magic 안에서의 서로의 경험을 공유할 수 있도록 마련한 카페테리아입니다. 건축 외관과 어울러질 수 있도록 미니멀한 분위기를 의도했으며 바닥과의 연결을 위해 콘크리트를 주 마감재로 사용했습니다. 특히 라운지의 포인트라고 할 수 있는 카운터는 초밀도 미콘 콘크리트로 만들어져 다양한 콘텐츠가 존재하는 브랜드샵 가운데 안정적인 매스감을 자랑합니다.





Studio Danaham
Location Gildong, Gangdong-gu, Seoul
Use Brand Shop
Gross floor area 645㎡
Design period 2019. 12 - 2020. 06
Construction period 2020. 10 - 2021. 01
Design Team Gu nari, Park jongwook, Lee hyejin
Construction Han jaekyoon, Kim Jihyuk, Kang Junwon
Landscaping Lee eunee, Lee gyunghee
Photographer studiotom
'Interior Project > Office' 카테고리의 다른 글
| Behavox (0) | 2021.10.19 |
|---|---|
| SK Networks Lounge (0) | 2021.10.14 |
| ART CLUB BORN pHFormula (0) | 2021.10.12 |
| SEOUL MADE SPACE (0) | 2021.10.12 |
| Electronic Arts (0) | 2021.10.06 |
마실와이드 | 등록번호 : 서울, 아03630 | 등록일자 : 2015년 03월 11일 | 마실와이드 | 발행ㆍ편집인 : 김명규 | 청소년보호책임자 : 최지희 | 발행소 : 서울시 마포구 월드컵로8길 45-8 1층 | 발행일자 : 매일



