
It has been a great challenge designing a working space highly representative of our identity.
An old industrial building, previously serving as carpentry and dance school, has been chosen as our new home.
A major intervention on the indoor, allowed us to provide the building with a “new life” that is a solid “manifesto” of our method that enhances a consistent use of the materials.
The new face concrete structure allowed to double the surface of the building, obtaining a new floor.
The roofing skylights facing north and the glass windows in the main front facing south contribute with direct natural light.
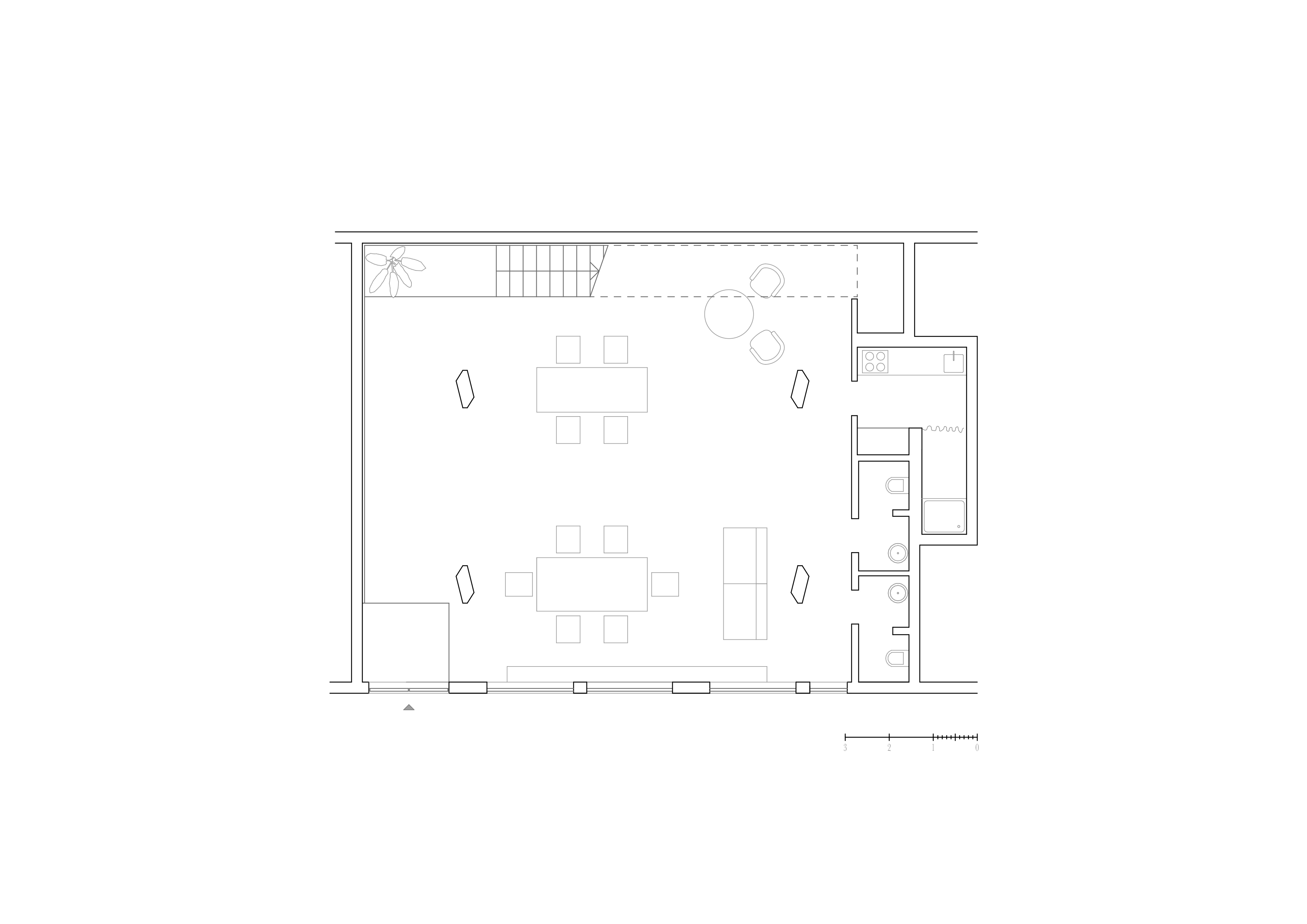
The building develops in two open-space levels: the ground floor is a public space used for meetings, expositions and events, while the first floor is the real working space.

MIDE architetti의 정체성을 매우 잘 대변하는 작업 공간을 설계하는 것은 큰 도전이었다.
이전에 목공과 무용학교로 사용됐던 오래된 산업 건물이 MIDE architetti의 새 작업공간으로 선정됐다.
실내에 대한 주요한 개입으로, 건축가는 건물에 "새로운 삶"을 제공할 수 있었다. 이는 재료의 일관된 사용을 향상시키는 방법의 확고한 "선언"이다.
새로운 콘크리트 구조물은 건물의 면적을 두 배로 늘려 새로운 층을 얻었다.
북쪽을 향한 지붕의 채광창과 남쪽을 향하고 있는 전면의 유리창은 직접적인 자연 채광에 기여한다.
건물은 두 개의 열린 공간으로 발전했다. 1층은 회의, 전시 그리고 행사에 사용되는 공공 공간인 반면, 2층은 실제 작업 공간이다.
















Architects MIDE architetti
Location Fiesso d'Artico (VE), Italy
Program Office
Building area 210㎡
Design period 2018. 01 - 2018. 02
Construction period 2018. 02 - 2018. 09
Completion 2018. 09
Principal architect MIDE architetti
Project architect Fabrizio Michielon and Sergio de Gioia
Construction Impresa Edile Carlo Pampagnin
Photographer Alessandra Bello
'Interior Project > Office' 카테고리의 다른 글
| SEOUL MADE SPACE (0) | 2021.10.12 |
|---|---|
| Electronic Arts (0) | 2021.10.06 |
| SSENSE (0) | 2021.09.27 |
| Attraction (0) | 2021.09.24 |
| OFFICE 04 (0) | 2021.09.23 |
마실와이드 | 등록번호 : 서울, 아03630 | 등록일자 : 2015년 03월 11일 | 마실와이드 | 발행ㆍ편집인 : 김명규 | 청소년보호책임자 : 최지희 | 발행소 : 서울시 마포구 월드컵로8길 45-8 1층 | 발행일자 : 매일



