
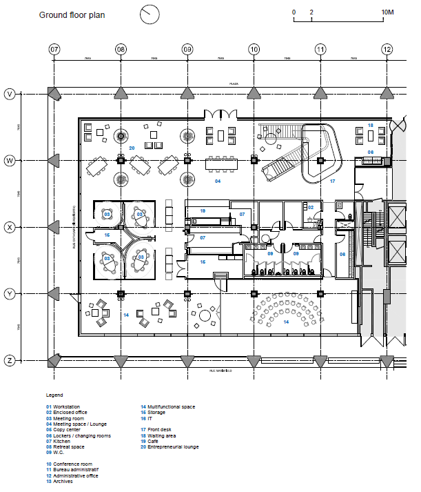
The remodeling of the corporate head office of the Business Development Bank of Canada at Place Ville Marie underlines the great potential and richness of Montreal's modern architectural heritage. From a sustainability perspective, the project aims to innovate in its response to changes in work patterns linked to new technologies, and with an eye to growing preoccupation for the well-being of workers. Located in the iconic tower of I.M. Pei since 1994, the Business Development Bank of Canada wanted to regroup the 1 000 employees of its head office, dispersed across adjacent buildings, under one roof. The BDC now occupies more than 16 000 m2 (173 000 ft2). The proposed architectural concept for the workspace presents an innovative socio-spatial model in response to the emerging needs of a new generation of knowledge workers. The first stage of the project confirmed the potential of the redevelopment of several floors of the 1968 tower and consolidated BDC's desire to respond responsively to the growing urban ecological challenges of the 21st century.
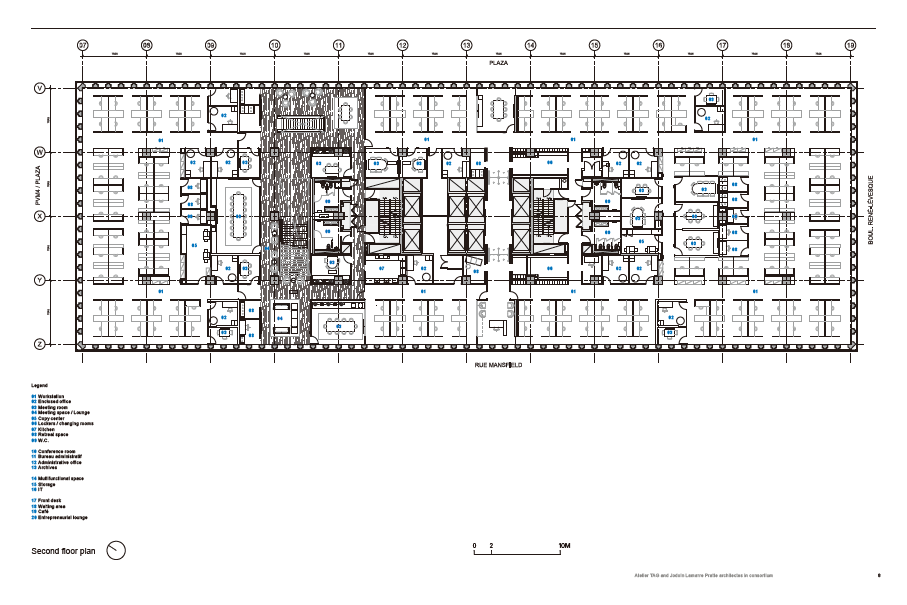
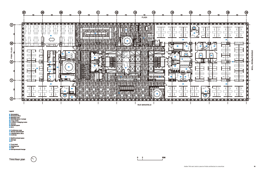
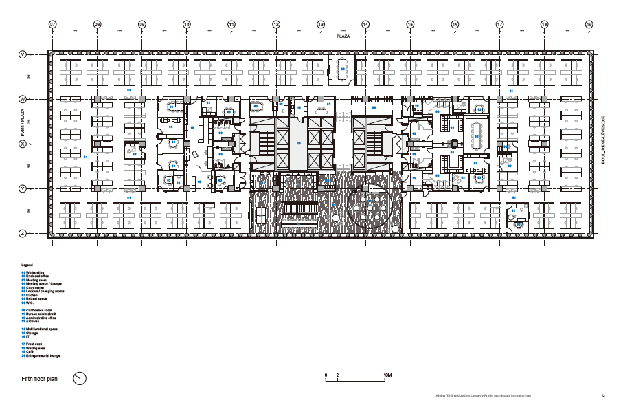
A legacy of the modern period, office towers are typically composed of a series of horizontal spaces with little inter-floor connection. The deployment of the BDC on seven levels is an opportunity to propose an alternative system that defines spacious, bright, and vertically interconnected collaborative workspaces. By introducing double-height spaces and internal stair connections, employees are reunited through a vertical axis that becomes the daily mode of travel, connects different departments, and supports various social activities. Orchestrated as a socio-spatial device, the new architectural staircase becomes the geographic, social, and symbolic heart of the BDC. As a place of gathering and chance encounters, the staircase unfolds from floor to floor and anchors programmatic elements specific to each department. It changes the sociability of departments according to their location in the tower, moving from a more public program on the ground floor to spaces suitable for concentrated work on the 6th floor.
The architectural concept embodies the commercial competitiveness of BDC, for which the well-being of its employees is the real engine of its productivity and growth. The definition of a socio-spatial structure based on different degrees of interpersonal interactivity allows everyone to navigate between fortuitous exchanges and formal meetings by department, group, or individual work. The project focuses on spatial transparency, immersion in a cityscape rich in natural (St. Lawrence River and Mount Royal) and urban landmarks, and the use of symbolically significant Canadian materials such as maple and aluminum to ensure both the durability and the perennity of the design.
Structured in five phases of construction, this complex project was carried out in a dense urban context while remaining in function. It represents an exemplary collaboration between the tenant, to whom the project is addressed, the owner, responsible for the integrity of its facilities, and the team of architects. The latter proposed a reversible project, respectful of modern heritage and reflecting the values of BDC, for which LEED Gold certification was obtained.

Place Ville Marie에 있는 캐나다 비즈니스 개발은행(Business Development Bank of Canada)의 본사를 리모델링은 몬트리올의 현대 건축 유산의 큰 잠재력과 풍부함을 강조한다. 지속 가능성의 관점에서, 이 프로젝트는 새로운 기술과 연결된 작업 패턴의 변화에 대응하고 근로자의 웰빙에 대한 관심이 높아지는 것을 염두에 둔 혁신을 목표로 한다. 1994년부터 I.M. Pei의 상징적인 타워에 위치한 캐나다 비즈니스 개발은행(Business Development Bank of Canada)은 인접한 건물에 흩어져 있는 본사 직원 1,000명을 한 지붕 아래로 재편성하기를 원했다. BDC는 이제 16,000㎡ 이상을 점유하고 있다. 작업 공간에 대해 제안된 건축 개념은 새로운 세대의 지식 근로자의 새로운 요구 사항에 대응하여 혁신적인 사회 공간 모델을 제시한다. 프로젝트의 첫 번째 단계는 오래된 1968년의 타워의 여러 층에 대한 재개발 가능성을 확인하고 21세기의 증가하는 도시 생태학적 도전에 대응하려는 BDC의 요구사항을 통합했다.
현대 시대의 유산인 오피스 타워는 일반적으로 층간 연결이 거의 없는 일련의 수평 공간으로 구성된다. 7개 레벨에 BDC를 배치하는 것은 넓고 밝고 수직으로 상호 연결된 협업 작업 공간을 정의하는 대안 시스템을 제안할 수 있는 기회였다. 이중 높이 공간과 내부 계단 연결의 도입은 직원에게 일상적인 이동 수단이 되고, 다른 부서를 연결한다. 또한, 다양한 사회 활동을 지원하는 수직축을 통해 결합된다. 사회 공간적 장치로 편성된 새로운 건축 계단은 BDC의 지리적, 사회적, 상징적 핵심이 된다. 모임과 우연의 만남의 장소로서 계단은 층에서 층으로 펼쳐지고 각 부서의 고유한 프로그램적 요소를 고정시킨다. 타워 내 위치에 따라 부서의 사교성을 변화시키며, 1층의 공공 프로그램에서 6층의 집중 작업에 적합한 공간으로 이동할 수 있다.
건축 개념은 직원의 웰빙이 생산성과 성장의 진정한 엔진인 BDC의 상업적 경쟁력을 구현한다. 서로 다른 수준의 대인 상호 작용을 기반으로 한 사회 공간 구조의 정의는 모든 사람이 부서, 그룹 또는 개별 작업별로 우연한 교류와 공식 회의 사이를 탐색할 수 있도록 한다. 이 프로젝트는 공간 투명성, 풍부한 자연 경관(세인트 로렌스 강 및 마운트 로열) 및 도시 랜드마크에 대한 몰입감, 그리고 내구성과 지속성을 모두 보장하기 위해 단풍나무와 알루미늄과 같은 캐나다의 상징적인 재료를 사용하는 것에 중점을 두고 있다.
5단계의 건설로 구성된 이 복잡한 프로젝트는 기능을 유지하면서 밀집된 도시 맥락에서 수행됐니다. 이는 프로젝트를 다루는 세입자, 시설의 무결성을 책임지는 건축주와 건축가 간의 모범적인 협력을 나타낸다. 건축가는 근대 유산을 존중하고 BDC의 가치를 반영한 리버서블 프로젝트를 제안하여 LEED Gold 인증을 받았다.












Architects Atelier TAG and Jodoin Lamarre Pratte architectes in consortium
Location Montreal, Canada
Building area 16,000㎡
Electromechanical Dupras Ledoux
Structure NCK
Project management Avison Young
General contractor P&R Desjardins
Acoustic consultant WSP
LEED Consultant Vertima
Building codes and standards consultant Technorm
IT integration AVI-SPL
Kitchen and catering consultant Bernard et Associés
Clients Business Development Bank of Canada and Ivanhoé Cambridge
Photographer P. Karwowski
'Interior Project > Office' 카테고리의 다른 글
| Frank and Oak - Offices (0) | 2021.09.02 |
|---|---|
| Between Light and Scene - UKEAS office (0) | 2021.08.26 |
| Montreal FinTech Station (0) | 2021.08.19 |
| OATBOX, headquarters (0) | 2021.08.06 |
| SkiDeal Office (0) | 2021.08.02 |
마실와이드 | 등록번호 : 서울, 아03630 | 등록일자 : 2015년 03월 11일 | 마실와이드 | 발행ㆍ편집인 : 김명규 | 청소년보호책임자 : 최지희 | 발행소 : 서울시 마포구 월드컵로8길 45-8 1층 | 발행일자 : 매일



