
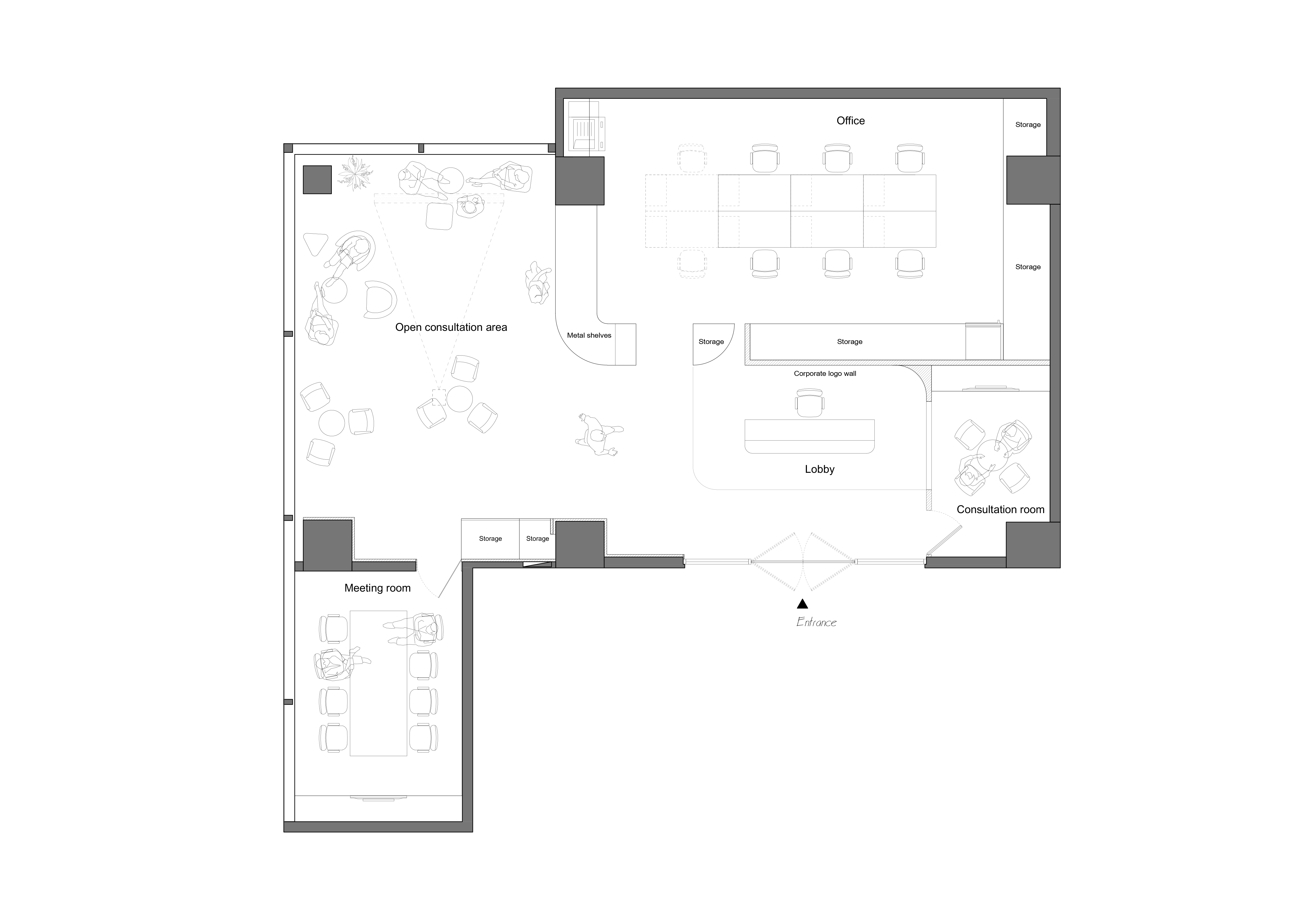
This project is an international education center in an old town, connecting teachers and students from around the world. The design is an innovative and open space which fosters diverse working methods and cultural integration. We hope this layout and the resulting modern workflow will have a local influence, encouraging free interaction between people of different cultural backgrounds.
Originally, the project’s layout was a traditional closed office, and such an oppressive atmosphere doesn’t fit into the future trends of this industry. We aim to foster an environment teeming with youth, vitality and energy, given the liberal image and characteristics of international education. Focusing on human interactions, we hope to promote cultural integration, providing a place for work, socializing, and sharing of resources.
Meanwhile, we also aim to create a light, stress-free atmosphere where employees can enjoy the balance of life and work. We redefine the boundaries of space with an open design, perforating conventionally solid barriers with various geometric openings, allowing light to build layers in the space. The light and shadows scattered throughout the room strike up an intriguing dialogue between the "light" and "scene". We considered the connection between people and space, using the "sensory flow" concept. we carefully calculating the free flow of air and light through perforated partitions and carefully placed gaps.
Human traffic is well managed without visual barriers.Energy is also saved, getting us closer to a goal of sustainability.

이 프로젝트는 구시가지에 있는 국제 교육 센터로, 전 세계 교사와 학생들을 연결한다. 디자인은 다양한 작업 방식과 문화적 통합을 촉진하는 혁신적이고 개방적인 공간이다. 이러한 배치와 그에 따른 현대적 작업흐름이 지역적 영향을 미쳐 서로 다른 문화적 배경을 가진 사람들 간의 자유로운 상호작용을 장려하기를 바랐다.
원래 이 프로젝트의 배치는 전통적인 폐쇄형 사무실이었으며, 그런 억압적인 분위기는 이 업계의 향후 동향에 맞지 않았다. 건축가는 국제 교육의 자유주의적 이미지와 특성을 감안하여 젊음, 생명력, 에너지가 넘치는 환경을 조성하고자 했다. 인적 교류를 중심으로 문화 통합을 촉진하고, 업무공간, 사교공간, 자원을 공유할 수 있는 공간이 제공되길 바랬다.
또한, 직원들이 일과 삶의 균형을 누릴 수 있는 가볍고 스트레스 없는 분위기를 조성하고자 했다. 개방형 디자인으로 공간의 경계를 재정의하고, 다양한 기하학적 개구부로 기존의 견고한 장벽을 뚫어 빛이 공간에 레이어를 만들 수 있도록 했다. 방 전체에 흩어져 있는 빛과 그림자는 "빛"과 "장면" 사이의 흥미로운 대화를 이끌어낸다. 건축가는 "감각의 흐름" 개념을 사용하여 사람과 공간의 연결을 고려했다. 건축가는 공기와 빛의 자유 흐름을 조심스럽게 계산하고 구멍을 조심스럽게 배치했다.
사람의 교통은 시각적 장벽 없이 잘 관리된다. 에너지 또한 절약되어 지속가능성의 목표에 더욱 가까이 다가갈 수 있다.



















Architects STUDIO/ WU INTERIOR
Location Kaohsiung, Taiwan
Site area 140m2
Designer Hsing-Yuan Wu(STUDIO/ WU INTERIOR)
Wall material Material type:Veneer
Interior lighting Product:ceiling lamp, Brand: Muuto
Metal cabinet Material type: Punching plate
Photographer Hey!Cheese
'Interior Project > Office' 카테고리의 다른 글
| H&M Taiwan office (0) | 2021.09.09 |
|---|---|
| Frank and Oak - Offices (0) | 2021.09.02 |
| Business Development Bank of Canada's headquarters (0) | 2021.08.24 |
| Montreal FinTech Station (0) | 2021.08.19 |
| OATBOX, headquarters (0) | 2021.08.06 |
마실와이드 | 등록번호 : 서울, 아03630 | 등록일자 : 2015년 03월 11일 | 마실와이드 | 발행ㆍ편집인 : 김명규 | 청소년보호책임자 : 최지희 | 발행소 : 서울시 마포구 월드컵로8길 45-8 1층 | 발행일자 : 매일



