
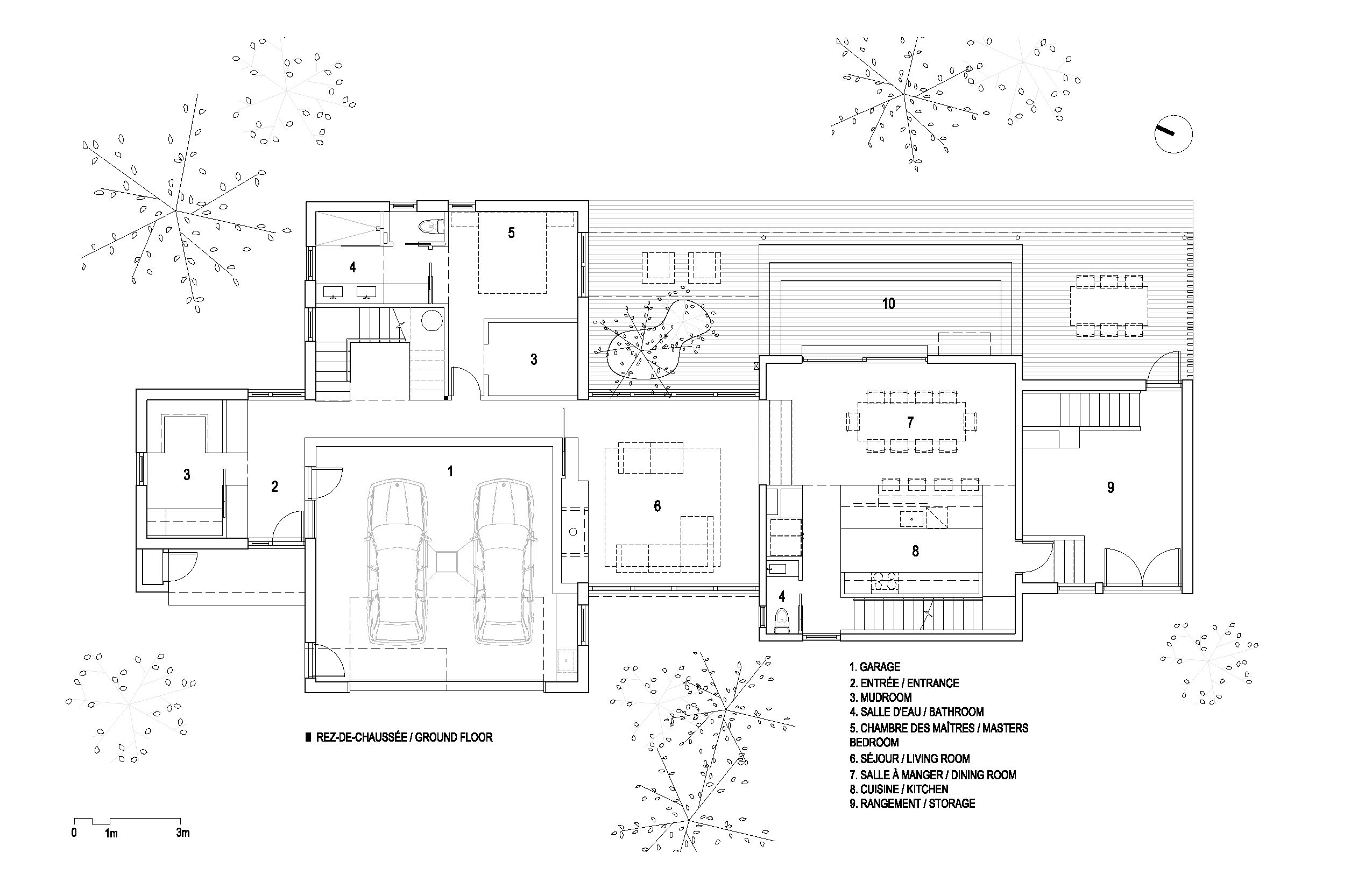
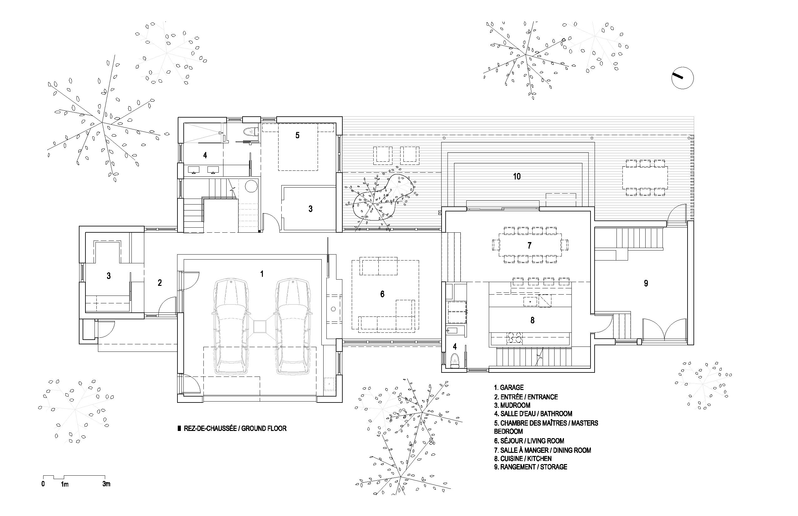
Located next to the slopes at Stoneham Resort, La Frangine is the result of the expansion and conversion of a former ski chalet into a main residence. The architectural part of the project consisted in keeping the existing cottage and to design a second separate building connected to the first one. Like a big sister, the new section looks after the smaller one. Both buildings nicely connect by means of a glass passageway which allows natural light into the heart of the residence. From its façade, the building echoes the dimensions of the original cottage but extends deeper into the deciduous forest. This creates an intimate deck located at the back of the house.

Little Sister
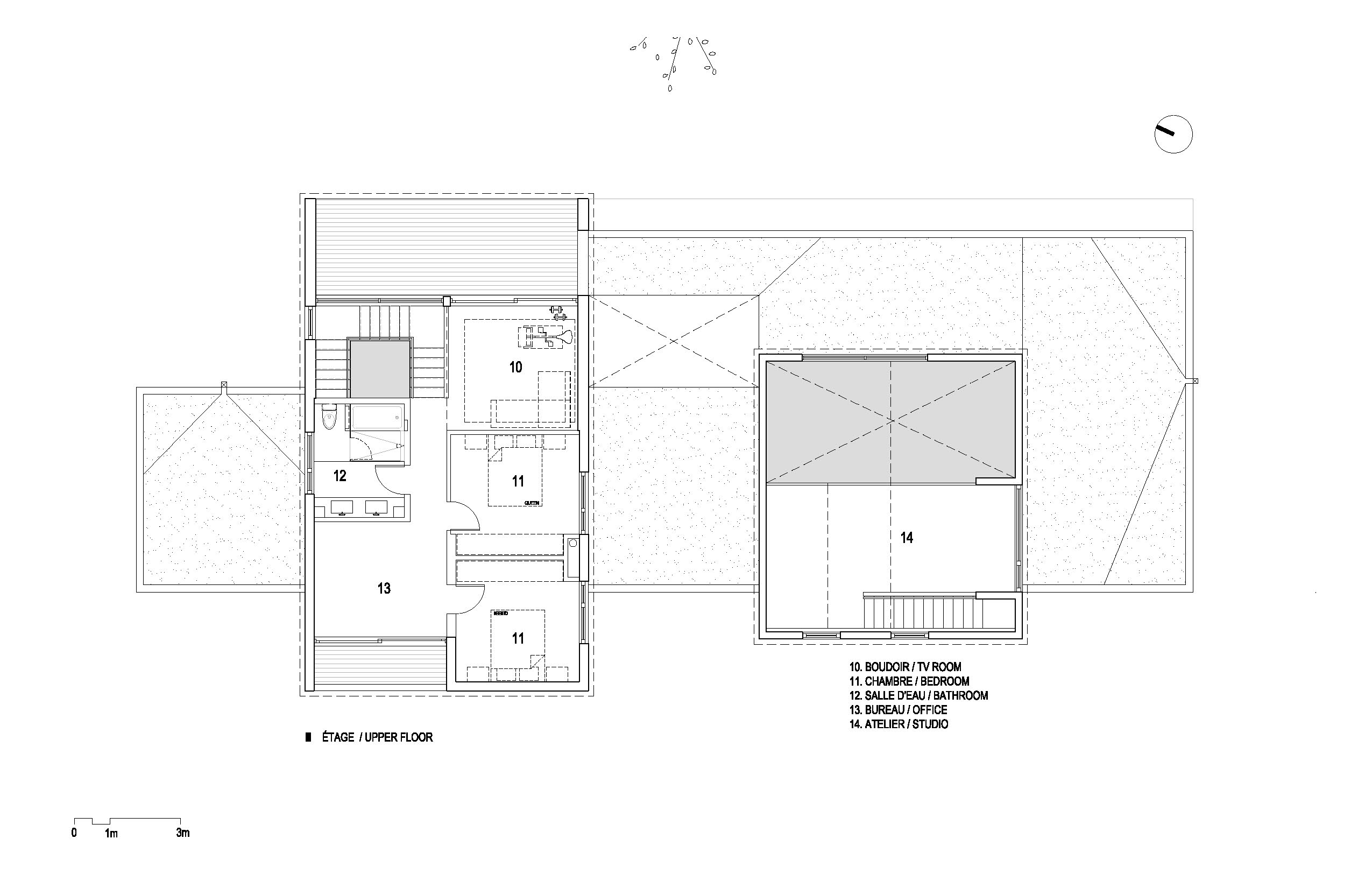
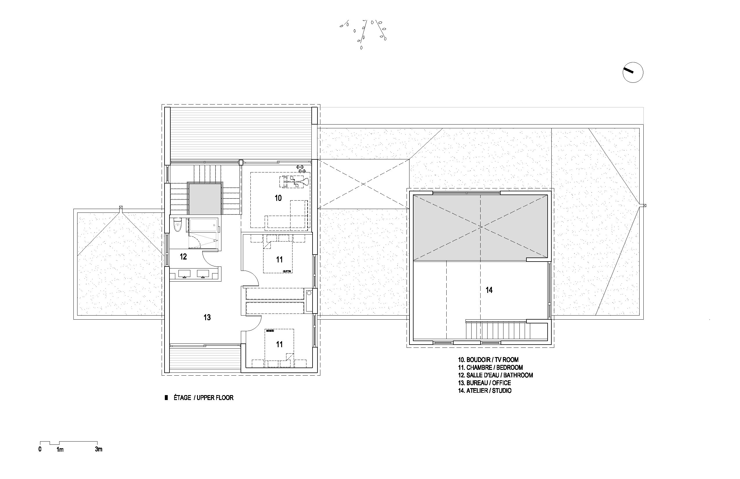
The converted existing cottage serves as the main house and includes the dining room and kitchen on the ground floor. An artist's studio is located on a mezzanine in the roofspace. The mezzanine floor has been made into an open space above which a large dormer window has been integrated for natural lighting. Above the kitchen, hovers the artist's studio filled with a gentle natural light. Bold new openings were added to the existing structure, which was enhanced by adding insulation to both the walls and roof.

Big Sister
The extension becomes the private house and reproduces the roof slopes of the existing building, but with two full storeys. The ground floor integrates the garage and houses the main bedroom. Upstairs are the girls' quarters with, on one side, an office space overlooking the mountain and, on the other side, a boudoir and covered patio at canopy height. The cathedral ceiling clad in eastern white cedar cuts through the extension and over the exterior spaces, enhancing a transparency effect.

A Living Passageway
The passageway links the two sister houses. It is drawn between the two buildings and serves as a living room and passage. Its linear design continues into the buildings at each end. At one end, it is more spacious and serves as a larger main porch. At the other end, it acts as a secondary porch, giving direct and convenient access to the kitchen, the areas in the basement and the patio.

Between Tradition and Modernity
The volume of the original cottage, saved and transformed, was the inspiration for the expansion. The addition of new openings, the choice of material and the attention to architectural details bring a contemporary touch to the project without distorting the past. The tradition/modernity balance can also be felt through the addition of the one-storey, flat-roofed, inhabited passageway. At the back, the roof stretches and partially covers a large patio. A tree planted at the heart of the project symbolizes a second life for this former ski cottage, and a fresh start for this new main residence.

스톤햄 리조트(Stoneham Resort)의 슬로프 옆에 위치한 라 호르진(La Frangine)은 이전 스키 숙소를 메인 레지던스로 확장 및 개조한 건물이다. 프로젝트의 시작은 기존 건물의 구성을 유지하고 첫 번째 숙소와 연결된 두 번째 건물을 설계하는 것으로 구성된다. 마치 언니처럼, 새로운 건물은 작은 건물을 돌보는 형상이다. 두 건물은 자연채광이 풍부한 유리 통로를 통해 연결된다. 건물의 외관은 본래 숙소 건물의 치수를 그대로 반영하지만 숲속으로 더 깊숙히 확장된다.

여동생
개조된 기존 건물은 본관으로 사용되며, 1층에는 주방과 식당이 있다. 예술가의 스튜디오는 옥상 공간의 중층에 있다. 중층은 자연 채광을 위해 큰 지붕창이 합쳐진 열린 공간으로 계획되었다. 부엌 위에는 부드러운 채광이 들어오는 작가의 스튜디오가 있다. 기존 구조에 새로운 개구부가 추가되었고, 벽과 지붕에 단열재를 추가해서 강화했다.

언니
증축은 민가로써 기존 건물의 지붕 경사면을 재현하되, 전체를 2층 규모로 계획했다. 1층에는 차고가 있으며 안방이 있다. 위층에는 여자 숙소가, 한쪽에는 산이 내려다보이는 사무실 공간이 있다. 다른 쪽에는 캐노피 높이의 내실과 지붕이 덮인 중정이 있다. 흰 삼나무로 마감한 대성당의 천장은 확장을 통해 외부공간을 절단하고 투명성을 높인다.

살아있는 통로
통로는 두 자매 집을 연결한다. 두 건물 사이에서 거실과 통로역할을 하며 선형적인 디자인은 양쪽 끝에 있는 건물까지 이어진다. 한쪽 끝에는 넓고 큰 메인 베란다가 있고, 다른 쪽 끝에는 보조 베란다가 있다. 이는 주방, 지하실 및 중정에 직접적으로 연결되어 접근이 용이하다.

전통과 현대 사이
보존되고 변형된 기존 숙소 건물의 부피는 확장 가능성에 대한 영감을 불러 일으켰다. 새로운 개구부를 추가하고, 재료 선택 및 건축의 디테일에 대한 관심은 과거를 왜곡하지 않으면서 전체 건물에 현대적인 감각을 더한다. 단층의 평평한 지붕과 사람이 사는 통로의 추가를 통해 전통/현대의 균형감을 느낄 수 있도록 계획했다. 건물의 뒤쪽으로 지붕이 뻗어있고, 부분적으로 큰 안뜰을 가린다. 프로젝트의 중심에 심어진 나무는 이전 스키 숙소 건물의 두 번째 삶과 본관으로써의 새로운 시작을 상징한다.




Architect Bourgeois / Lechasseur architects
Location Quebec, Canada
Completion 2019
Construction Cas par Cas
Photographer Maxime Brouillet
'Architecture Project > Single Family' 카테고리의 다른 글
| River House (0) | 2021.08.24 |
|---|---|
| Chalet Lakeside (0) | 2021.08.23 |
| CIRCLE WOOD HOUSE (0) | 2021.08.05 |
| MADELEINE HOUSE (0) | 2021.08.04 |
| CABIN SENJA (0) | 2021.07.30 |
마실와이드 | 등록번호 : 서울, 아03630 | 등록일자 : 2015년 03월 11일 | 마실와이드 | 발행ㆍ편집인 : 김명규 | 청소년보호책임자 : 최지희 | 발행소 : 서울시 마포구 월드컵로8길 45-8 1층 | 발행일자 : 매일



