
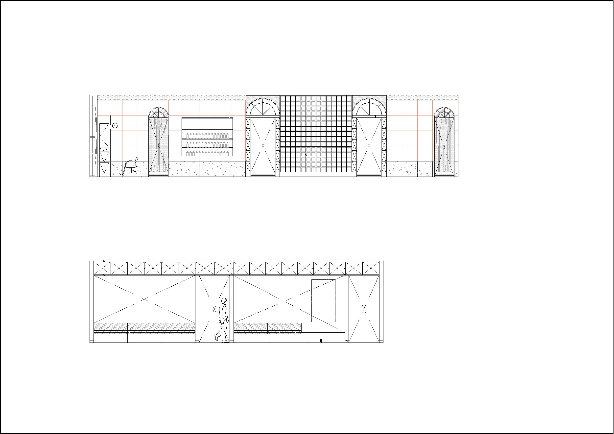
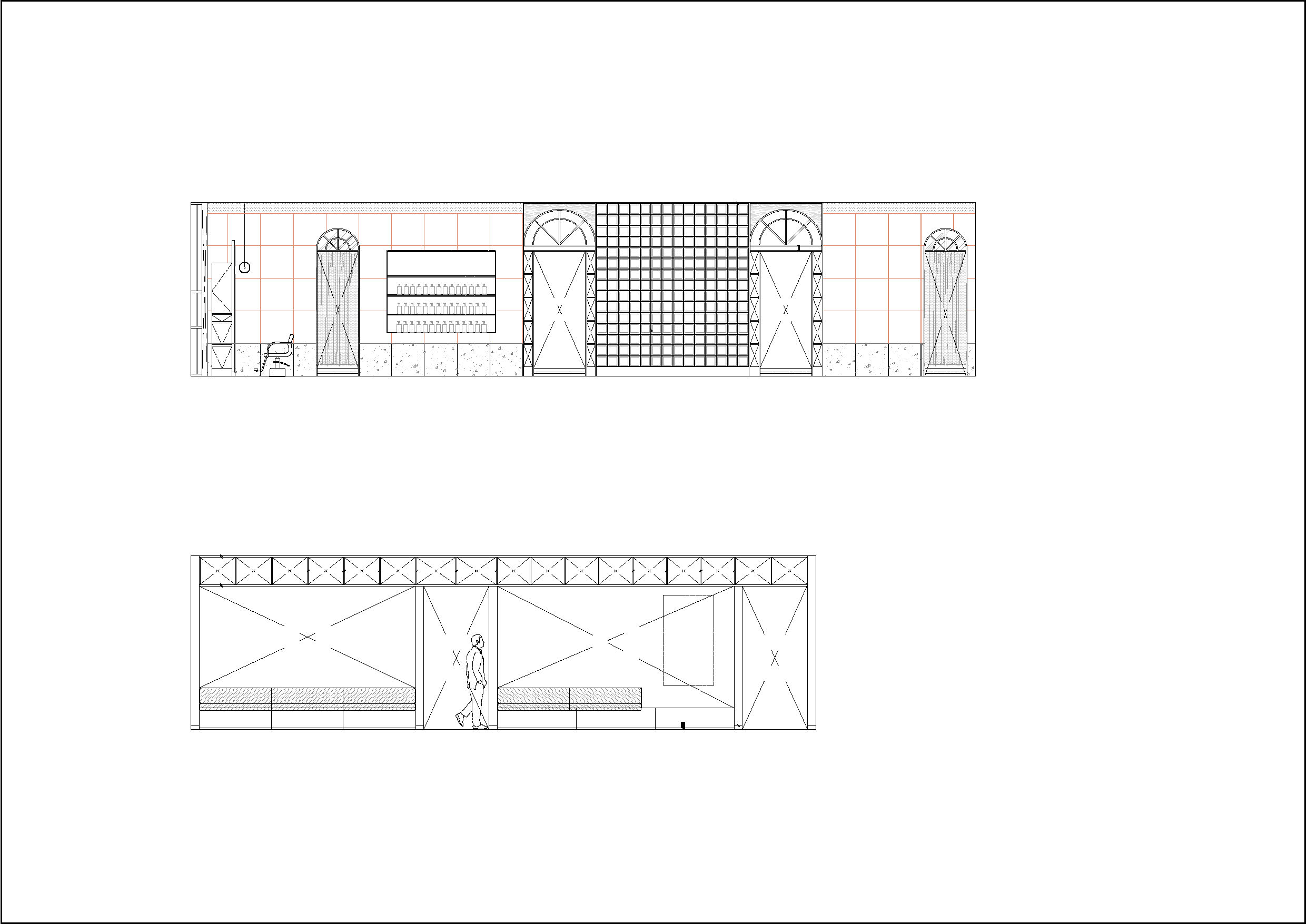
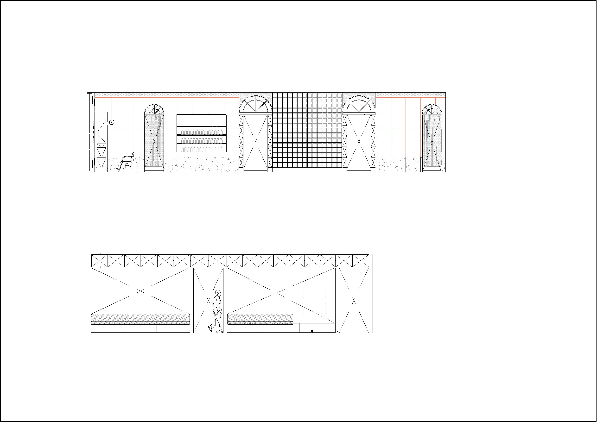
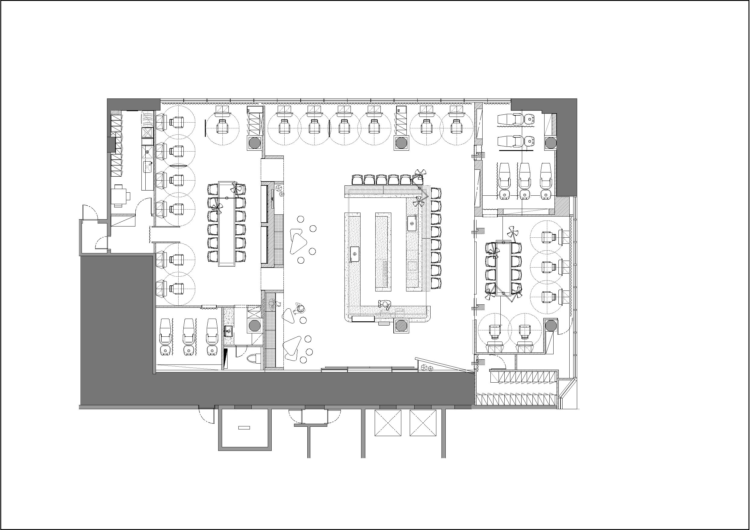
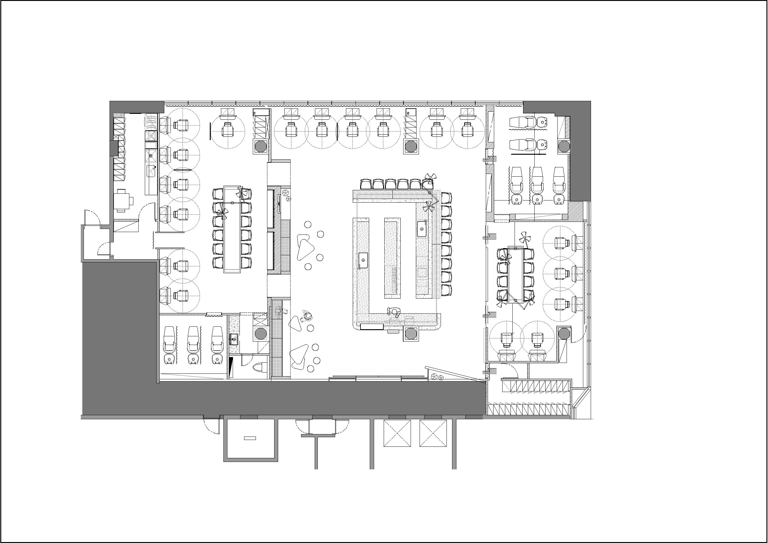
JUNO HAIR Gwangmyeong Cheolsan Branch in Gwangmyeong contains the stories of JUNO, the goddess of goddesses; LUNA, the goddess of the Moon; and VENUS, the goddess of beauty, by forming three ZONES as private spaces with the names and spirits of the goddesses. The Gwangmyeong Cheolsan branch was differentiated by introducing its own unique pocket lounge concept, and it was designed as a space in which customers can feel comfortable.

As for the main finishing materials of the space, terracotta bricks were used as the primary finishing material. The space was planned as a visually diverse space, where the trendy finishing materials of the warm mass, created by the terracotta material, and the glass block mass space, as well as the island BAR metal mass at the center, all harmonize with each other. By accentuating the space with a glossy material that irradiates the beauty even more, a special day can be experienced in the romantic and private salon of the elegant goddesses.

준오헤어 광명철산은 여신의 이름과 정신이 담긴 프라이빗 공간으로 3개의 ZONE을 형성하여 여신중의 여신 JUNO, 달의 여신 LUNA, 미의 여신 VENUS로 스토리를 공간에 담았다. 광명철산만의 포켓 라운지 컨셉을 도입하여 차별화하였고, 고객이 호텔 라운지에서 느낄 수 있는 편안한 공간으로 디자인 하였다.

공간의 주요 마감재는 테라코타 브릭을 베이스로 하여 소재가 주는 따뜻한 매스와 유리블럭의 매스 공간의 중심을 잡고 있는 아일랜드의 BAR의 금속매스로 트렌디한 마감재가 어우러져 시각적으로 다채로운 공간으로 계획하였다. 아름다움을 더욱 빛나게 하는 그로시한 소재를 공간안에 포인트를 주어 품격 있는 여신들의 로맨틱, 프라이빗 살롱에서 특별한 하루를 경험할 수 있다.













Studio HED URBAN studio, Co., Ltd
Location Gwangmyeong-si, Gyeonggi-do, Republic of Korea
Program Hair Salon
Area 360m2
Design period 2020. 8 - 2020. 9
Construction period 2020. 10 - 2020. 12
Completion 2020. 12
Project Director Bumgyu Kim
Designer Hyunjeong Kim, Sooyeon Baek
Construction HED URBAN studio
Client JUNO HAIR
Photographer STUDIO SIM
'Interior Project > Other' 카테고리의 다른 글
| Black Star Car Wash (0) | 2021.11.08 |
|---|---|
| The Garage Project (0) | 2021.09.07 |
| REFUSE! INDOOR CYCLING (0) | 2020.06.17 |
| SALON DE COOK (0) | 2020.03.03 |
| CYBER VALUE (0) | 2020.02.04 |
마실와이드 | 등록번호 : 서울, 아03630 | 등록일자 : 2015년 03월 11일 | 마실와이드 | 발행ㆍ편집인 : 김명규 | 청소년보호책임자 : 최지희 | 발행소 : 서울시 마포구 월드컵로8길 45-8 1층 | 발행일자 : 매일



