
The Garage Project
Sinsa public community center located at the end of Garosu-gil, Sinsa-dong, between a trendy area and a residential area consisting of an apartment complex. Not only is it always crowded with people and lack parking lot, but it is also a place with different density by time zone. ‘The Garage Project’ purpose to share parking space that account for more than 80% of the first floor of Sinsa public community center with local residents and people visiting Garosu-gil. In the evening or on weekends when the community center is closed, empty parking lots are used in various ways, including marketplaces for residents, play areas for students at schools across the street, and flea market spaces on Garosu-gil. Although the area was always short of space due to high prices of land and density, the public community center was empty and the parking lot was closed after working time of the center. It made this place available to the residents.
Public Deck
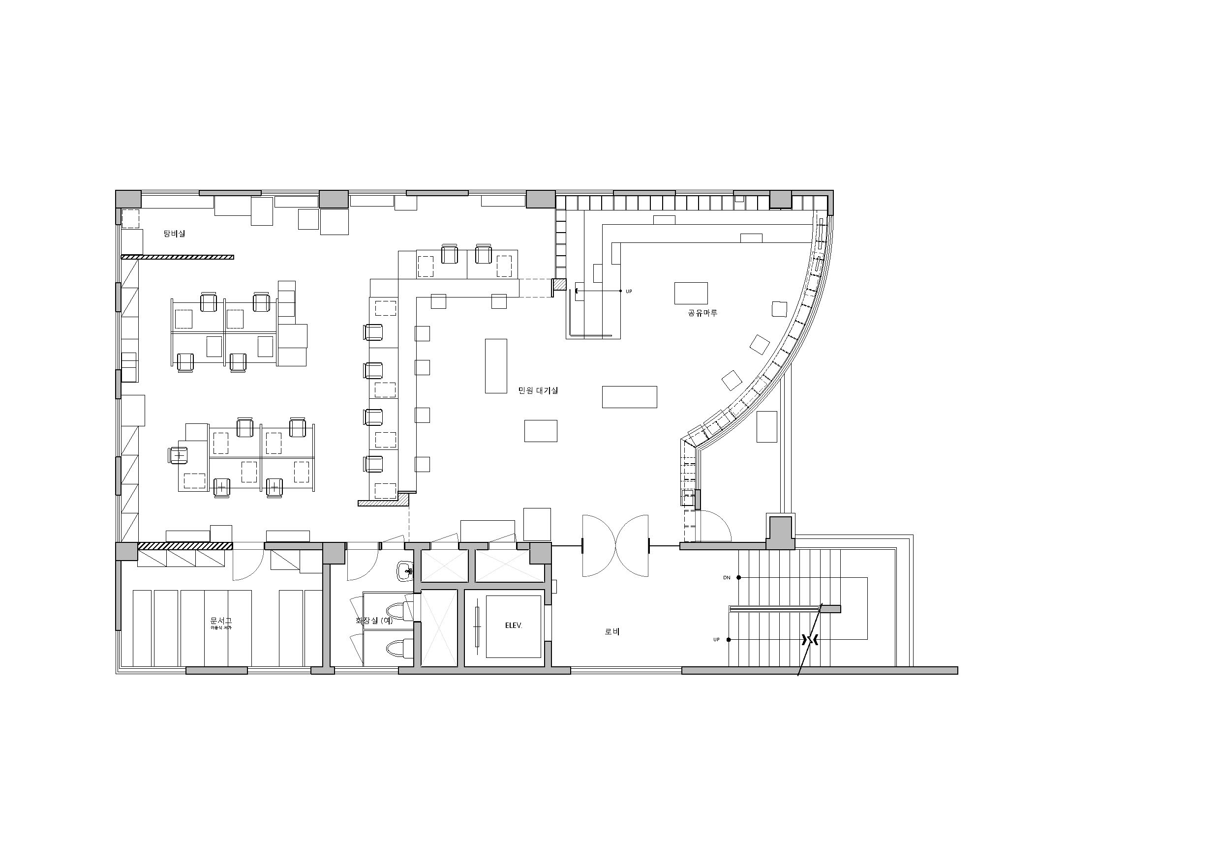
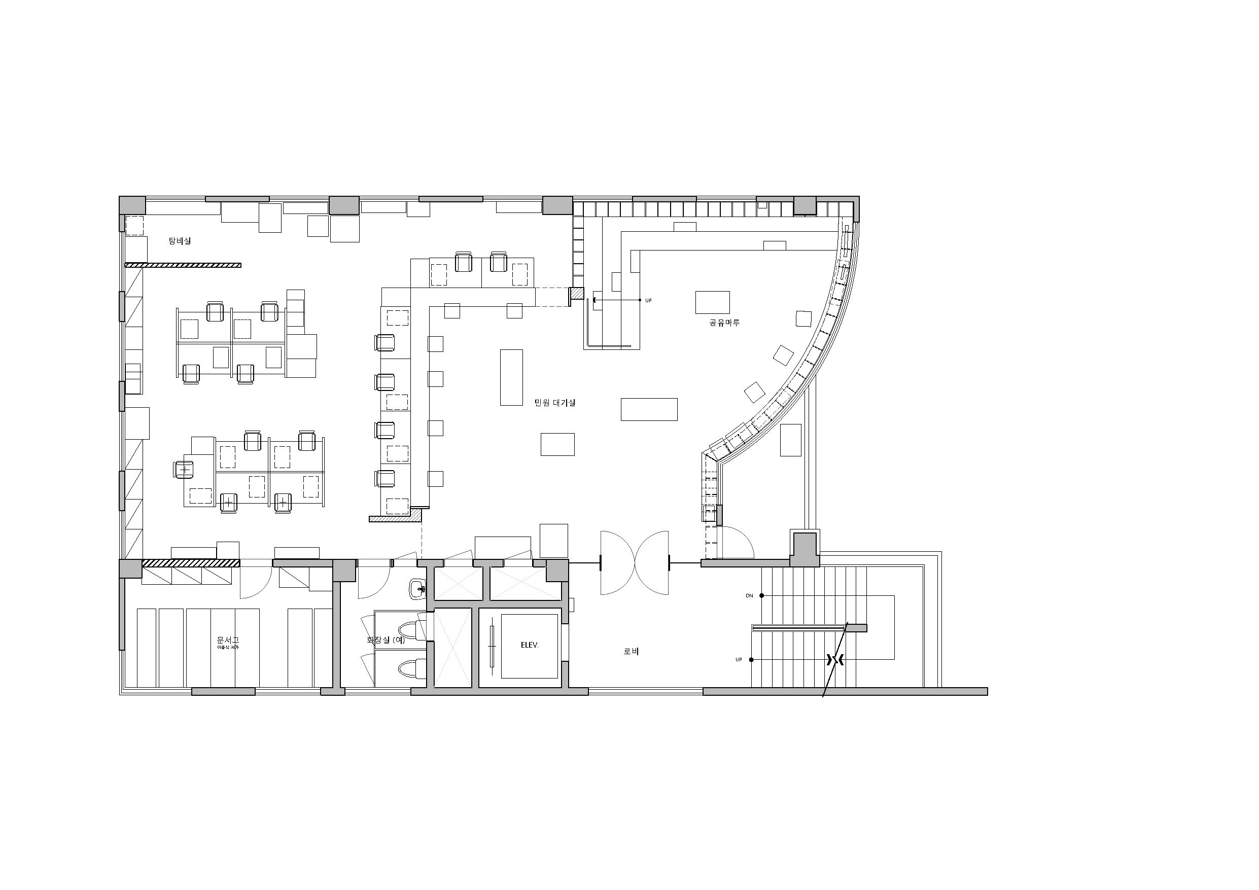
The public service office located on the second floor has many public spaces such as a hallway and elevator hall, which have been integrated with the public service office to expand the space. Public deck was created on this integrated space. Public Deck served as the resting place where residents can talk together while waiting for public service at the bookshelves, window desk and stair bench. The administrative office space and the public service office, which had been separated into the second and third floors, were placed in one space to enhance efficiency of the work.

The Garage Project
신사동 주민센터는 신사동 가로수길 끝, 트렌디한 지역과 아파트 단지로 이루어진 주거 지역 사이에 있다. 늘 사람들로 붐비고 주차 공간도 부족할 뿐 아니라 시간대별 지역 밀도가 상이한곳이다. 이에 주민센터 1층의 80% 이상을 차지하는 주차장 공간을 지역 주민, 가로수길을 찾는 이들과 공유할 수 있는 ‘The Garage Project’를 계획했다. 주민센터가 문을 닫는 저녁이나 주말에 텅 빈 주차장을 주민들의 장터, 길 건너 학교의 학생들을 위한 놀이 공간, 가로수길의 플리마켓 공간 등 다양하게 사용하도록 했다. 지가와 밀도가 높아 늘 공간이 부족한 지역이었지만 주민센터의 경우 업무 이외의 시간에는 비어 있고 주차장 또한 닫혀 있었다. 이곳을 주민들이 활용할 수 있도록 했다.
공유마루
2층에 위치한 민원실은 복도와 엘리베이터 홀 등 공용 공간이 많아 이를 민원실과 통합해 공간을 확장했다. 확장 공간에 주민들을 위한 공유마루를 계획했다. 공유마루는 주민들의 서가와 창가의 책상 그리고 계단식 쉼터에서 민원 업무를 위해 대기하며 주민들 간 대화가 가능한 휴식 공간으로 동네의 마루 역할을 부여했다. 2층과 3층으로 분리했던 행정 업무 공간과 민원대를 한 공간에 배치해 업무의 효율성을 높였다.


















Studio G/O Architecture
Location 128 Apgujeong-ro, Gangnam-gu, Seoul
Program Public community centre
Project area 728m2
Building scope 1-3F
Design period 2019. 3 - 2019. 7
Construction period 2019. 8 - 2019. 10
Completion 2019. 10
Project director Juyoung Lee
Client Gangnam-gu
Photographer tqtq Studio
'Interior Project > Other' 카테고리의 다른 글
| Hôpital Vétérinaire du Parc (0) | 2022.02.14 |
|---|---|
| Black Star Car Wash (0) | 2021.11.08 |
| JUNO HAIR Gwangmyeong Cheolsan (0) | 2021.08.16 |
| REFUSE! INDOOR CYCLING (0) | 2020.06.17 |
| SALON DE COOK (0) | 2020.03.03 |
마실와이드 | 등록번호 : 서울, 아03630 | 등록일자 : 2015년 03월 11일 | 마실와이드 | 발행ㆍ편집인 : 김명규 | 청소년보호책임자 : 최지희 | 발행소 : 서울시 마포구 월드컵로8길 45-8 1층 | 발행일자 : 매일



