
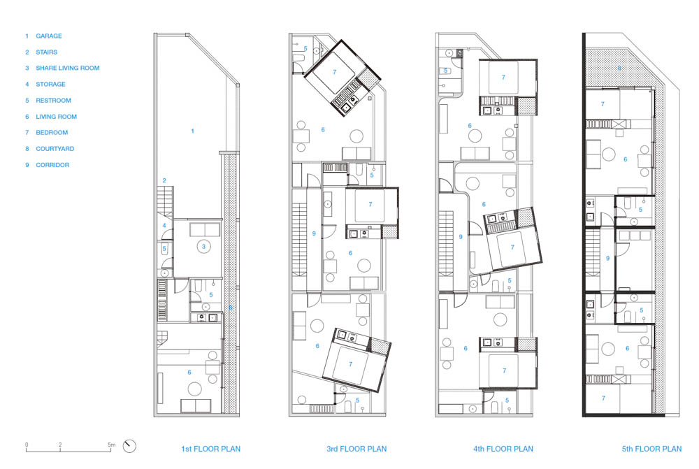
The purpose of this project is to convert an existing building with two floors above the ground and an attic to a rental apartment. Rented apartments had to use space without wasting it for economy. In addition, efforts were made to create a green space while being easy to construct. So we used lightweight structures to change the internal space; redistribution of uses: entrances, stairs; and light structures help to save costs in terms of both materials and construction labor. The main materials are iron frame, cemboard plate, iron wall, glass, all of which create flexibility and ease of construction for renovation works. The colorful bungalows rotate in different directions to create a strong movement, which contributes to covering the old concrete columns and structures of the house. The 2nd and 3rd floors have 6 rooms, each with 1 bungalow block, it is the neat integration of the functions into one integrated block: bedroom, wardrobe, kitchen.

Two fronts are the advantage of the apartment, so the rooms open to the balcony with 2 fronts. If the lower floors show a youthful dynamism, the 2 garret apartments tend to be rustic and minimalistic. The garret has a traditional tiled roof showing off the structure for the truss, opening to the view of hanging gardens running along the house, bringing the sense of space of a mini penthouse. Standing on 2 garret rooms, you can see the mountain view of Vung Tau city. The apartment is completed by wooden furniture, bringing a warm feeling. The painted wall is gray, the base of the facade is accentuated with the steel plate material and is painted in rust to create a strong. These tones contribute to the highlight of the colorful bungalow moving above.

다이 안 공동주택은 기존 2층 규모의 누마루가 있는 건물이 임대아파트로 변환된 프로젝트다. 임대아파트는 경제성을 위하여 공간을 낭비하지 않고 사용해야 했다. 게다가, 쉬운 시공과 녹지공간 창출이라는 문제도 고려해야 했다. 때문에 내부 공간을 변화시키기 위해 경량 구조를 사용했다. 기존 출입구와 계단의 용도를 재분배하고 경량화한 구조는 재료와 건설 노동의 측면에서 비용을 감축하는 데 도움을 주었다. 주요 재료들은 재건축 시 유연성과 용이성을 부여해 주는 철재 프레임, 시멘트 보드, 철재 벽, 유리였다. 알록달록한 방갈로들은 집의 오래된 콘크리트 기둥들과 구조들을 가리면서 강렬한 움직임을 창조하기 위해 서로 다른 방향으로 회전한다. 2층 및 3층은 6개의 실들이 있으며, 각각 1개의 방갈로 블록을 갖고 있다.

두 종류의 입면은 아파트의 장점이다. 이로써 실들은 각 입면을 통해 형성된 발코니로 개방될 수 있다. 만약 낮은 층들이 청춘의 역동성을 보여준다면, 2개의 다락은 소박하고 단순한 모습이다. 다락은 트러스 구조를 보여주는 전통적인 기와지붕을 갖고 있으며, 집을 따라 조성된 정원을 볼 수 있어 작은 펜트하우스 공간과 같은 느낌을 준다. 2개의 다락에 서있으면 붕타우 시의 산 전망을 볼 수 있다. 아파트는 따듯한 느낌을 주는 목재 가구로 마감되었다. 도색된 벽은 회색이며, 파사드의 기반은 철판 자재로 강조됐으며, 이는 강렬함을 보여주기 위해 녹칠이 되었다. 이러한 색은 율동감 있는 알록달록한 방갈로를 강조한다.









Architect H.2
Location Vũng Tàu, Ba Ria – Vung Tau, Vietnam
Gross floor area 112m2
Completion 2020
Project architect Trần Văn Huynh, Nguyễn Thị Xuân Hải, Đỗ Trọng Nhân Kiệt, Shreevardhan Joshi, Châu Minh Tiến, Nguyễn Văn Hóa, Trần Văn Hà
Iron Mr. An
Lighting Kelvin&Lux
Client Mr. Dinh
Photographer Quang Dam
해당 프로젝트는 건축문화 2021년 6월호(Vol. 481)에 게재 되었습니다.
The project was published in the June, 2021 issue of the magazine(Vol. 481).
June 2021 : vol. 481
Contents : RECORDS COMPETITION OPEN : SEOUL ARCHITECTURE AWARDS & ARCHITECTURAL STORYTELLING CONTEST WITH ME : NEWS / COMPETITION / BOOKS : SKETCH THE REASON WHY I LIKE A PLEIN AIR / ZOSIA JEMIOŁO
anc.masilwide.com
'Architecture Project > Multifamily' 카테고리의 다른 글
| MAISONS OUTREMONT (0) | 2021.09.08 |
|---|---|
| VILLA REDEN (0) | 2021.08.19 |
| GUDRUNSTRASSE APARTMENTS (0) | 2021.08.17 |
| HOUSING BUILDING SUCRE 812 (0) | 2021.08.13 |
| M3646 (0) | 2021.08.12 |
마실와이드 | 등록번호 : 서울, 아03630 | 등록일자 : 2015년 03월 11일 | 마실와이드 | 발행ㆍ편집인 : 김명규 | 청소년보호책임자 : 최지희 | 발행소 : 서울시 마포구 월드컵로8길 45-8 1층 | 발행일자 : 매일



