
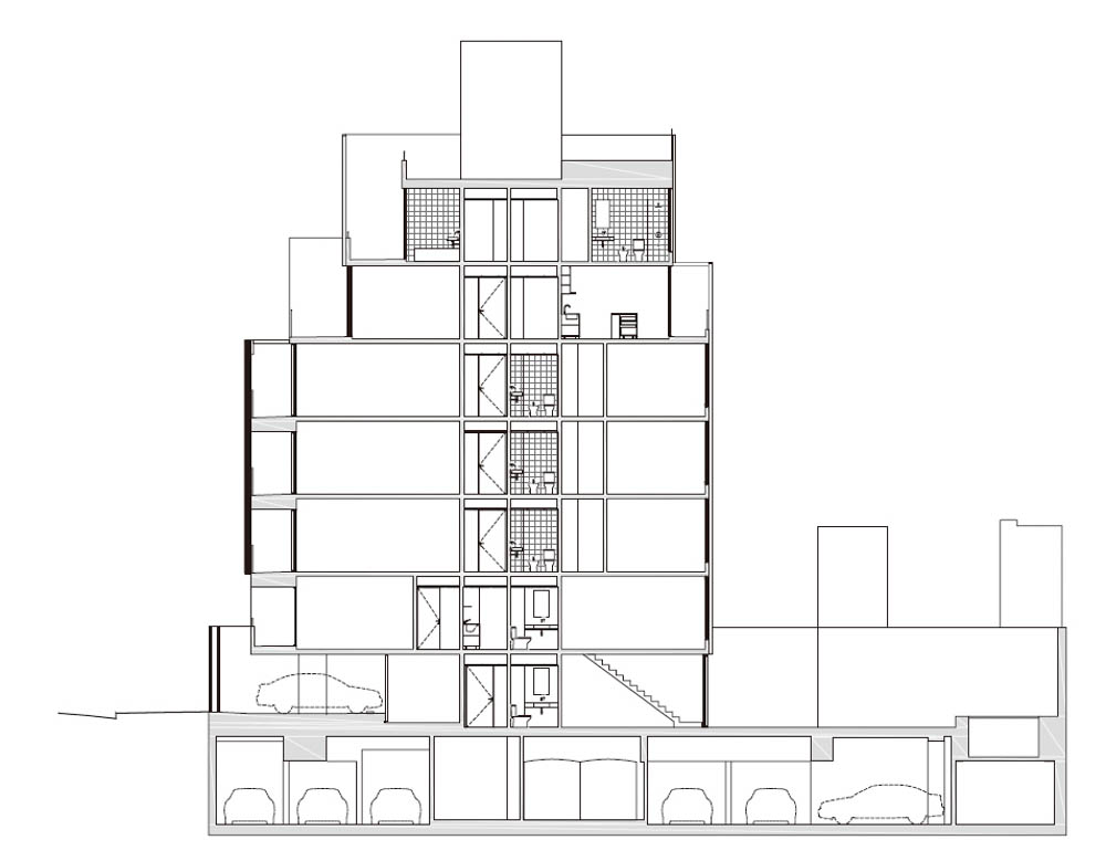
Sucre 812 is located in Belgrano residential neighborhood, in Buenos Aires, in a two-front lot. From its origin, the Project was conceived from three central themes cores. The relationship between the gathering spaces and resting areas, the link between the experiences in covered spaces and the traditionally open areas, and the possible gradual dialogues between transparency and opacity, that is created in the buildings front, with a profound interior.

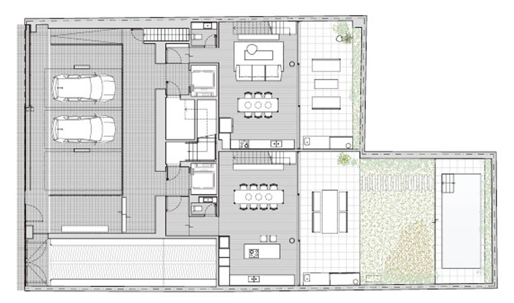
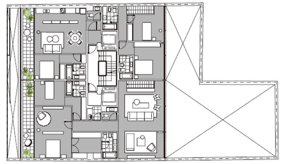
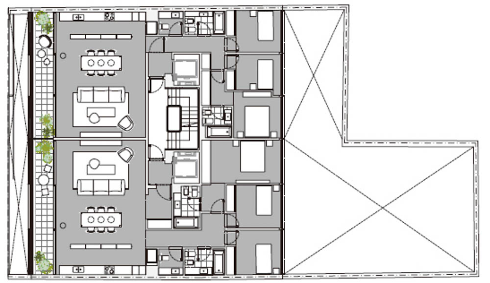
The building’s plan consists in two apartments per floor. In them, gathering areas (living room and integrated kitchen) were thought to be facing the front, whilst the backside of the building was destined to the bedrooms. The plan design enhances shared experiences encouraging new forms of creating intimacy, not only by its distribution but also the size attribution for each space. Each living room takes the hole unit width and links with a carpentry that enables the balcony fusion, creating a new transitional space between the open and the covered, between the outside and the inside. The building’s facade accompanies this transitional process: the sliding panels, made of stretched fabric, while collaborating with thermic control, lightning, acoustic absorption, and energy savings, generate throughout the day, different dialogues between those inhabiting the building and the environment that contains it.


카사 수크레 건물은 부에노스아이레스의 벨그라노 주거단지 내 두 개의 정면 부지에 자리 잡고 있다. 수크레 812은 세 개의 주요 테마로부터 구상됐다. 첫째는 집합 공간들과 휴식 영역들 사이의 관계이고, 둘째는 닫힌 공간들에서의 경험과 전통적으로 열린 영역들에서의 경험 간의 연결, 마지막으로 투명성과 불투명성 사이의 가능한 점진적인 대화이다. 이는 심도 있는 고려와 함께 건축물의 전면에 구축되었다.

건축물의 평면은 층마다 두 개의 유닛으로 구성되어 있다. 그 속에서 건축물의 안쪽에 침실을 배치하고, 집합 영역들(거실과 통합된 부엌)은 앞을 향하도록 고려되었다. 이러한 배분과 더불어 각 공간의 규모에 따라 친밀함을 만들어내는 새로운 형태의 경험들을 이끌어낸다. 각 거실은 전체 건물의 폭을 차지하며, 결합된 발코니 공간을 통해 내외부 사이에서 새로운 전이공간을 창출한다. 건축물의 파사드는 온도 조절, 조명, 흡음, 에너지 절약을 가능하게 하는 늘어나는 섬유로 만들어진 패널을 미는 것, 건축물에 상주하는 것들과 이를 포함하는 환경 간의 다양한 대화를 반영한다.
















Architect ANA SMUD AND ALBERTO SMUD STUDIO
Location Belgrano, Buenos Aires, Argentina
Building area 383m2
Gross floor area 2,165m2
Construction period 2017 - 2020
Completion 2020
Project team Ana Sol Smud, Alberto Smud, Pilar Esnagola, Sasha Molczadzki, Camila Jalife, Florencia Lopez Iriquin
Lighting advisor Pablo Pizarro
Construction Alberto Smud
Interior design Agustina Gentili
Photographer Javier Agustin Rojas
해당 프로젝트는 건축문화 2021년 6월호(Vol. 481)에 게재 되었습니다.
The project was published in the June, 2021 issue of the magazine(Vol. 481).
June 2021 : vol. 481
Contents : RECORDS COMPETITION OPEN : SEOUL ARCHITECTURE AWARDS & ARCHITECTURAL STORYTELLING CONTEST WITH ME : NEWS / COMPETITION / BOOKS : SKETCH THE REASON WHY I LIKE A PLEIN AIR / ZOSIA JEMIOŁO
anc.masilwide.com
'Architecture Project > Multifamily' 카테고리의 다른 글
| DAI AN APARTMENT (0) | 2021.08.18 |
|---|---|
| GUDRUNSTRASSE APARTMENTS (0) | 2021.08.17 |
| M3646 (0) | 2021.08.12 |
| FOUR HOUSES IN ONE (0) | 2021.08.11 |
| HOUSE FOR THREE FAMILIES BELOW THE MOON (0) | 2021.07.01 |
마실와이드 | 등록번호 : 서울, 아03630 | 등록일자 : 2015년 03월 11일 | 마실와이드 | 발행ㆍ편집인 : 김명규 | 청소년보호책임자 : 최지희 | 발행소 : 서울시 마포구 월드컵로8길 45-8 1층 | 발행일자 : 매일



