
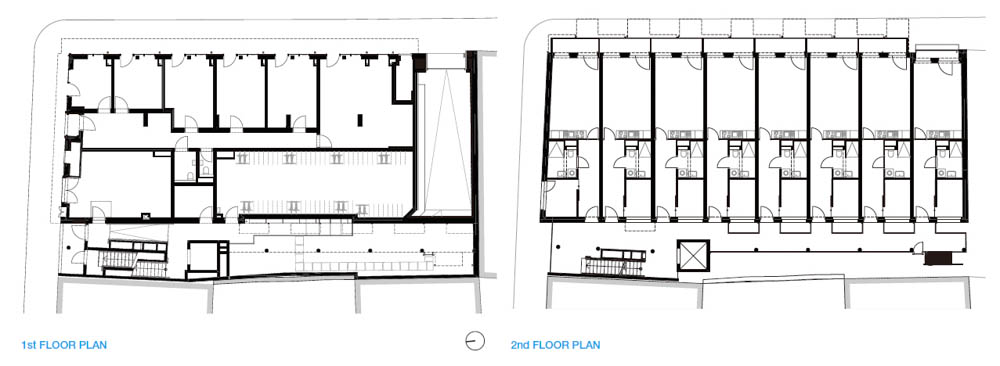
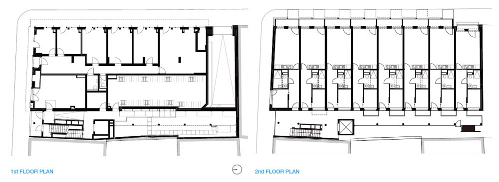
Fifty business apartments and six offices were constructed in a new building on an empty lot in Vienna. The first phase focused on supporting work for the necessary rededication. In further phases optimal light conditions were achieved by orienting all of the apartments facing South-East. Noise pollution was reduced by the same measure, since the orientation towards a more quiet side street acted as natural sound abatement.

Following the client’s brief of modern temporary living spaces, these affordable micro-apartments offer maximized spaciousness and comfort. Each apartment is accessible via an arcade and external staircase, and features a balcony. The compact floor plan consist of a generous main corridor, a bedroom area, sanitary facilities, and a living space with a pitched roof oriel and a balcony. Minimising the adjacent rooms results in a bright and generous living space that meets the dynamic needs of the future residents.

The building’s facade is comprised of stacked traditional Viennese Schrebergardens(small, intimate garden communities), expressing a strong character in terms of urban development in a neighborhood characterized by predominantly commercial use.

오스트리아 빈 도심에 50세대의 비즈니스 공동주택과 6개 사무 공간이 있는 건축물이 들어섰다. 각 세대는 공동주택의 기본적인 공간에 따라 배분되어 배치, 최적의 채광 조건을 가지도록 모든 세대들은 남동쪽을 향하여 배치됐다. 보다 조용한 거리 쪽으로 향하고 있기 때문에 구드혼스트라세 공동주택은 자연적인 조건만으로도 소음을 완화한다. 이러한 경제적, 공간적으로 합리적인 소규모 공동주택은 거주자들에게 최대한의 공간감과 편안함을 제공해 주기 위한 구성을 가진다. 각 세대는 아케이드와 외부 계단을 통해 접근 가능하며, 돌출된 발코니를 가지고 있다. 각 단위세대는 넓은 메인 복도, 침실 영역, 위생 시설, 그리고 돌출된 박공 지붕과 발코니가 있는 생활공간으로 구성된다. 근접한 실들을 최소화하는 것은 미래 거주자들의 역동적인 수요를 충족하는 밝고 넓은 생활 공간으로 나타난다. 구드혼스트라세 공동주택의 파사드는 전통적인 빈의 슈레베르가르텐(작은 정원을 가진 주택)이 적층된 것처럼 보인다. 이는 주로 상업용도가 특징인 인근 지역의 도시개발적 관점에서 강한 존재감과 건축적 특징을 드러낸다.









Architect BFA X KLK
Location Vienna, Austria
Gross floor area 3,900m2
Building scope B1, 8F
Completion 2021
Principal architect BFA Büro für Architektur, Architekt DI Heinz Lutter & BÜRO KLK
Project architect Heinz Lutter
Design team Heinz Lutter, Christian Knapp, Jonathan Lutter, Fabian Lutter, Jürgen DePaul, Xaver Kolleger
Photographer David Schreyer
해당 프로젝트는 건축문화 2021년 6월호(Vol. 481)에 게재 되었습니다.
The project was published in the June, 2021 issue of the magazine(Vol. 481).
June 2021 : vol. 481
Contents : RECORDS COMPETITION OPEN : SEOUL ARCHITECTURE AWARDS & ARCHITECTURAL STORYTELLING CONTEST WITH ME : NEWS / COMPETITION / BOOKS : SKETCH THE REASON WHY I LIKE A PLEIN AIR / ZOSIA JEMIOŁO
anc.masilwide.com
'Architecture Project > Multifamily' 카테고리의 다른 글
| VILLA REDEN (0) | 2021.08.19 |
|---|---|
| DAI AN APARTMENT (0) | 2021.08.18 |
| HOUSING BUILDING SUCRE 812 (0) | 2021.08.13 |
| M3646 (0) | 2021.08.12 |
| FOUR HOUSES IN ONE (0) | 2021.08.11 |
마실와이드 | 등록번호 : 서울, 아03630 | 등록일자 : 2015년 03월 11일 | 마실와이드 | 발행ㆍ편집인 : 김명규 | 청소년보호책임자 : 최지희 | 발행소 : 서울시 마포구 월드컵로8길 45-8 1층 | 발행일자 : 매일



