
The cabin is located in Senja at 69° north in Norway surrounded by majestic mountains, magical fjords with thriving fishing villages, holding on to narrow bits of land between mountains and ocean. The National Tourist Route leads you on a 10 mil long journey along with one of the finest landscapes, with spectacular points of view and several exciting detours.

The cabin designed by Bjørnådal Arkitektstudio is located near a small fishing village called Hamn. The client wanted a family cottage with panoramic views of Senja's stunning mountains and nature. In such a beautiful and delicate landscape, it is important to build with nature and create a project that feels like a part of the landscape.

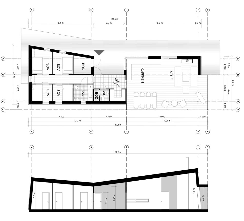
By studying old Sami building traditions, the architects found the ancient tradition of “Heller” where Sami would find shelter and build a cottage under large rocks. By shaping the building envelope like a stone with natural lines similar to the mountains, one could make a large panorama window in this shape. The project then becomes a "rock with a view" that settles naturally in the terrain - hidden by the forest from neighbors and the main road. Still, on the inside of the cabin, you feel like being part of nature.

The cabin has a wooden facade painted in dark grey to naturally blend in with the surrounding nature. The windows are made of wood/aluminum with details in steel to protect from the harsh winter storms. The main entrance is carved into the building mass and creates a sheltered space to relax.

Inside the cabin, the walls are covered with pine boards, oak floors, and a 45x45 wooden slated ceiling. This creates a warm and cozy atmosphere to relax by the fireplace. At the dinner table, one gathers the family with a panoramic view of the mountains. The lines between inside and outside have been blurred and the space changes in tune with the light and landscape.

오두막은 노르웨이 북쪽 69도의 센자에 위치하고 있으며 웅장한 산과 번성하는 어촌, 산과 바다 사이의 좁은 땅이 지역의 특징이다. 인접한 국립 관광 경로는 멋진 전망과 함께 10마일 길이의 여정을 안내한다.

비요노달 아키텍트 스튜디오(Bjørnådal Arkitektstudio)가 설계한 이 오두막은 Hamn이라는 작은 어촌 마을 근처에 있다. 건축주는 센자의 멋진 산과 자연의 탁 트인 전망이 있는 가족 별장을 원했다. 이처럼 아름답고 섬세한 풍경 속에서 자연과 함께 건설하고 풍경의 일부처럼 느껴지는 프로젝트를 계획했다.

건축가는 사미의 건축 전통을 연구하면서 큰 바위 아래에 오두막을 짓는 헬러의 고대 전통을 찾았다. 건물의 파사드를 산과 같은 자연스러운 선이 있는 돌처럼 형성하면서 큰 파노라마 창을 계획했다. 그러면 이 프로젝트는 이웃과 도로로부터 숲으로 가려진 지형에 자연스럽게 자리하는 "전망을 볼 수 있는 바위"가 된다. 건물 내부에서는 자연의 일부가 된 것과 같은 느낌이 든다.

오두막은 주변 자연과 자연스럽게 조화를 이루기 위해 짙은 회색으로 칠해진 파사드가 있다. 창문은 혹독한 겨울 폭품으로부터 보호하기 위해 강철 디테일이 있는 목재와 알루미늄으로 만들어졌다. 주 출입구는 건물 매스에 새겨지듯이 디자인됐다.

건물 내부의 벽은 소나무 보드, 바닥은 참나무, 천장은 45x45 목재 슬레이트로 마감했다. 이는 벽난로 옆에서 휴식을 취할 수 있는 따뜻하고 아늑한 분위기를 연출한다. 저녁 식사 테이블에는 산의 탁 트인 전망과 함께 온 가족이 모일 수 있다. 내외부 사이의 선이 흐려지고 공간은 빛과 풍경에 맞춰 변화한다.


Architect Bjørnådal Arkitektstudio
Location Senja, Norway
Completion 2020
Project architect Bjørnådal Arkitektstudio AS
Landscape architect Bjørnådal Arkitektstudio
Project manager Hans-Petter Bjørnådal
Design team Architect MNAL Hans-Petter Bjørnådal
Collaborators Reidar Fagerholt & Solbjørg Sørensen
Engineers Hustre
Suppliers Hustre
Client Solbjørg Sørensen & Reidar Fagerholt
Photographer Hans-Petter Bjørnådal
'Architecture Project > Single Family' 카테고리의 다른 글
| CIRCLE WOOD HOUSE (0) | 2021.08.05 |
|---|---|
| MADELEINE HOUSE (0) | 2021.08.04 |
| A CASA DO CAMPO LINDO (0) | 2021.07.08 |
| NEW HOUSE IN THE OLD GARDEN (0) | 2021.07.07 |
| Les Belles Echappées (0) | 2021.06.29 |
마실와이드 | 등록번호 : 서울, 아03630 | 등록일자 : 2015년 03월 11일 | 마실와이드 | 발행ㆍ편집인 : 김명규 | 청소년보호책임자 : 최지희 | 발행소 : 서울시 마포구 월드컵로8길 45-8 1층 | 발행일자 : 매일



