
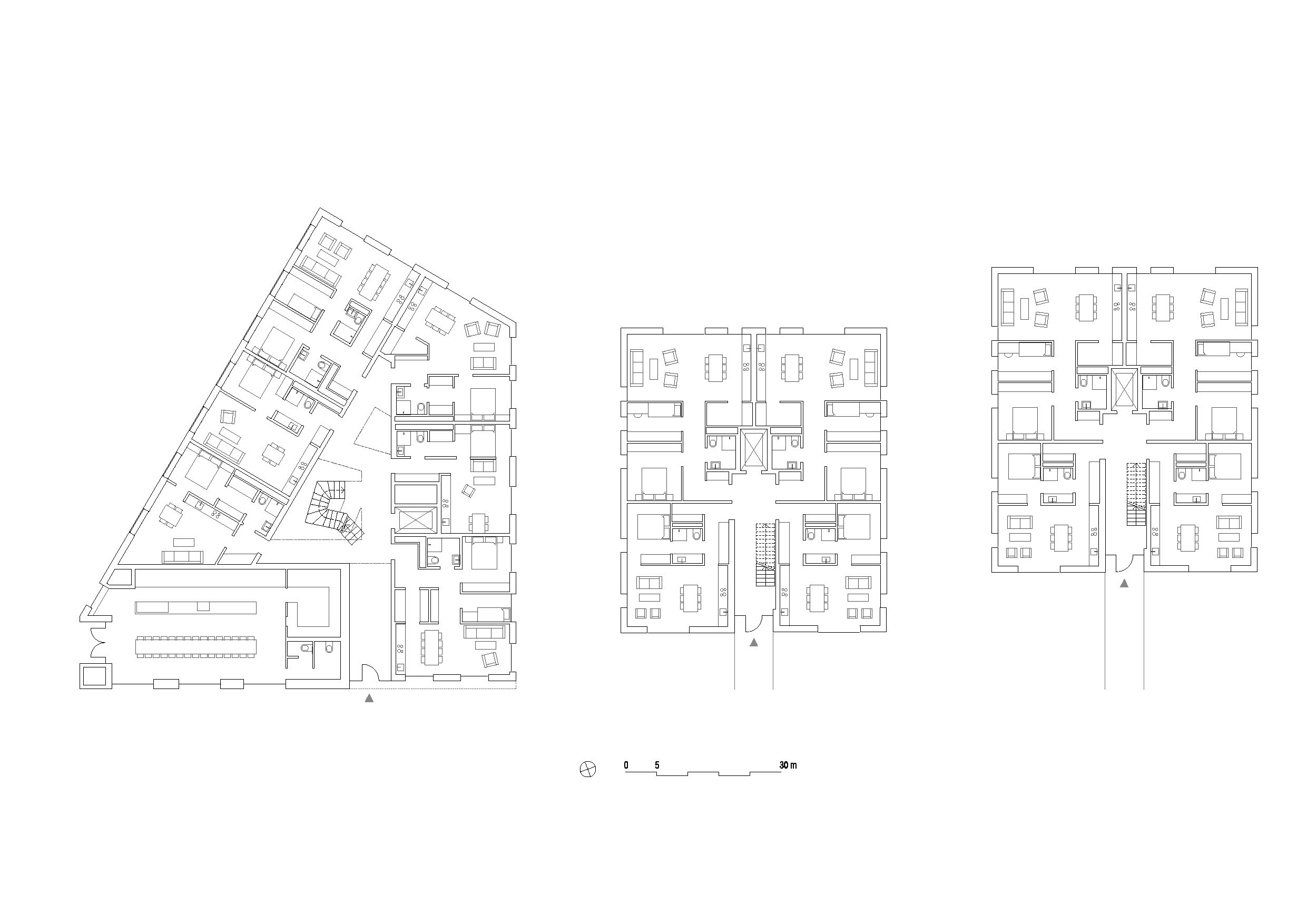
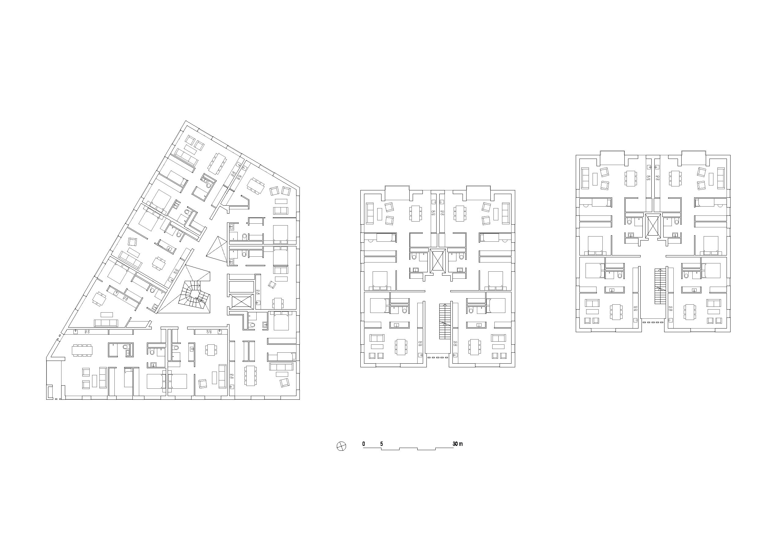
The plot is in a residential area surrounded by buildings from the 1800s and 1900s. Through conscious use of high-quality location and situation-adapted architecture, the aim is to reinforce and develop the inherent identity of the place. P77 becomes an environmentally friendly and urban residential environment with high architectural qualities.

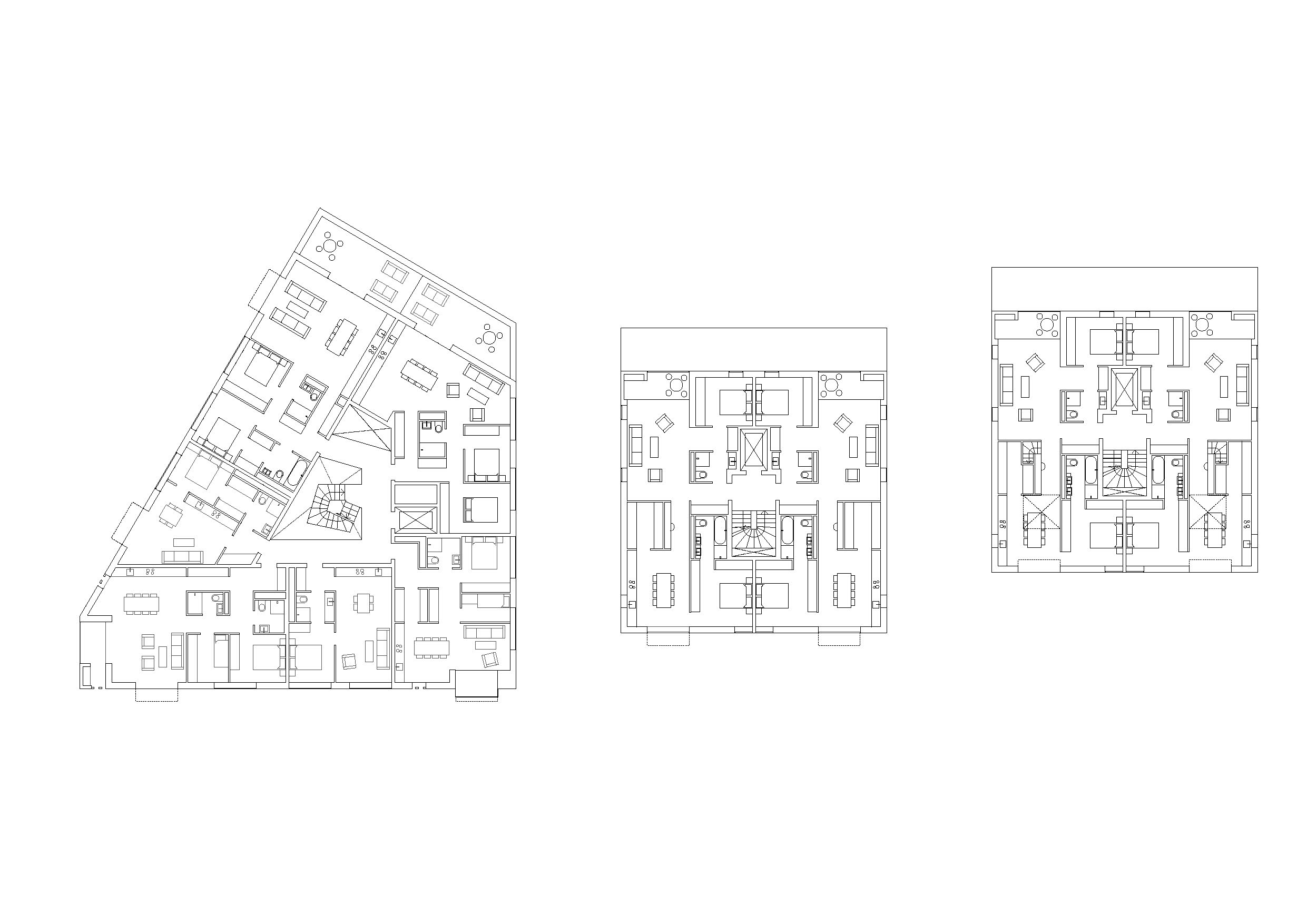
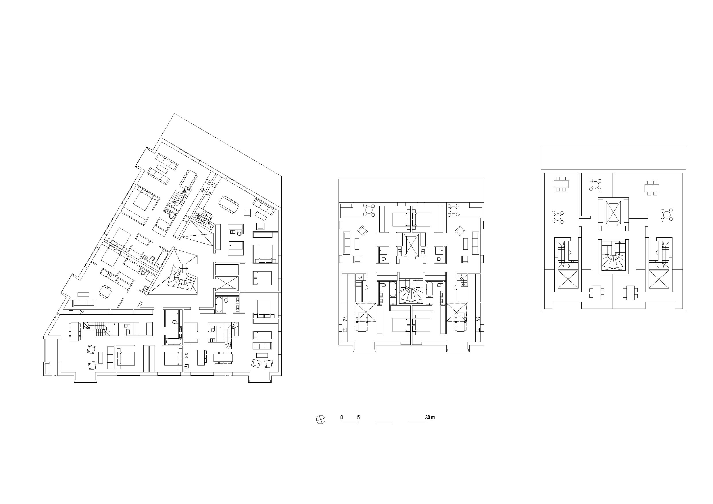
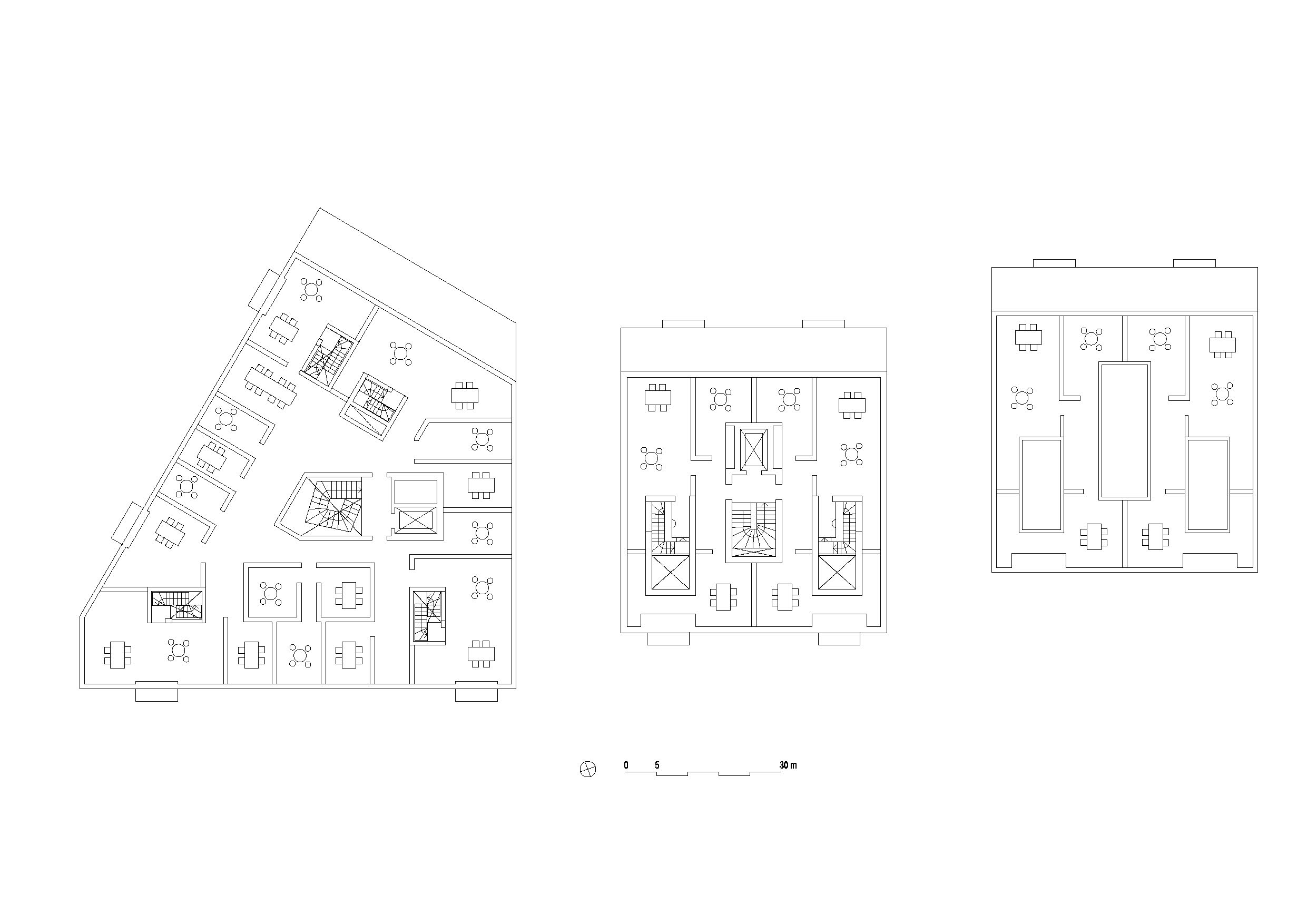
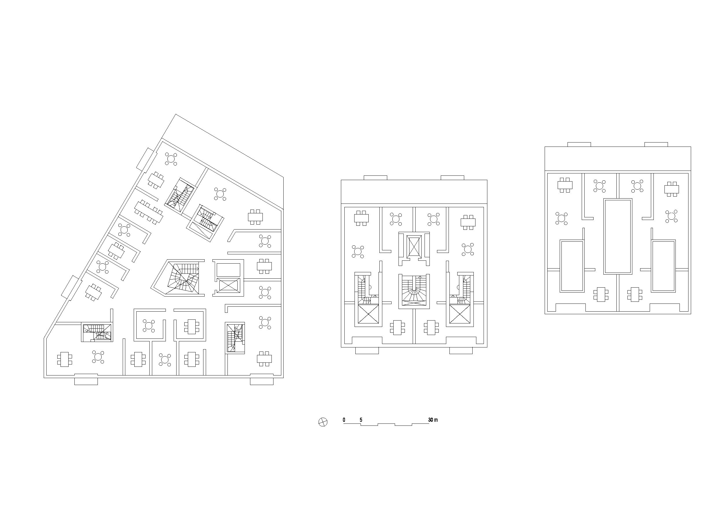
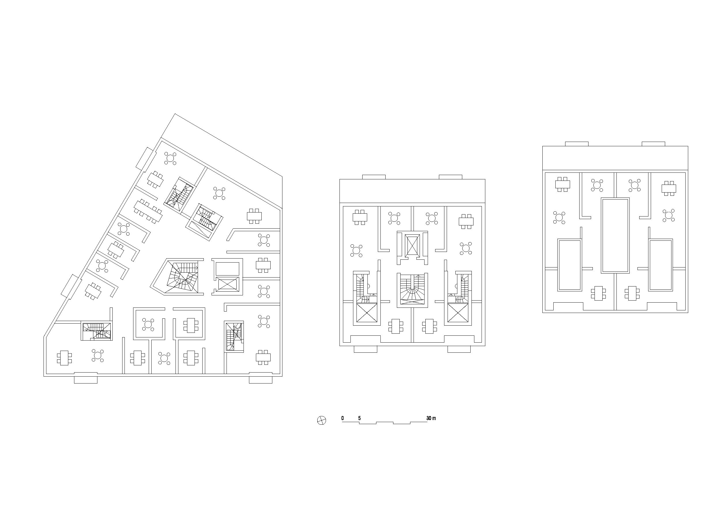
The lower buildings (Pilestredet 79a and 79bB) have a townhouse architectural typology, which gradually withdrawn from the street as they go up Pilestredet and are thus integrated into and create a transition to the city villas with their front gardens in the historical fabric of Fargerborg. They have the same footprint and a principle of alternately four and two apartments per plan.

The bigger volume (Pilestredet 77) designed as a city block, answers the street corner geometry. It defines the end of the Fagerborg neighborhood and a transition towards the more trafficked urban fabric of the site, at the meeting with the more urban identities of Majorstuen, Norabakken, and Stensparken neighborhoods. It includes six to eight apartment units per floor of different sizes.

The lower floors have several smaller units while the higher ones contain larger apartments. There are varied offers with apartments of different sizes and identities that ensure a complex and diverse community.

Quality and detail in all solutions are emphasized. The buildings have a site-adapted limited material palette with a brick exterior. The use of hand-crafted bricks was the most important aspect of the project's architectural facade expression. It is a historical material that can be assembled manually in a very sculptural way and define the project’s identity. The selected bricks have been hand-baked so that they get a very specific structure and rough texture. The façades of the new buildings celebrate long craft traditions, with handmade bricks that play on layers with modern lines, and large windows from ceiling to floor.

대지는 1800년대와 1900년대의 건물로 둘러싸인 주거지역에 위치한다. 건축가는 좋은 위치와 상황에 맞는 건축을 의식적으로 사용하는 것으로 장소의 고유한 정체성을 강화하고 개발하길 원했다. P77은 이런 높은 건축적 특성을 지닌 친환경적이면서 도시적인 주거환경을 자랑한다.

건물 중 낮은 층의 건물(Pilestredet 79a 및 79bB)에는 타운 하우스 유형이 있는데, 이는 피레스트리아타(Pilestredet)를 올라갈 때 거리에서 점차적으로 물러나면서 파게르볼그의 역사성에 정원을 가진 도시 주거로 통합된다. Pilestredet 79a 및 79bB는 동일한 건면적과 평면당 4개와 2개의 단위주호 원칙을 가지고 있다.

도시 블록으로 설계된 큰 볼륨인 Pilestredet 77은 길모퉁이의 지형과 상호작용한다. 이는 마요슈트덴, 노라바켄, 스텐스파켄 지역의 도시 정체성에 기안하여 파게르볼그 지역의 많은 인구가 포함된 도시 구조로의 전환을 정의한다. P77은 다양한 크기의 단위주호가 각 층 당 6 ~ 8개씩 있다.

낮은 층에는 여러 개의 작은 유닛이 있고 높은 층에는 더 큰 아파트가 있다. 복잡하고 다양한 커뮤니티를 에 대응하는 다양한 크기와 정체성을 가진 유닛들이 제공된다.

모든 건축적 해법에서는 시공품질과 세부사항이 강조된다. 건물에는 벽돌로 이루어진 외관과 함께 대지에 맞는 특정한 재료들이 있다. 수제 벽돌의 사용은 프로젝트의 건축 입면 표현에서 가장 중요한 부분이었다. 이는 조각적인 기법을 통해 손수 조립하면서 건물의 정체성을 정의할 수 있는 역사적 사료로서의 가치가 있다. 수제 벽돌은 직접 구웠기 때문에 매우 구체적인 구조와 거친 질감을 가지고 있다. 전체적인 외관은 현대적인 선으로 층을 이루는 수제 벽돌과 천장에서 바닥까지 내려오는 큰 창으로 오랜 공예적 전통을 상징한다.










Architect Reiulf Ramstad Arkitekter
Location Oslo, Norway
Program Apartments
Gross floor area 7,100m2
Completion 2020
Design team Reiulf Ramstad Arkitekter Photo Credits: Ivar Kvaal, Reiulf Ramstad Arkitekter
Client Aspelin Ramm Eiendom AS
Photographer Ivar Kvaal, Reiulf Ramstad Arkitekter
'Architecture Project > Multifamily' 카테고리의 다른 글
| FOUR HOUSES IN ONE (0) | 2021.08.11 |
|---|---|
| HOUSE FOR THREE FAMILIES BELOW THE MOON (0) | 2021.07.01 |
| Housing I Park (0) | 2021.06.28 |
| The Brother's Residence (0) | 2021.04.30 |
| Gounod Residence (0) | 2021.04.22 |
마실와이드 | 등록번호 : 서울, 아03630 | 등록일자 : 2015년 03월 11일 | 마실와이드 | 발행ㆍ편집인 : 김명규 | 청소년보호책임자 : 최지희 | 발행소 : 서울시 마포구 월드컵로8길 45-8 1층 | 발행일자 : 매일



