
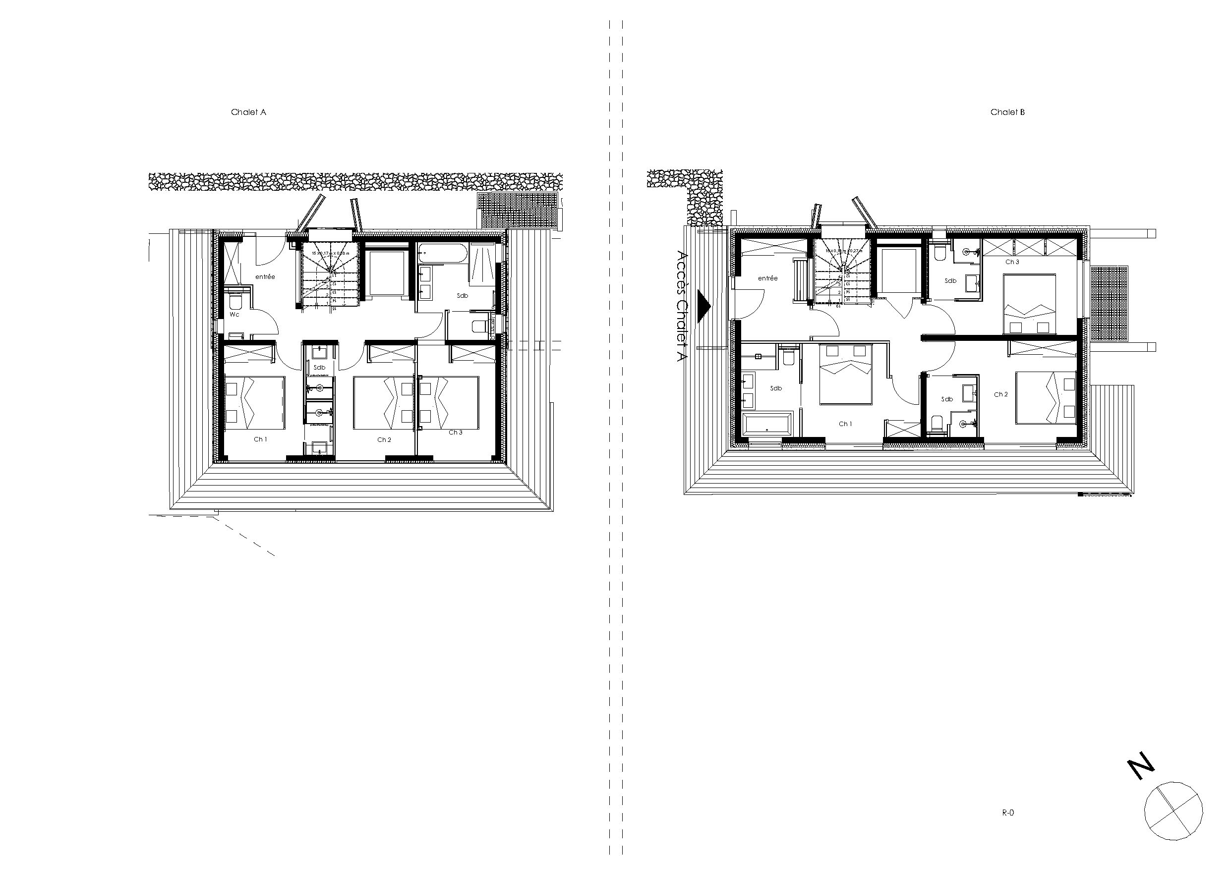
The project began with the discovery of this exceptional land by the architect who proposed it to the client. The latter, seduced, envisages the construction of three chalets, which will be reduced to two constructions to conform to the agreements made with the municipality.

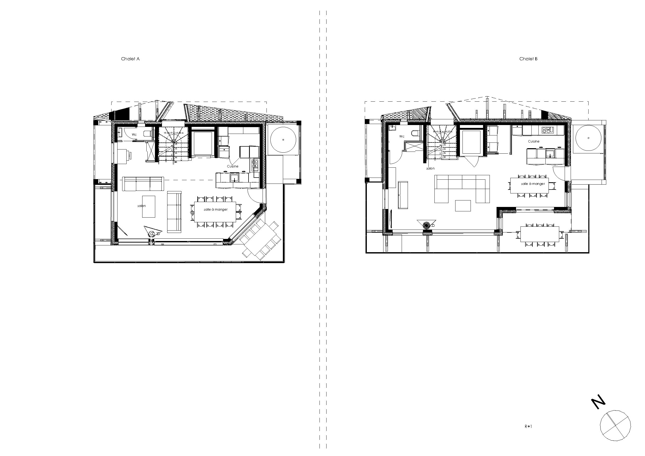
The client, who has already carried out other projects with the agency, wanted a contemporary, unprecedented, and striking proposal. He asked for a strong and pure signature of the Agency’s architectural style. And thus, the kiosks on the roofs, these open volumes tore from the agreed space, are born and gives the master-bedroom a spectacular view on the chain of Mt Blanc, a luminous escape.

The whole was devised taking particular care in framing the view, to isolate themselves from the road while ensuring easy access and good relations with the neighborhood.

The property boundaries brought its share of technical challenges with the difficulties inherent to the holding of the land during the first phases of the work. In addition, the connections between the kiosks and the roof required expertise and ingenuity to guarantee water tightness and good insulation. “Belles Echappées” includes wellness areas, such as a sauna, a hammam, spas, all powered by geothermal energy to reduce energy consumption.

The chalets were built on the basis of a concrete frame, dressed in wood and metal, allowing to integrate the responses to seismic constraints. This blend of materials enhances the design of this project with its high-end finishes. For the architect, “Belles Échappées” offers a singular project with a sharp personal style.

프로젝트는 건축가가 건축주에게 제안한 이 특별한 땅을 발견하면서 시작되었다. 건축주는 세 개의 샬레 건설을 계획하고 있는데, 이는 지방 자치 단체와 체결한 계약에 따라 두 개의 건설로 축소될 것이다.

이미 건축가와 다른 프로젝트를 수행한 적이 있는 건축주는 현대적이면서 전례가 없는 인상적인 설계를 원했다. 이렇게 해서 탁 트인 지붕의 키오스크가 탄생했고, 안방은 밝은 개구부를 두어 산을 향한 멋진 전망을 제공한다.

이 모든 것은 개인적인 공간에 대한 시선 차단에 집중하면서 도로에서 이격하고, 동시에 이웃과는 좋은 관계를 유지할 수 있도록 계획되었다.

부동산 경계는 작업 첫 번째 단계에서 토지를 보유하는 데 내재된 어려움과 함께 기술적 도전을 요했다. 또한 키오스크와 지붕 사이의 연결에는 방수성과 우수한 단열을 보장하기 위한 방법이 필요했다. "벨지 샤티"에는 사우나, 터키탕, 스파와 같은 웰빙 공간이 포함되어 있고, 모두 에너지 소비를 줄이기 위해 지열 에너지를 사용한다.

건물은 콘크리트 프레임에 목재와 철골로 지어졌고 내진성을 가진다. 이러한 자재의 조합은 고급 마감으로 전체적인 디자인을 향상시킨다.






Architect Chevallier Architectes
Location Chamonix Mont-Blanc France
Completion 2019
Principal architect Renaud Chevallier
Design team David Castagna, Thibault Forissier, Sophie Rubin
Photographer Solène Renault
'Architecture Project > Single Family' 카테고리의 다른 글
| A CASA DO CAMPO LINDO (0) | 2021.07.08 |
|---|---|
| NEW HOUSE IN THE OLD GARDEN (0) | 2021.07.07 |
| Röhrig House (0) | 2021.06.25 |
| Forest House I (0) | 2021.06.22 |
| Koya House (0) | 2021.06.21 |
마실와이드 | 등록번호 : 서울, 아03630 | 등록일자 : 2015년 03월 11일 | 마실와이드 | 발행ㆍ편집인 : 김명규 | 청소년보호책임자 : 최지희 | 발행소 : 서울시 마포구 월드컵로8길 45-8 1층 | 발행일자 : 매일



