
The Röhrig House is part of a series of hillside houses designed by Studio Hertweck in the German Rhine Valley. It is located on a steep slope on the edge of the buildable land of Sinzig-Westum, a German municipality between Bonn and Koblenz. The client, a young family with one child, wanted to have generous interior and exterior shared areas, in combination with a rather classical program: two children's bedrooms, a home office, a parents' bedroom, and two bathrooms.

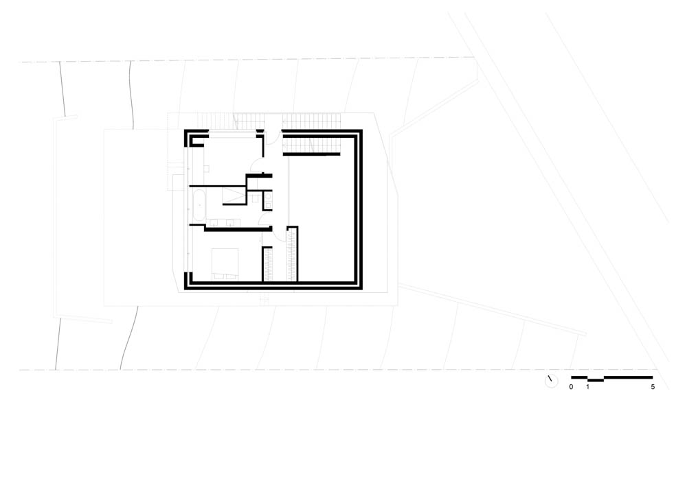
In order to translate this program in an economic way, Studio Hertweck has inscribed a very simple cube into the slope. Garage and storage rooms were accommodated on the ground floor, the children's bedrooms with a bathroom on the first floor. On the second floor, an open living area was created, which opens onto a terrace towards the valley and at the back onto a garden. On the third floor, the architect located the parents' area with their bedroom, bathroom, and home office.

The garden has been connected to the roof terrace by a set of terraces and outside stairs so that people can walk around the house while opening up beautiful views of the landscape. The reduction in terms of materials and the use of unfinished double-shell in-situ concrete walls not only has aesthetic value but also enabled the architect to dispense with some trades such as plastering or scaffolding.

To push the economy of the project even further, Studio Hertweck designed a single shaft in the center of the cube which contains all the networks of the house: from electric cables to water pipes, from the chimney flue to the laundry chute. All the technical appliances and sanitary equipment are arranged around this shaft so that they can be connected exclusively to it. The house is designed so that there are no thermal bridges and is heated by an air-water heat pump.

르릭하우스는 독일 라인강 계곡에 스튜디오 허트웩이 설계한 일련의 산비탈 주택의 일부다. 건물은 가파른 경사에 위치하고 있다. 한 자녀를 둔 건축주는 다소 고전적인 프로그램과 함께 넓은 내부공간과 외부 공간을 원했다. 그에따라 두 개의 어린이침실과 자택근무공간, 부부침실과 두 개의 욕실이 있다.

건축의 경제성을 위해 건축가는 경사면에 단순한 큐브 형태의 매스를 계획했다. 차고와 창고를 1층에, 어린이 침실과 화장실은 2층에 배치했다. 3층에는 계곡을 향한 테라스와 정원으로 연결되는 거실이 있다. 4층에 안방, 욕실, 자택근무를 위한 사무공간을 배치했다.

정원은 테라스와 세트로 외부계단을 통해 옥상 테라스와 연결되어 사람들이 아름다운 풍경을 감상하면서 집을 돌아볼 수 있다. 노출 콘크리트로 계획된 벽은 미적 가치가 높고 미장을 생략할 수 있기때문에 경제적이다.

프로젝트의 경제성을 더욱 향상시키기 위해 건축가는 전기 케이블에서 수도관, 환기, 세탁물 슈트까지 집의 모든 네트워크를 큐브 중앙의 단일 샤프트에 집중시켰다. 모든 설비와 배관은 이 축을 중심으로 배열되어 있고 이곳을 통해서만 연결 가능하다.





Architect Studio Hertweck
Location Sinzig, Germany
Gross floor area 182m2
Design period 2014-2015
Construction period 2016-2020
Conception and artistic supervision Prof. Florian Hertweck, Architect, Luxembourg
Structural engineer Stelio Berikaki, Sinzig
Construction Ira Matheis, Architect, Remagen
Photographer Bildpark / Veit Landwehr, Cologne
'Architecture Project > Single Family' 카테고리의 다른 글
| NEW HOUSE IN THE OLD GARDEN (0) | 2021.07.07 |
|---|---|
| Les Belles Echappées (0) | 2021.06.29 |
| Forest House I (0) | 2021.06.22 |
| Koya House (0) | 2021.06.21 |
| Marconi Residence (0) | 2021.06.18 |
마실와이드 | 등록번호 : 서울, 아03630 | 등록일자 : 2015년 03월 11일 | 마실와이드 | 발행ㆍ편집인 : 김명규 | 청소년보호책임자 : 최지희 | 발행소 : 서울시 마포구 월드컵로8길 45-8 1층 | 발행일자 : 매일



