
Located along the Rock River, adjacent to the College’s campus and close to downtown Beloit, the Powerhouse project combines an assemblage of historic buildings that made up the Blackhawk Generating Station (constructed between 1908-1947) along with a new field house addition. The design retains architectural features and industrial equipment from the original structures while incorporating new sustainable practices and lively gathering spaces that encourage students to mix with each other and the larger Beloit community.

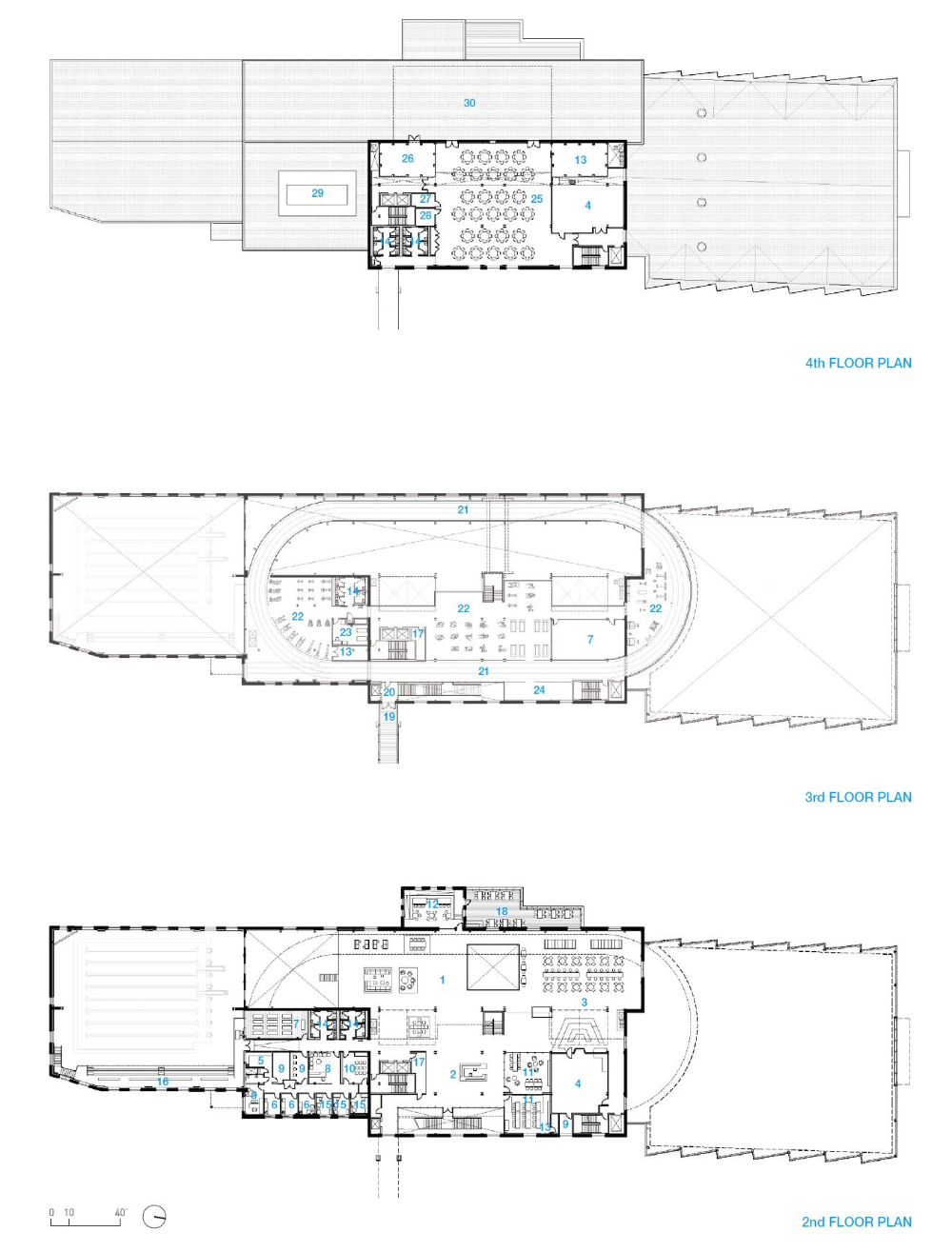
A suspended, three-lane track runs through all portions of the building, which houses a fitness center and recreational gym, eight-lane competition swimming pool, and the indoor turf field house, as well as spaces for conversation, collaboration, and study. Additional amenities include a coffee shop, student lounges, club rooms, conference center, and a 164-seat auditorium.

Transforming the hundred-year-old structure presented significant challenges, especially to efficient energy use. New insulation regulates heat flow in the historic portions of the building, while the polycarbonate façade of the new field house provides advanced thermal insulation and abundant, diffuse natural light throughout the day. In addition, a radiant panel and slab system harnesses energy from the Rock River for most of the Powerhouse’s heating and cooling needs, improving comfort within the building and maintaining the highest air quality, while also minimizing total energy use.

A new pedestrian bridge and publicly-accessible elevator connect the Beloit College campus, which sits on a hill, with the Powerhouse and the adjacent riverside paths and parks at ground level. Forming these new links between town, gown, and river, the former power plant is now generating a more energetic and vibrant community life.

록강(Rock River)를 따라 벨로잇 시내에서 가까운 벨로잇 대학시설 공간은 블랙호크 발전소(Blackhawk Generating Station, 1908-1947 사이에 건설된 미국 위스콘신주 벨로이트에 위치한 발전소)를 구성하는 역사적인 건물의 집합체와 새로운 공간의 증축 프로젝트다.

이 디자인은 기존의 건축적 형태의 특징과 산업 장비들을 그대로 보존하면서, 새로운 지속가능성과 더 큰 규모의 벨로잇 공동체의 삶을 장려하는 활기찬 모임 공간을 제공하는 것에 그 목적이 있다. 매달린 3라인 트랙은 건물의 모든 부분을 통과하며, 여기에는 피트니스 센터와 레크리에이션 체육관, 8레인 수영장, 실내 잔디 필드 하우스는 물론 대화, 협업 및 학습 공간이 있다. 추가 편의시설로는 커피숍, 학생 라운지, 동아리방, 콘퍼런스 센터와 164석 규모의 강당이 있다.

백 년 된 공간을 사용한다는 것은 특히 현대적 기준에 맞는 효율적인 에너지 사용의 기준을 적용해야 한다는 것이다. 먼저 새롭게 적용된 단열재는 건물의 역사적인 기존 영역의 열 흐름을 조절하는 역할을 하며, 폴리카보네이트 파사드는 첨단 단열과 하루 종일 풍부한 자연광을 제공한다. 또한, 태양열 패널 및 슬래브 시스템은 발전소의 냉난방 수요 대부분을 위해 암석 강의 에너지를 활용하여 건물 내부의 편안함을 개선하고, 최고의 공기 품질을 유지하는 동시에 총 에너지 사용량을 최소화한다. 새로운 보행 브리지와 외부에서 접근할 수 있는 엘리베이터는 언덕에 위치한 벨로잇 대학 캠퍼스와 발전소, 인접한 강변 산책로 및 공원을 지상으로 연결한다. 도시, 가운, 그리고 강 사이의 이러한 새로운 연결고리를 형성하고 있는, 이전의 발전소는 이제 더 활기차고 활기찬 공동체 생활을 만들어내고 있다.














Architect STUDIO GANG
Location Beloit, Wisconsin, USA
Program Educational
Gross floor area 11,148.36m2
Principal architect Jeanne Gang
Associate architect Angus Young Associates
Civil engineer R.H. Batterman & Co.
Landscape architect Applied Ecologival Services
Completion 2020
Photographer Tom Harris
해당 프로젝트는 건축문화 2021년 4월호(Vol. 479)에 게재 되었습니다.
The project was published in the April, 2021 issue of the magazine(Vol. 479).
April 2021 : vol. 479
Contents: RECORDS THE WINNERS OF THE 2021 PRITZKER PRIZE: NEWS / COMPETITION / BOOKS: SKETCH ROBIE HOUSE, CHICAGO / LAPIN
anc.masilwide.com
'Architecture Project > Education' 카테고리의 다른 글
| SKKU GLOBAL LOUNGE (0) | 2021.09.03 |
|---|---|
| LÉONARD DE VINCI TECHNICAL COLLEGE (0) | 2021.06.17 |
| DUNCHON LIBRARY (0) | 2021.06.14 |
| FANTAILS ESTATE, DAIRY FLAT (0) | 2021.06.01 |
| PUBLIC SOLBIT FOREST KINDERGARTEN (0) | 2021.05.31 |
마실와이드 | 등록번호 : 서울, 아03630 | 등록일자 : 2015년 03월 11일 | 마실와이드 | 발행ㆍ편집인 : 김명규 | 청소년보호책임자 : 최지희 | 발행소 : 서울시 마포구 월드컵로8길 45-8 1층 | 발행일자 : 매일



