
The architecture of a technical college needs to express construction. It must offer the flexibility essential to a continuously evolving program. It must be simple and strong, able to serve students and staff over time. The project goes straight to the point. Shape and constructional traits arise from the rational imperatives of the programme: doubling the surface area of the college, with the creation of a new building that will accommodate 1,200 students, while maintaining the facility’s activities.

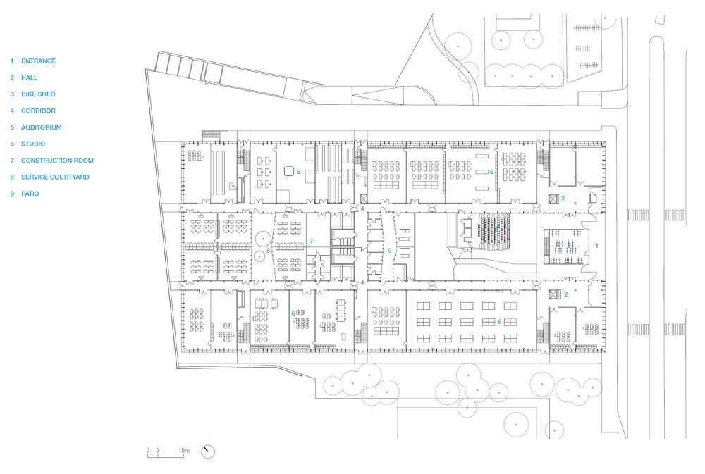
The new building is distributed on three levels. On the ground floor are areas for technical instruction with workshops, cloakrooms and stores, forming a U around the courtyard and opening onto the forecourt. Movement is distributed via two interior streets which, as well as providing natural light, facilitate orientation within the complex. The ground floor is built into the slope, so that the first floor, where the college’s student and administrative life takes place, is on the same level as the park that will eventually run through the building. These functions are connected by large covered patios, creating a selective dialogue between themselves and the world outside. On the second floor, classrooms provide exclusive views over the park and the central garden.

A 3.6m load-bearing skeleton divided into 1.2m units structures the building. The joinery and facade cladding, lights, radiators and electrical terminals maintain this same regular pattern. The uniform distribution of the utility networks, the repetitive design of the openings and the absence of internal bearing walls make for genuine modular flexibility. The solar screens are fixed in such a way as to leave the views open. They are adapted to the orientation of each facade and play a structural role by providing rigidity for the high glass walls on the ground floor and support for the service passage on the second floor. Through this economy of resources and simplicity of construction, through the rejection of arbitrary design of all kinds, the architecture remains free of any formal presumption and pared down to its simplest constructional truth.

레오나르 드 빈치 공과대학 건축물은 간결한 구조들이 드러나는 건축물이며, 발전하는 교육 프로그램에 따라 필수적으로 유연성을 제공해야 하는 공간이다. 이 건물은 간결하고 튼튼해야 하며, 시간이 지남에 따라 학생들과 직원들에게 서비스를 제공할 수 있어야 한다. 프로젝트는 바로 디자인핵심에 도달했다. 형태와 구조적 특성은 프로그램의 합리적 요구에서 비롯된다. 건물의 연면적을 두 배로 늘리고, 시설의 활동을 유지하면서 1,200명의 학생을 수용할 수 있는 새로운 건물을 계획해야 했다.

새 건물은 세 층으로 나눠져 있다. 1층에는 작업장, 휴대품 보관소 및 상점과 기술 교육 공간이 있으며, 중정 둘레로 ㄷ자 형태의 공간을 형성하고 이곳은 앞마당으로 연결된다. 두 갈래의 내부 동선은 자연 채광을 제공할 뿐만 아니라 단지 안으로 향하는 것을 용이하게 한다. 대학의 학생과 행정 생활이 이루어지는 1층은 결국 건물을 통과하게 될 공원과 같은 층에 있다. 이러한 기능은 지붕이 있는 넓은 파티오로 연결되어 외부와 선택적인 대화를 만들어낸다. 2층의 강의실은 공원과 중정의 독점적인 전망을 제공한다.

1.2m 단위로 나누어진 3.6m 길이의 하중 지지 골격이 건물을 구성한다. 가구와 정면 클래딩, 조명, 라디에이터 및 전기 단자는 동일한 규칙적인 패턴을 유지한다. 유틸리티 네트워크의 균일한 분포, 개구부의 반복적인 설계 및 내부 구조벽의 부재는 진정한 모듈식 유연성을 만든다. 태양광 스크린은 시야를 열어 두도록 고정되어 있다. 이들은 각 파사드의 방향에 맞게 조정되며 1 층의 높은 유리 벽에 강성을 제공하고 2층의 서비스 통로를 지원하여 구조적 역할을 한다. 경제적인 재료 사용과 심플한 구조의 건설과정을 통해 구조는 하중을 지지하기 위한 것만이 아니라는 것을 보여주는 프로젝트다.










Architect TANK architectes, COSA
Location Saint-Germain-en-Laye, France
Program Educational facility
Site area 11,600m2
Gross floor area 14,880m2
Design team Théophile Marmorat, Géraud Pin-Barras with Antoine Courdy, Marc Duatis, Eliott Girardot, Pierre Louvet, Daniel Nagy, Adélie Quénot, Ana Vida
Completion 2020
Landscape design Sébastien Sosson
Sturctural engineer Bollinger + Grohmann
Photographer Camille Gharbi
해당 프로젝트는 건축문화 2021년 4월호(Vol. 479)에 게재 되었습니다.
The project was published in the April, 2021 issue of the magazine(Vol. 479).
April 2021 : vol. 479
Contents: RECORDS THE WINNERS OF THE 2021 PRITZKER PRIZE: NEWS / COMPETITION / BOOKS: SKETCH ROBIE HOUSE, CHICAGO / LAPIN
anc.masilwide.com
'Architecture Project > Education' 카테고리의 다른 글
| MONTESSORI KINDERGARTEN (0) | 2021.09.07 |
|---|---|
| SKKU GLOBAL LOUNGE (0) | 2021.09.03 |
| BELOIT COLLEGE POWERHOUSE (0) | 2021.06.16 |
| DUNCHON LIBRARY (0) | 2021.06.14 |
| FANTAILS ESTATE, DAIRY FLAT (0) | 2021.06.01 |
마실와이드 | 등록번호 : 서울, 아03630 | 등록일자 : 2015년 03월 11일 | 마실와이드 | 발행ㆍ편집인 : 김명규 | 청소년보호책임자 : 최지희 | 발행소 : 서울시 마포구 월드컵로8길 45-8 1층 | 발행일자 : 매일



