
Located in the center of a historical area, the Jingdezhen Imperial Kiln Museum is adjacent to the ruins of the Imperial Kiln and surrounded by many ancient kiln complexes. Because of its porcelain industry, Jingdezhen grew naturally in the valleys with rivers, hills, and mountains. Situated on a fairly restricted historical area adjacent to the east side of the Imperial Kiln Ruins, the Imperial Kiln Museum was planned to be aligned with the north-south street grid of Jingdezhen. It was built directly opposite to the historical ruins of the Imperial kilns, with an entry facing west, water pools, and a bridge. Visitors from the Imperial Kiln Relic Park can easily find access to the museum as they walk under the canopy of shady green and across the newly-built bridge.

The Imperial Kiln Museum comprises eight brick vaults, inspired by the shape of the traditional kiln. Each of the vaults is of different size, curvature, and length. The unparalleled and arched structures of the museum, like old kilns, reach below the level of the street to not only attain adaptability towards the complicated site but also create an intimate scale of interior space.

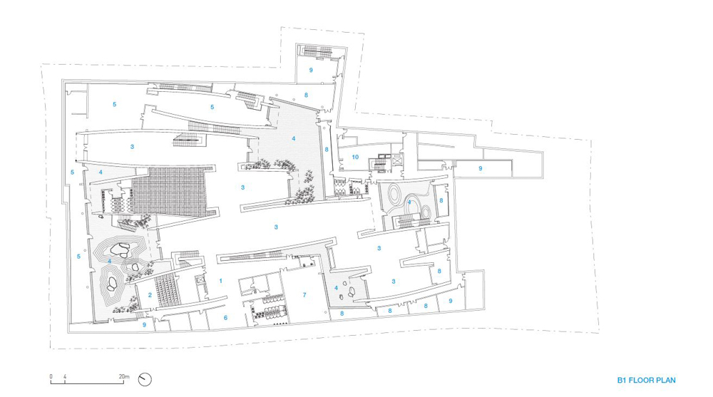
This strategy-in part also a response to the height of surrounding historical buildings-leads to an ambiguous relationship with the building’s horizontal datum. The “insertion” of the building into the ground of the site produces a series of public spaces at street level, allowing for several open vaults that are intimate to the visitors, and sunken courtyards within the museum. Most of the vaults are open at the back and front and form a place protected from the hot and humid weather in the summer of Jingdezhen. In one of those open spaces, traces of the ancient kilns are revealed to the visitors.

The museum is accessed via a forecourt, as visitors walk across the bridge, enter the foyer and turn left, they will pass a series of arched spaces of temporary and permanent exhibitions. Waking down through a bare concrete stairway to the underground level, visitors are present with five sunken courtyards that are slightly varied in size. All of the porcelains, ruins, sunken courtyards, along with the ancient bricks and façade, create a multi-layered museum experience for visitors. As you turn right at the foyer, you will respectively pass the bookstore, cafe, tea room and finally reach a semi-outdoor area under the arch with a picturesque scene: the rough surfaces of the arches reflect the waves of water during daytime, the low horizontal opening invites visitors to sit down, presenting them with a surprising view of Imperial Kiln Ruins. A Similar kind of surprise would be found on the way to the auditorium, peeking through the vertical seams, visitors can see the Longzhu Pavilion of the Imperial Kiln Ruins.

Five sunken courtyards of various sizes are dedicated to different themes: gold, wood, water, fire, and earth. These five themes not only reflect the ancient Chinese thinking of nature but also relate to the techniques of porcelain making. Above all, the Imperial Kiln Museum is built to rediscover the roots of Jingdezhen and rejuvenate the experience once shared among kiln, porcelain, and people who have always been living there.

*도자기 산업의 도시 징더전의 삶과 기억의 온도를 보존한 박물관, 징더전 황실가마박물관 *
역사적인 지역의 중심에 위치한 징더전 황실가마박물관은 황실가마유적에 인접해 있으며 수많은 가마 복합단지에 둘러싸여 있다. 도자기 산업의 영향으로 징더전은 강과 계곡, 언덕, 산이 있는 곳에서 자연스럽게 성장했다. 역사적이고 엄격하게 제한된 황실가마유적의 동편에 인접한 지역에 위치한 황실가마박물관은 징더전의 남북 격자무늬 길과 정렬되도록 계획됐다. 황실가마의 유적과 바로 맞은편에 지어졌고 서쪽을 바라보고 있는 출입구와 연못, 다리가 있다. 황실가마유적공원의 방문객은 그늘진 녹색의 캐노피 아래와 새로 지어진 다리를 건너면서 박물관에 쉽게 접근할 수 있다.

황실가마박물관은 전통 가마에서 영감을 얻어 여덟 개의 아치형 지붕으로 지어졌다. 각각의 아치형 지붕은 크기, 곡률, 길이가 다르다. 오래된 가마 같으면서 독보적인 아치형 구조의 박물관은 복잡한 장소에 적응할 수 있을 뿐만 아니라 작은 내부 공간도 만들 수 있다.

주변 역사적 건물의 높이를 고려할 때, 이 계획은 주변 건물들의 수평적 기준을 모호하게 만든다. 건물이 부지의 지면에 들어서면 일련의 공공 공간이 만들어지고 방문객들은 친숙한 여러 개의 아치형 지붕과 박물관 내부로 움푹 파인 안뜰을 이용할 수 있게 된다. 대부분의 아치형 지붕은 뒤쪽과 앞쪽이 열려 있어 징더전의 덥고 습한 여름 날씨를 피할 수 있는 장소로 제공된다. 개방된 공간들 중 하나에서 방문객은 고대 가마의 흔적을 볼 수 있다.

박물관은 앞마당을 통해 들어갈 수 있으며 방문객이 다리를 건너 로비로 들어가 왼쪽으로 가면 상설 및 기획 전시가 열리는 일련의 아치형 공간을 지나게 된다. 노출콘크리트 계단을 따라 지하로 내려가면 방문객들은 크기가 각기 다른 다섯 개의 움푹 패인 안뜰을 보게 된다. 모든 종류의 도자기, 유적, 움푹 패인 안뜰, 고대 벽돌 및 외관은 방문객에게 다양한 층의 박물관을 경험하게 해준다. 로비에서 오른쪽으로 가면 서점, 카페, 다실이 있고 그곳을 지나면 아치 아래에 그림 같은 풍경이 펼쳐지는 반 야외 공간을 마주하게 된다. 낮 동안에는 아치의 거친 표면에 반사된 물결이 비춰진다. 낮게 늘어선 수평 창문에서 앉았을 때 보이는 전망은 방문객에게 황실가마유적의 놀라움을 준다. 이러한 놀라움은 강당으로 가는 길에서도 마주하게 된다. 수직 경계선을 통해 방문객들은 황실가마 유적의 용주각(Longzhu Pavilion)을 볼 수 있다.

다양한 크기의 다섯 개의 움푹 패인 안뜰은 금, 나무, 물, 불, 흙 등 다양한 주제를 이룬다. 이 다섯 가지 주제는 고대 중국의 자연에 대한 생각을 반영할 뿐만 아니라 도자기 제작 기술과도 관련이 있다. 무엇보다 황실가마박물관은 징더전의 뿌리를 재발견하고 가마, 도자기 그리고 그곳에 살았던 사람들이 서로 공유했던 경험을 되살리기 위해 지어졌다.









Architects ALVISI KIRIMOTO + HARCOME
Location Jingdezhen, Jiangxi, China
Site area 9,752m2
Building area 2,920m2
Gross floor area 10,370m2
Building to land ratio 29.4%
Floor area ratio 106%
Design period 2016 - 2017
Construction period 2017 - 2020
Structure Reinforced concrete arch shell, Brick arch
Architecture, Interior, Landscape design Studio Zhu-Pei
Cooperative design Architectural Design and Research Institute of Tsinghua University
Principal architect Zhu Pei
Design team You Changchen, Han Mo, He Fan, Shuhei Nakamura, Liu Ling, Wu Zhigang, Zhang Shun, Du Yang, Yang Shengchen, Chen Yida, He Chenglong, Ding Xinyue
Client Jingdezhen Municipal Bureau of Culture Radio Television Press Publication and Tourism, Jingdezhen Ceramic Culture Tourism Group
Photographer schranimage
해당 프로젝트는 건축문화 2021년 2월호(Vol. 477)에 게재 되었습니다.
The project was published in the February, 2021 issue of the magazine(Vol. 477).
February 2021 : vol. 477
Contents : RECORDS THE EXPERIMENT TO FACE A REALITY IN AN INFINITE GRID : NEWS / COMPETITION / BOOKS : SKETCH PINK PAVILION IN PAVLOVSK / NEVEROVA OLESYA : RECENT PROJECT GLAMTREE RESORT EMBRACES N..
anc.masilwide.com
'Architecture Project > Cultural' 카테고리의 다른 글
| U.S. OLYMPIC AND PARALYMPIC MUSEUM (0) | 2021.04.16 |
|---|---|
| HE ART MUSEUM (0) | 2021.04.15 |
| MUSÉE ATELIER AUDEMARS PIGUET (0) | 2021.04.13 |
| ELEPHANT MUSEUM (0) | 2021.04.12 |
| NATIONAL IKSAN MUSEUM (0) | 2021.04.09 |
마실와이드 | 등록번호 : 서울, 아03630 | 등록일자 : 2015년 03월 11일 | 마실와이드 | 발행ㆍ편집인 : 김명규 | 청소년보호책임자 : 최지희 | 발행소 : 서울시 마포구 월드컵로8길 45-8 1층 | 발행일자 : 매일



