
Elephants have a special status in Thailand. They are part of grand royal ceremonies and were war animals for Kings throughout the country’s ancient history. In addition to being respected, the relationship between elephants and Thai people are unique-being treated as family members rather than pets or labour. The bond is perhaps strongest in the village of the ethnic Kui in Surin province, north-eastern Thailand. For many centuries, the community has lived with elephants that their ways of life, from birth to death, can hardly be separated. Once lush greenery, the forest of Surin was destroyed in favour of cash crops in the last half-century. The Kui and their elephants suffered extreme droughts, shortages of food and medicinal plants the forest once provided. Deprived of sustenance, the two displaced to tourist towns begging for food or working in elephant camps, some with unsuitable living conditions.

Elephant Museum is part of Elephant World, a project initiated by the local government to bring the two back to their homeland and to ensure the suitable living conditions for the elephants. Not only showcasing objects, but the museum shall also portray the voice of the villagers and more than 200 elephants living here-of their long-established familial relationship disapproval of the cruelty of animal exploitation, and of their hope for the future.

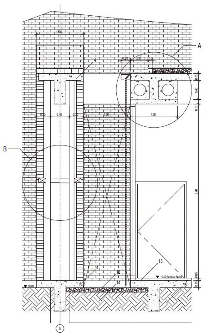
Amidst the vast treeless landscape, curved walls at varying heights sprout from the ground, seemingly opening the building up to visitors of an elephant’s size. The walls slope and cross one another, revealing gaps that lead visitors to the inside. Courtyards of different shapes and sizes open up from the four exhibition galleries. Some are filled with small pools, some with reddish earth just like the landscape outside. Different scales of outdoor paths, sheltered space, and open courtyards, recall elements of the area: from elephants, humans, their houses, the ponds they both bathe, to the dirt bath the playful elephants enjoy. Portraying life under the sun, sunlight is an essential element in the design. Rooms and paths are brightly lit by sunlight in certain areas and dimmed in others. The effects change throughout the day, depending on the angle of the sun.

Exhibitions may happen in the courtyards or on exterior walls. And inside the galleries, one may only find seats to rest and look out at the content displayed outside while reflecting on the coexistence between the two species. Over 4,800,000 fired clay bricks are made by hand from loam found in the area with the technique that has been passed down through generations. In the town where there are not many job opportunities, the construction process creates jobs and income for the locals while increasing the value of the often-overlooked local material. After decades of struggling away from home, the museum shall empower the Kui, the elephants, and the people of Surin. Its programme and the building process shall encourage them to take pride in their heritage, and restore the dignity of their beloved elephants once again.

4,800,000개의 수제 벽돌로 만들어진 인간과 동물의 공존의 메시지를 전하는 코끼리 박물관
코끼리는 태국에서 특별한 지위를 가지고 있다. 왕족의 성대한 의식에도 등장하고, 고대 역사를 통틀어 전쟁을 위한 동물이었다. 이렇게 추앙받는 것 외에도, 코끼리와 태국 사람들 사이의 관계는 독특하여, 애완동물이나 노동력이 아닌 가족으로 대접받기도 한다. 이 유대는 아마도 태국 북동부 수린 지방의 쿠이족 마을에서 가장 강력할 것이다. 이 마을 사람들은 수 세기 동안 코끼리와 함께 살아왔기 때문에, 태어날 때부터 죽을 때까지 그들의 삶의 방식은 거의 분리될 수 없다. 무성한 녹지였던 수린의 숲은 지난 반세기 동안 환금 작물의 재배를 위해 파괴됐다. 쿠이족과 코끼리들은 숲의 극심한 가뭄으로 식량과 약용식물의 부족을 겪기도 했다. 생계 수단을 빼앗긴 이들은 식량을 구걸하거나 코끼리 캠프에서 일하는 관광지로 이주했으며 이곳에 남은 일부의 생활 환경도 좋지 않았다.

새롭게 세워진 코끼리 박물관은 코끼리를 고국으로 데려오고, 코끼리들에게 적합한 생활 환경을 보장하기 위해 지방 정부가 시작한 프로젝트인 코끼리 세계(Elephant World)의 일부다. 이 박물관은 전시품뿐만 아니라, 동물 착취의 잔인함과 미래에 대한 희망을 마을 주민과 이곳에 살고 있는 200마리가 넘는 코끼리의 목소리를 묘사하여 전시한다.

나무가 없는 광대한 풍경 속에서 박물관은 다양한 높이의 곡선 벽이 땅에서부터 싹이 트고 형성된 것처럼 보인다. 코끼리같은 크기의 공간들은 방문객에게 환영의 손길을 내민다. 벽은 경사지고 서로 교차하여 방문객을 내부로 이끄는 틈새를 드러낸다. 4개의 전시관은 다양한 모양과 크기의 안뜰이 연결되고, 일부는 작은 연못으로, 일부는 외부 풍경처럼 붉은 흙으로 가득 차 있다. 다양한 규모의 야외 길, 비바람을 막아주는 공간, 열린 안뜰은 코끼리, 인간, 집, 그들 둘 다 목욕하는 연못, 장난기 많은 코끼리들이 즐기는 흙탕물에 이르기까지 수린 지역의 요소들을 떠올리게 만든다. 태양 아래서 삶을 묘사하는 햇빛은 이 공간의 설계에서 필수적인 요소였다. 전시관과 길들은 어떤 부분에서는 햇빛에 의해 밝게 빛나고 다른 부분에서는 희미하게 빛난다. 이러한 빛에 의한 공간은 태양의 각도에 따라 하루 종일 변한다.

전시회는 뜰이나 외벽에서도 열릴 수 있다. 그리고 미술관 안에서는 인간과 코끼리의 공존을 되새기면서 쉴 수 있는 자리를 찾고 밖에 전시된 작품을 바라볼 수 있을 것이다. 4,800,000개 이상의 내화벽돌은 현지 지역의 토양을 가지고 수공으로 만들어졌으며, 지역 대대로 전해 내려오는 기술로 만들어졌다. 일자리가 많지 않은 마을에서 건설 과정은 지역 주민들을 위한 일자리와 소득을 창출하는 동시에 토속 재료를 사용함으로써 그 가치를 드높였다. 코끼리 박물관은 수십 년 동안 고향을 떠나 고군분투한 쿠이족, 코끼리 그리고 수린 사람들에게 용기를 북돋아줄 것이다. 이 프로그램과 건축 과정은 그들의 유산에 자부심을 갖도록 격려하며, 그들이 사랑하는 코끼리의 존엄성을 다시 회복하는 계기를 만들어줄 의미 깊은 공간이다.


Architects BANGKOK PROJECT STUDIO
Location Camerino, Macerata, Italy Surin Province, Bangkok, Thailand
Gross floor area 5,400m2
Completion 2020
Principal architect Boonserm Premthada
Design team Boonserm Premthada, Nathan Mehl
Engineer Preecha Suvaparpkul
Consultants Surin Provincial Administration Organisation
Construction Rattanachart Construction Co, Ltd.
Client Surin Provincial Administration Organisation
Photographer Spaceshift Studio
해당 프로젝트는 건축문화 2021년 2월호(Vol. 477)에 게재 되었습니다.
The project was published in the February, 2021 issue of the magazine(Vol. 477).
February 2021 : vol. 477
Contents : RECORDS THE EXPERIMENT TO FACE A REALITY IN AN INFINITE GRID : NEWS / COMPETITION / BOOKS : SKETCH PINK PAVILION IN PAVLOVSK / NEVEROVA OLESYA : RECENT PROJECT GLAMTREE RESORT EMBRACES N..
anc.masilwide.com
'Architecture Project > Cultural' 카테고리의 다른 글
| JINGDEZHEN IMPERIAL KILN MUSEUM (0) | 2021.04.14 |
|---|---|
| MUSÉE ATELIER AUDEMARS PIGUET (0) | 2021.04.13 |
| NATIONAL IKSAN MUSEUM (0) | 2021.04.09 |
| SSR CULTURAL COMPLEX(GONGGAMSONYOO) (0) | 2021.04.06 |
| BACHLEDKA SUMMIT FACILITIES (0) | 2021.02.09 |
마실와이드 | 등록번호 : 서울, 아03630 | 등록일자 : 2015년 03월 11일 | 마실와이드 | 발행ㆍ편집인 : 김명규 | 청소년보호책임자 : 최지희 | 발행소 : 서울시 마포구 월드컵로8길 45-8 1층 | 발행일자 : 매일



