
Iksan Mireuksaji, located on the plain between the left and right ridges of Yonghwasan Mountain, is a world cultural heritage built according to the Buddhist scriptures of the Baekje period, and only the site remains. The National Museum of Iksan, built next to this Mireuksaji site, maximizes the value of the Mireuksaji site by rediscovering the value of the site itself. The architect discovered traces of past history through extremely lowered and hidden spaces, realizing a space that enters into time, a space that meets the time of history, and a space where the lights of time overlap.

Iksan Mireuksaji Site is a place where the two remaining stone pagodas, the surrounding Yonghwasan, and the south pond are harmonized, and already had a beautiful landscape. The Iksan National Museum has the position of an “invisible museum” that is positioned as an integrated landscape so that the beauty of the Mireuksaji site itself, a world heritage site, is not obscured and can be harmonized. It solidifies meaning as a museum integrated with the surrounding landscape. The exterior of the building contains the spatial structure of the Mireuksaji site, which is located between the left and right ridges south of Yonghwasan, while lowering the height.

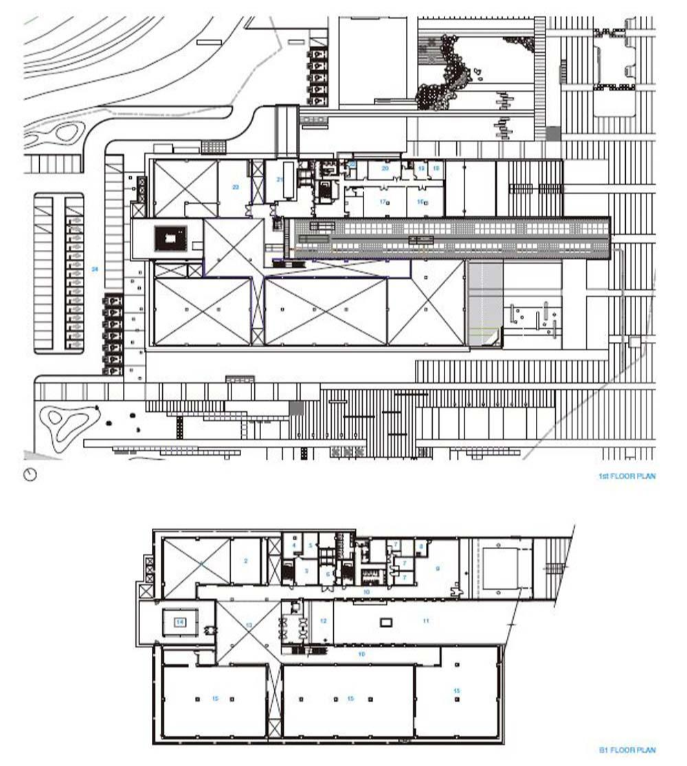
The museum enters the interior of the museum along an inclined path to the first basement level 35m above sea level through the lamp on the east side facing Mireuksaji. Experience architecture as a landscape, the process of naturally approaching the interior along the road, and exhibitions, climbing on the roof and imagining the glorious Mireuksaji site in the past, and experiencing the exploration of the time of history for viewers. It is space. At the start of the ramp, the boundary between the ground and the basement of the museum begins. The boundary divided by the slabs of the inner space becomes an artificial hill at the point facing the outer boundary of the museum mass and rises from the ground, and the inner facade facing the ramp expresses the boundary between the ground and the basement through a change in pattern.

The exhibition space and functional space that require a high level of height appear from the left and right. The ramp path that reaches the entrance extends from the center of the building, purifying the mind through the Ilju Gate, and the process of walking while thinking about the meaning of Mireuksaji before facing the essence of history through the realization of the entrance method of a general temple that reaches the world of truth. It was embodied in this architectural space. After seeing the exhibits inside the museum, you go out of the entrance to the museum, pass the ramp, climb the green grassy roof, and slowly lead to a path to appreciate the surrounding scenery. In addition, the north side of the ramp is formed as a staircase and leads to the cafeteria, and can be used as a space to wait for a while, or as a space for simple lectures or events. When you enter the main lobby through the main entrance, you will face the western courtyard where the stone pagoda is located. You can freely visit the permanent exhibition room on the left and the special exhibition room on the right.

A long time ago, this site of majestic dignity and time was emptied, but there was the belief of King Mu and Princess Seonhwa, the legend of Maitreya Samjonbul remains, and the footprints of those who cut and carried stones and trees are engraved, and in history. It contains the lives of our ancestors. Iksan National Museum is a space where you can look at the Mireuksaji site and keep a new time of history. It is an expansive space where you can walk through history and encounter those times.

*남겨진 역사의 시간으로 걸어 들어가는 박물관, 국립익산박물관 *
용화산 좌우 능선 사이 평지에 자리 잡은 익산 미륵사지는 백제시대 불교경전에 따라 지어진 세계문화유산으로, 터만 남아있는 곳이다. 이 미륵사지 터 옆에 세워진 국립익산박물관은 미륵사지 ‘터’ 자체의 가치를 재발견하고 이곳의 가치를 극대화한다. 건축가는 극도로 낮춰지고 숨겨진 공간을 통해 과거 역사의 흔적을 발견하며, 역사의 시간과 만나는 공간, 시간의 켜가 겹쳐진 공간을 구현해냈다.

익산 미륵사지 터는 남아있는 두 개의 석탑과 주변을 둘러싸고 있는 용화산, 남측 연못 등이 어우러진 곳으로, 이미 아름다운 풍경을 지니고 있었다. 국립익산박물관은 세계문화유산인 미륵사지 ‘터’ 자체의 아름다움이 가려지지 않도록 또한, 조화를 이룰 수 있도록 일체화된 경관으로써 자리한 “보이지 않는 박물관”의 포지션을 가진다. 건축물의 외형은 높이를 낮추면서도 용화산 남쪽 좌우 능선 사이에 자리 잡고 있는 미륵사지 터의 공간적 구조가 담겨있다.

박물관은 미륵사지와 마주한 동측의 램프를 통해서 해발 35m의 지하 1층까지 경사진 길을 따라 박물관 내부로 진입한다. 풍경으로서 건축, 자연스럽게 길을 따라 내부로 접근하는 과정과 전시를 체험하고, 지붕에 올라 미륵사지 터를 바라보며 과거의 영화로운 미륵사지의 모습을 상상해보는 연속적인 여정을 통해 관람자에게 역사의 시간을 발굴하는 경험을 하는 공간인 것이다. 경사로가 시작되는 지점에서 박물관의 지상과 지하의 경계가 시작된다. 내부 공간의 슬라브에 의해 나눠진 경계는 박물관 매스의 외부 경계가 면한 지점에서는 인공의 언덕이 되어 지면에서 솟아오르고, 경사로와 면한 내부 파사드는 패턴의 변화를 통해 지상과 지하의 경계를 표현한다.

높은 층고를 필요로 하는 전시 공간과 기능 공간은 좌우로 나타난다. 입구에 다다르는 경사로 길은 건축물 중앙에서 뻗어 나가는데, 일주문을 통과해 마음을 정화시키며 진리의 세계에 다다르는 일반적인 사찰의 진입방식이 구현되어 역사의 정수를 마주하기 전, 미륵사지의 의미에 대해 생각하며 걷는 과정이 건축적 공간으로 구현된 것이다. 박물관 내부의 전시를 보고 난 후에 박물관 입구를 나서서 경사로를 지나 잔디가 푸르른 지붕을 오르며 천천히 주변의 풍경을 감상하는 동선으로 이어진다. 뿐만 아니라, 경사로의 북측은 계단이 형성되어 카페테리아로 이어지며, 잠시 대기하는 공간 또는 간단한 강연이나 이벤트 공간으로도 사용 가능하다. 주 진입구를 통해 메인 로비에 들어서면 석탑이 놓여있는 서측 중정과 마주하게 된다. 좌측의 상설전시실과 우측의 특별전시실을 자유롭게 관람할 수 있다.

아주 오래 전, 웅장한 위엄과 유구한 시간을 품은 이 터는 비록 비워져 있지만, 무왕과 선화공주의 믿음이 있었고, 미륵삼존불의 전설이 남아있고, 돌과 나무를 자르고 나르던 이들의 발자국이 새겨져 있으며, 역사 속 조상들의 삶이 담겨 있다. 국립익산박물관은 미륵사지 터를 바라볼 수 있고, 새로운 역사의 시간을 간직한 공간이다. 역사 속을 거닐며 그 시간들을 조우할 수 있는 광활한 공간인 것이다.













Architects USUN ENGINEERS AND ARCHITECTS CO.LTD + GIL ARCHITECTS AND ENGINEERS CO.LTD
Location Geumma-myeon, Iksan-si, Jeollabuk-do, Republic of Korea
Site area 39,695.00m2
Building area 4,017.16m2
Gross floor area 7,499.69m2
Building scope B2, 1F
Building to land ratio 10.12%
Floor area ratio 2.69%
Design period 2016. 6 - 2017. 7
Construction period 2018. 4 - 2019. 12
Completion 2020. 1
Principal architect USUN ENGINEERS AND ARCHITECTS CO.LTD, GIL ARCHITECTS AND ENGINEERS CO.LTD
Project architect (USUN)Sujin Shin Design team (USUN)Hyojin Kim, Younghun Jang, Intak Choi, Jaehee Shon
Structural engineer The Naeun Structural Engineering co. ltd Mechanical engineer GIMEC co. ltd
Electrical engineer Korea Elec. Design Super, Engineering co. ltd
Construction SUN HYE CONSTRUCTION CO.LTD
Client Ministry of Culture, Sports and Tourism National Museum of Korea
Photographer Joonhwan Yoon, Changseok Yoon
해당 프로젝트는 건축문화 2021년 2월호(Vol. 477)에 게재 되었습니다.
The project was published in the February, 2021 issue of the magazine(Vol. 477).
February 2021 : vol. 477
Contents : RECORDS THE EXPERIMENT TO FACE A REALITY IN AN INFINITE GRID : NEWS / COMPETITION / BOOKS : SKETCH PINK PAVILION IN PAVLOVSK / NEVEROVA OLESYA : RECENT PROJECT GLAMTREE RESORT EMBRACES N..
anc.masilwide.com
'Architecture Project > Cultural' 카테고리의 다른 글
| MUSÉE ATELIER AUDEMARS PIGUET (0) | 2021.04.13 |
|---|---|
| ELEPHANT MUSEUM (0) | 2021.04.12 |
| SSR CULTURAL COMPLEX(GONGGAMSONYOO) (0) | 2021.04.06 |
| BACHLEDKA SUMMIT FACILITIES (0) | 2021.02.09 |
| LOCHAL LIBRARY (0) | 2021.01.28 |
마실와이드 | 등록번호 : 서울, 아03630 | 등록일자 : 2015년 03월 11일 | 마실와이드 | 발행ㆍ편집인 : 김명규 | 청소년보호책임자 : 최지희 | 발행소 : 서울시 마포구 월드컵로8길 45-8 1층 | 발행일자 : 매일



