
하나의 지붕과 위요의 광장 - 포용적 유산해석과 설명을 통한 유산의 가치 확산
수평의 매스 위 너른 지붕은 유네스코 세계유산 국제해석설명센터가 추구하는 포용적 유산해석과 설명이라는 개념을 형상화 합니다. 커튼월과 와이어메쉬와 같은 투명하고 가벼울 재료로 구성된 이 지붕은 유산의 가치 확산을 상징 합니다. 경사진 지붕을 마주하며 걷는 위요의 광장은 방문객들에게는 공공성을 강화하며, 지역 주민들에게는 공원과 휴게공간으로 활용될 수 있는 유연함을 갖는 공간이 될 것입니다.
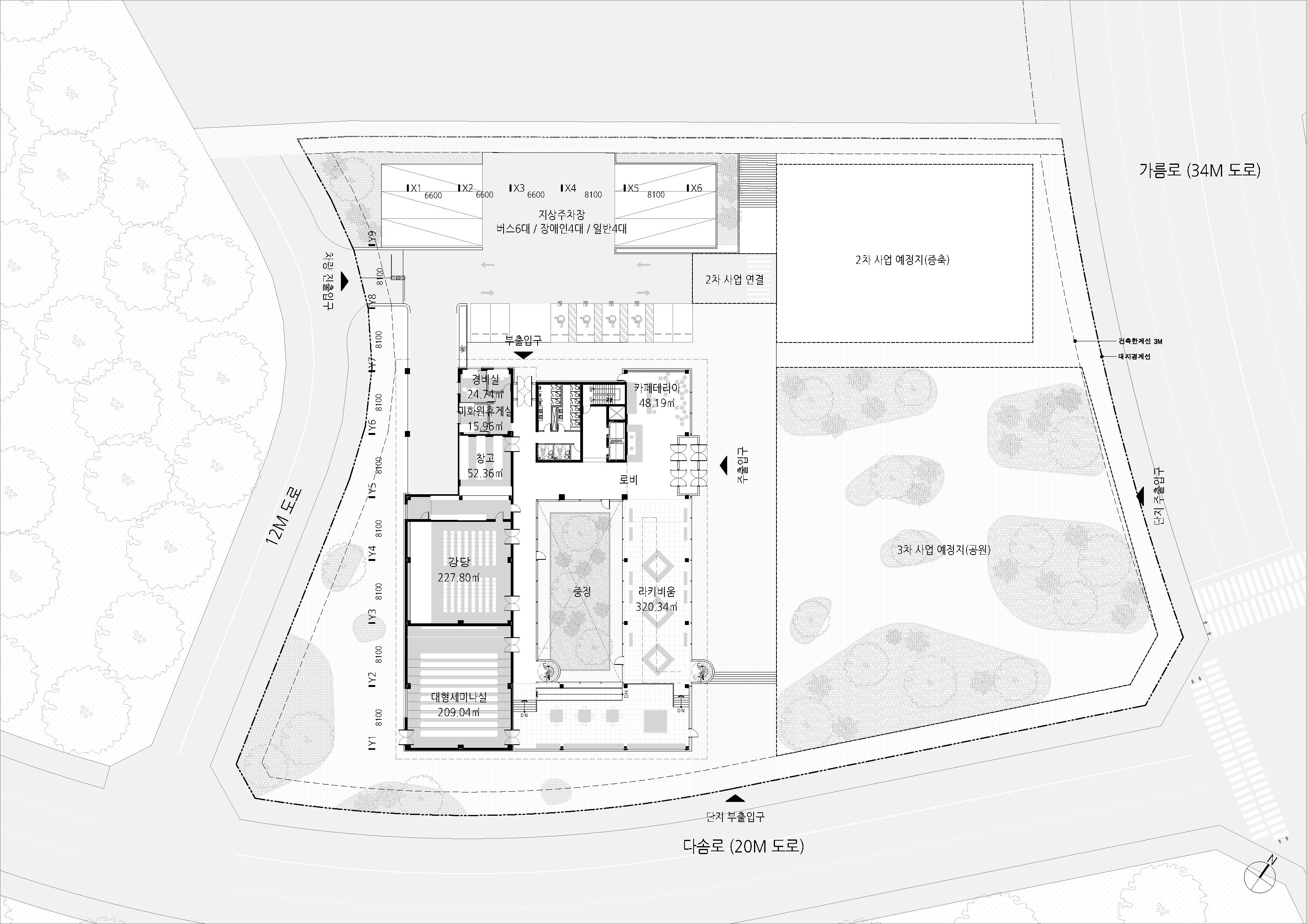
대상지는 서측과 남측으로 근린공원과 수변공원을, 동측으로 34M의 넓은 도로를 마주하고 있습니다. 1차 사업에서 대지의 서측을 최대한 활용하여 동측에 유휴 면적을 최대한 확보하고 2-3차 사업의 다양한 가능성을 열어두는 것을 목표로 하였습니다.
업무와 전시, 두 영역으로 분리된 건물의 중심에 공용공간과 중정을 확보하여 영역별 기능에 맞는 독립적인 평면을 가지면서 유기적인 공간 활용이 가능하도록 계획하였습니다. 2층의 업무영역은 서측의 근린공원과 중정을 마주하며 사용자들에게 쾌적한 업무환경을 제공하고, 1층의 전시영역(라키비움)은 전면의 넓은 광장을 마주하며 높은 층고로 방문객들에게 개방된 공간을 선사합니다.










풀이건축사사무소
2등작_ 풀이건축사사무소(https://www.pooree.kr)+스튜디오만물상( https://mnmltruck.com/)
대표건축가 신종혁(풀이건축사사무소) + 김승범(스튜디오만물상)
대지면적 8,397.00㎡
연면적 4,781.31㎡
건축면적 1,673.19㎡
건폐율 19.93%
용적률 27.95%
최고높이 11.7m
층수 지하 1층, 지상 2층
구조 철근콘트리트구조, 철골조
대표건축가 신종혁(풀이건축사사무소) + 김승범(스튜디오만물상)
조경면적 2,435.03㎡
주차대수 80대
발주처 국가유산청
'Plans' 카테고리의 다른 글
| 서부산스마트밸리 청년문화센터 건립사업 설계공모_ 당선작 / 희가 건축사사무소+건축사사무소 마온 (0) | 2026.01.15 |
|---|---|
| 서산 보원사지 방문자센터 건립사업 건축설계(기본 및 실시설계) 용역_당선작 / (주)한창 건축사사무소 (0) | 2026.01.15 |
| 송신초 공간재구조화 개축 및 리모델링_ 당선작 / (주)슬로프트건축사사무소 (0) | 2026.01.12 |
| 거제우체국 건립공사 설계용역_ 당선작 / (주)건축사사무소 티오피 (0) | 2026.01.09 |
| 울진 청년창업복합문화센터 건립사업 건축설계 공모_ 3등작 / (주)인에이건축사사무소 (0) | 2026.01.09 |
마실와이드 | 등록번호 : 서울, 아03630 | 등록일자 : 2015년 03월 11일 | 마실와이드 | 발행ㆍ편집인 : 김명규 | 청소년보호책임자 : 최지희 | 발행소 : 서울시 마포구 월드컵로8길 45-8 1층 | 발행일자 : 매일



