
<길 위의 청년문화, 청년문화가 있는 길>
사람들이 모이는 곳에는 언제나 길이 있습니다. 길은 단순히 한 지점에서 다른 지점으로 이동하기 위한 통로가 아니라,우리가 머무르고,만나고,새로운 이야기를 만들어내는 장소가 되어왔습니다. 금왕리의 체육센터와 골프장은 이미 하나의 길을 공유하고 있습니다. 주차장과 커뮤니티 스트리트를 따라 사람들은 오가고, 멈추고, 다시 흘러갑니다. 그리고 이제, 그 길 위에 새로운 청년문화센터가 세워집니다. 청년문화센터는 단순한 건물이 아닙니다.체육과 레저의 흐름 속에서, 청년들의 창작과 교류를 담아낼 새로운 주체가 됩니다. 길은 더이상 이동의 선에 머물지 않고, 문화와 가능성이 교차하는 축으로 확장됩니다.
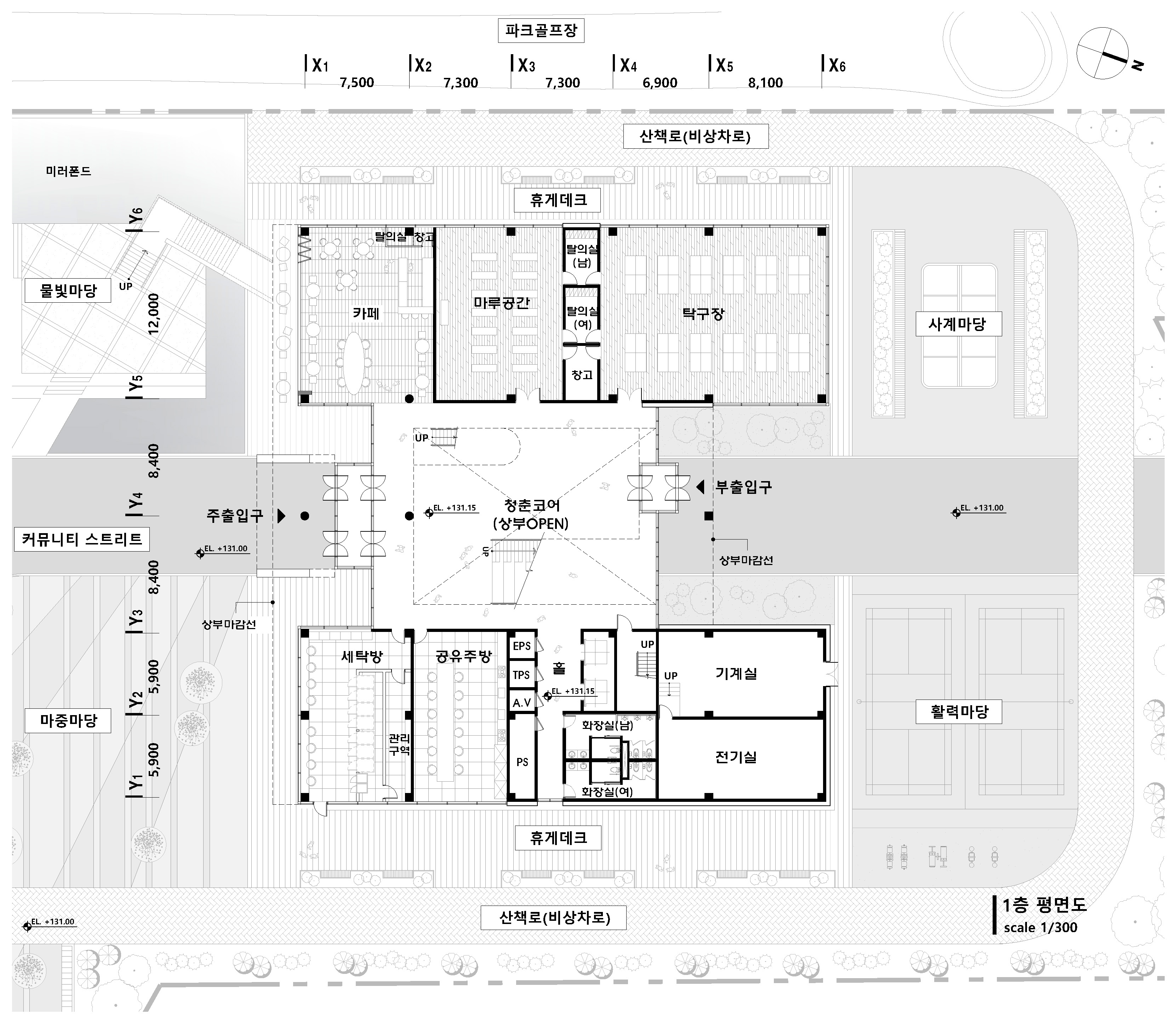
<설계 기본 개념>
길은 단순한 이동의 선이 아니라, 사람들이 머물고 만나며 이야기를 만드는 장소입니다. 체육센터와 골프장이 공유하는 길 위에 청년문화센터가 더해지면서, 길은 이제 문화와 가능성이 교차하는 축으로 확장됩니다. 그 중심에는 청춘코어(아트리움)가 있습니다. 청춘코어는 단순한 보이드가 아니라, 외부에서 이어진 길이 머물고, 사람들이 교차하며 새로운 관계가 만들어지는 열린 무대 입니다. 이번 프로젝트는 건물을 세우는 일이 아니라, 길 위에 또 하나의 무대를 열어, 지역과 청년이 함께 성장하는 플랫폼을 만드는 일입니다.







(주)유원건축사사무소
4등작_ (주)유원건축사사무소(designgroup-u1.com)
대표건축가 김선필
대지면적 45,745.0㎡
연면적 기존 3,870.42㎡ + 증축 3,413.39㎡ = 7,283.81㎡
건축면적 기존 2,807.34㎡ + 증축 1,516.30㎡ = 4,323.64㎡
건폐율 9.45 %
용적률 15.92 %
최고높이 16.9 m
층수 지상 3층
구조 철근콘크리트 구조
대표건축가 김선필
디자인팀 조성기,조환흠,박희예
주차대수 218 대
발주처 충청북도 음성군
'Plans' 카테고리의 다른 글
| 한강경찰대 여의도본대 이전·신축 제안설계공모_ 2등작 / 토도아키텍츠 건축사사무소 (0) | 2025.11.03 |
|---|---|
| 관세인재개발원 탐지견훈련센터 증축공사 설계용역_ 2등작 / (주)윤석민 건축사사무소 (0) | 2025.10.20 |
| 서상 주민모아센터 구축사업 설계공모_ 2등작 / 명가건축사사무소 (0) | 2025.10.17 |
| 서상 주민모아센터 구축사업 설계공모_ 3등작 / (주)건축사사무소 미가온 (0) | 2025.10.17 |
| 봉화노인복지센터 기능보강사업 설계공모_ 5등작 / 건축사사무소품사 (0) | 2025.10.16 |
마실와이드 | 등록번호 : 서울, 아03630 | 등록일자 : 2015년 03월 11일 | 마실와이드 | 발행ㆍ편집인 : 김명규 | 청소년보호책임자 : 최지희 | 발행소 : 서울시 마포구 월드컵로8길 45-8 1층 | 발행일자 : 매일



