
Drishti
건축은 단순히 공간을 짓는 행위가 아니라, 일상의 미묘한 결을 담아내고 개성을 반영하는 경험을 형성하는 일이다. 히렌 파텔 아키텍츠는 1989년 설립 이래 이러한 철학을 바탕으로 건축의 경계를 확장하며 예술·디자인·기능을 융합해왔다. 이번 아마다바드의 주거 프로젝트는 기술자 부부와 가족을 위한 1,858㎡ 규모의 주택으로, HPA의 비전을 선명하게 구현한 사례이다.
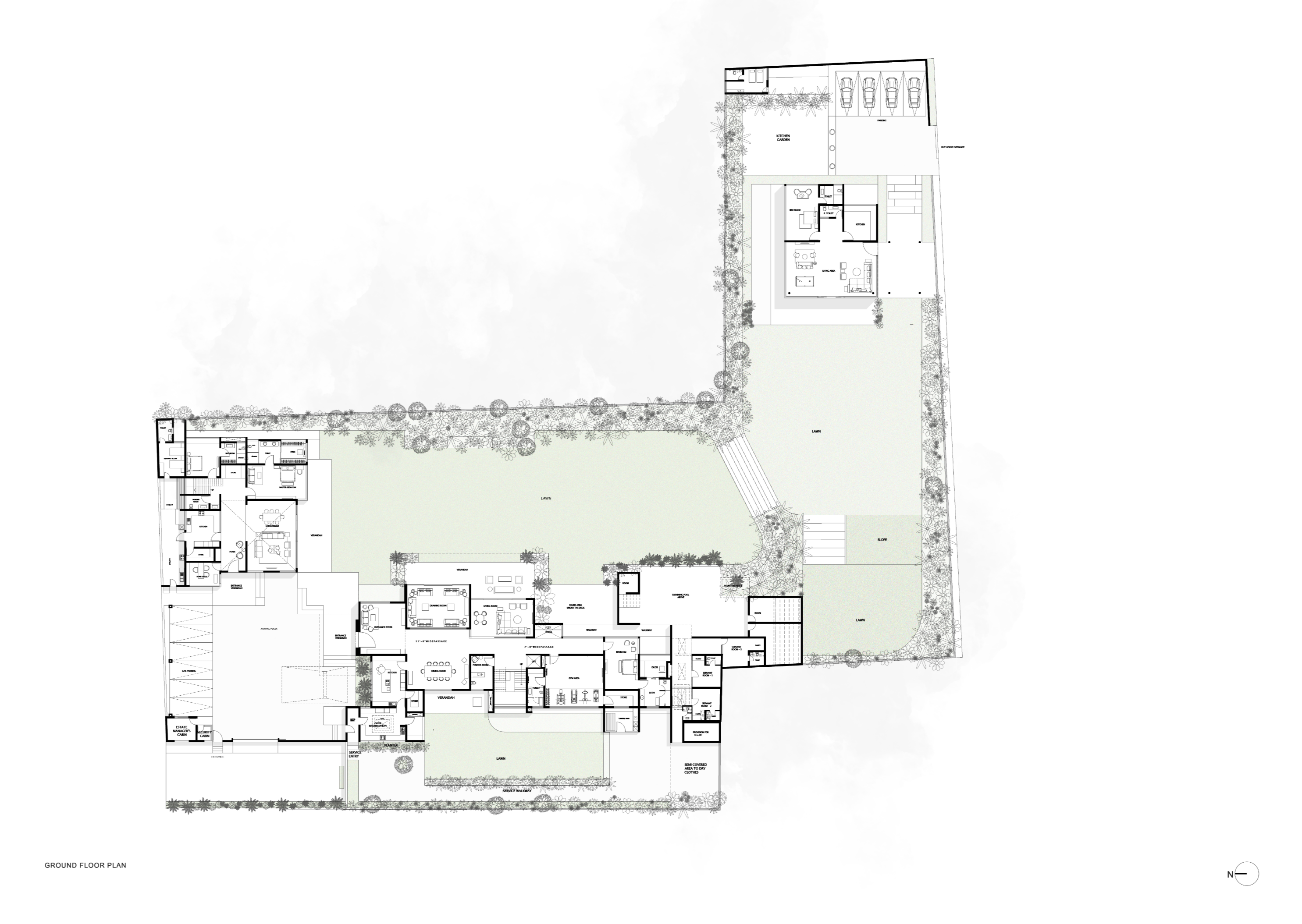
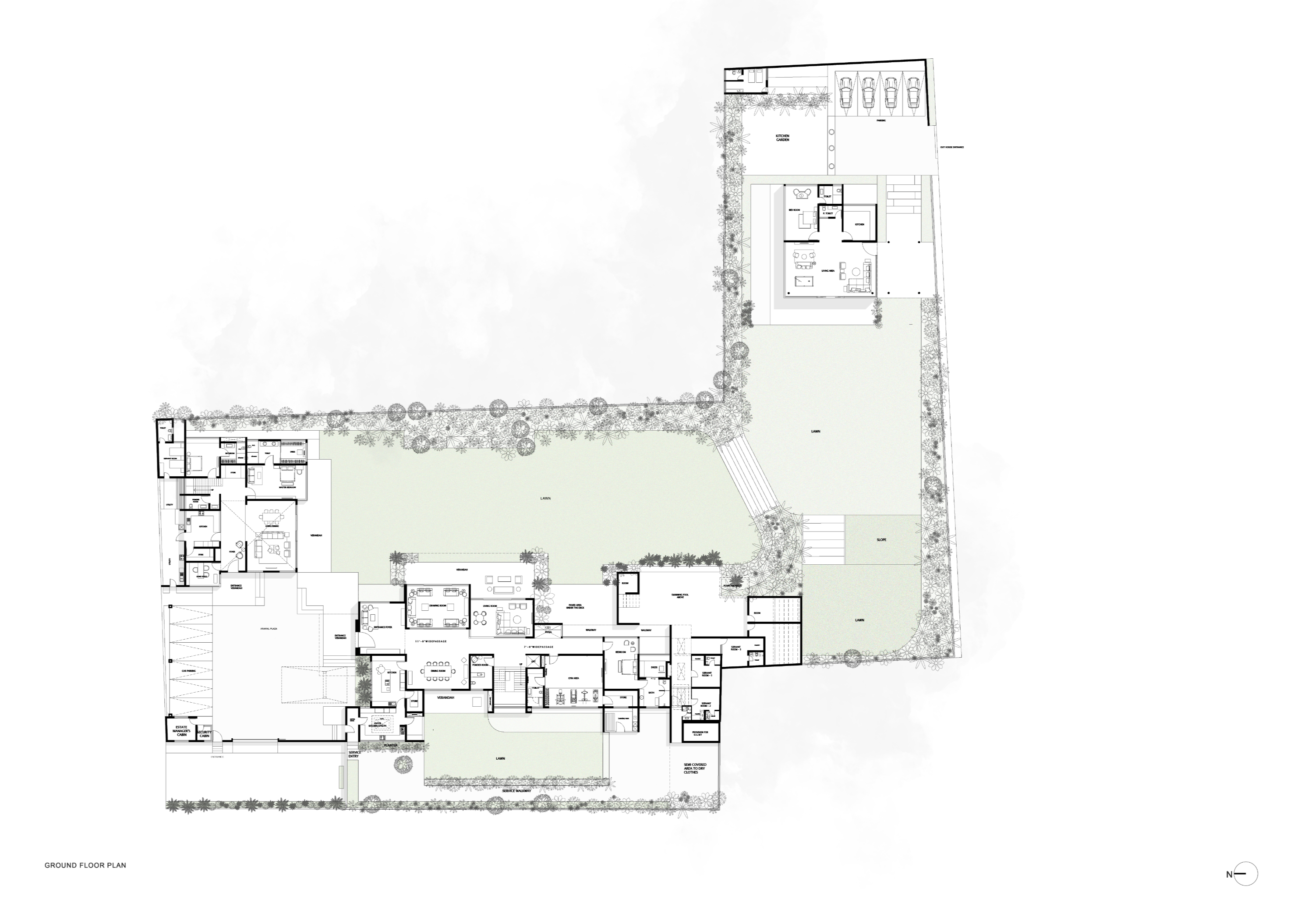
주택은 granite 바닥과 적색 유리 화강석 벽, 목재 캐노피가 조화를 이루는 진입 광장으로 시작한다. 이 공간은 미적 효과와 내구성을 동시에 갖추며 본채와 부모의 동선을 유기적으로 연결했다. 7대의 차량 주차 공간과 동향 정원은 기능성과 평온함을 더했다.
실내에 들어서면 이중 높이 공간이 아침 햇살로 가득 차 밝고 개방된 분위기를 만든다. 중앙 공간은 포멀 리빙룸, 다이닝룸, 패밀리룸을 자연스럽게 이어주며, 각 공간은 독립성을 지니면서도 유기적으로 연결되었다. 베란다는 야외 식사와 모임, 대화를 위한 장을 마련했다.
내부는 절제된 미학으로 구성되었다. 건축적 요소가 중심이 되고, 소유주의 예술품 컬렉션이 세심하게 배치되어 개인적 서사를 공간 속에 담았다. 중앙 계단은 조명 설치와 함께 조형적 존재감을 드러내며 시선을 위로 이끈다.
사적인 공간은 가족의 생활 방식에 맞춰 세심하게 계획되었다. 1층에는 라자스탄 장인 정신을 담은 푸자실과 넓은 체력단련실이 배치되었다. 2층은 아들의 생활 공간으로, 스터디룸과 홈시네마 라운지가 있다. 마스터 스위트는 테라스와 오피스를 갖춘 안식처로 설계되었다. 부모 세대를 위한 별도의 윙은 독립성과 가까움을 동시에 보장하며, 베란다에서의 고요한 휴식을 가능하게 했다.
주택의 중심은 수영장과 정자를 향한 베란다로, 가족이 함께 모이는 공동의 장이 되었다. 외관은 평지붕과 넓은 차양, 미장과 석재 마감이 결합되어 기후적 조건에 대응하면서도 현대적 미감을 유지했다.
이 주택은 단순한 집이 아니라 예술적 작품이며, 기능성과 정신성을 결합한 HPA의 철학을 집약한 결과물이다. 가족의 생활과 열망을 반영하며 전통과 혁신을 균형 있게 담아낸 이 집은 건축적 완성도와 사려 깊은 삶을 동시에 보여준다.





















건축가 히렌 파텔 아키텍츠(Hiren Patel Architects)
위치 인도, 구자라트, 아마다바드
용도 단독주택
규모 지상 2층
준공 2024
대표건축가 Hiren Patel
인테리어 Ishita Sitwala
사진작가 Vinay Panjwani
'Architecture Project > Single Family' 카테고리의 다른 글
| 자연과 창작을 품은 안식처, 알로아 힐 주말주택 / 스튜디오 상가트 (0) | 2025.09.15 |
|---|---|
| 빛과 바람을 담은 도자기 텍스쳐의 집 / 나키 앤 파트너스 (0) | 2025.09.12 |
| 선형 수영장과 정원을 품은 알리바그의 집 / 케이스 디자인 (0) | 2025.09.12 |
| 후라노 고원에 선 제로 하우스 / 플로리안 부쉬 아키텍츠 (0) | 2025.09.11 |
| 사선제한을 따라 세운, 바람과 햇살이 흐르는 집 / 코미노루 디자인 (0) | 2025.09.11 |
마실와이드 | 등록번호 : 서울, 아03630 | 등록일자 : 2015년 03월 11일 | 마실와이드 | 발행ㆍ편집인 : 김명규 | 청소년보호책임자 : 최지희 | 발행소 : 서울시 마포구 월드컵로8길 45-8 1층 | 발행일자 : 매일



