
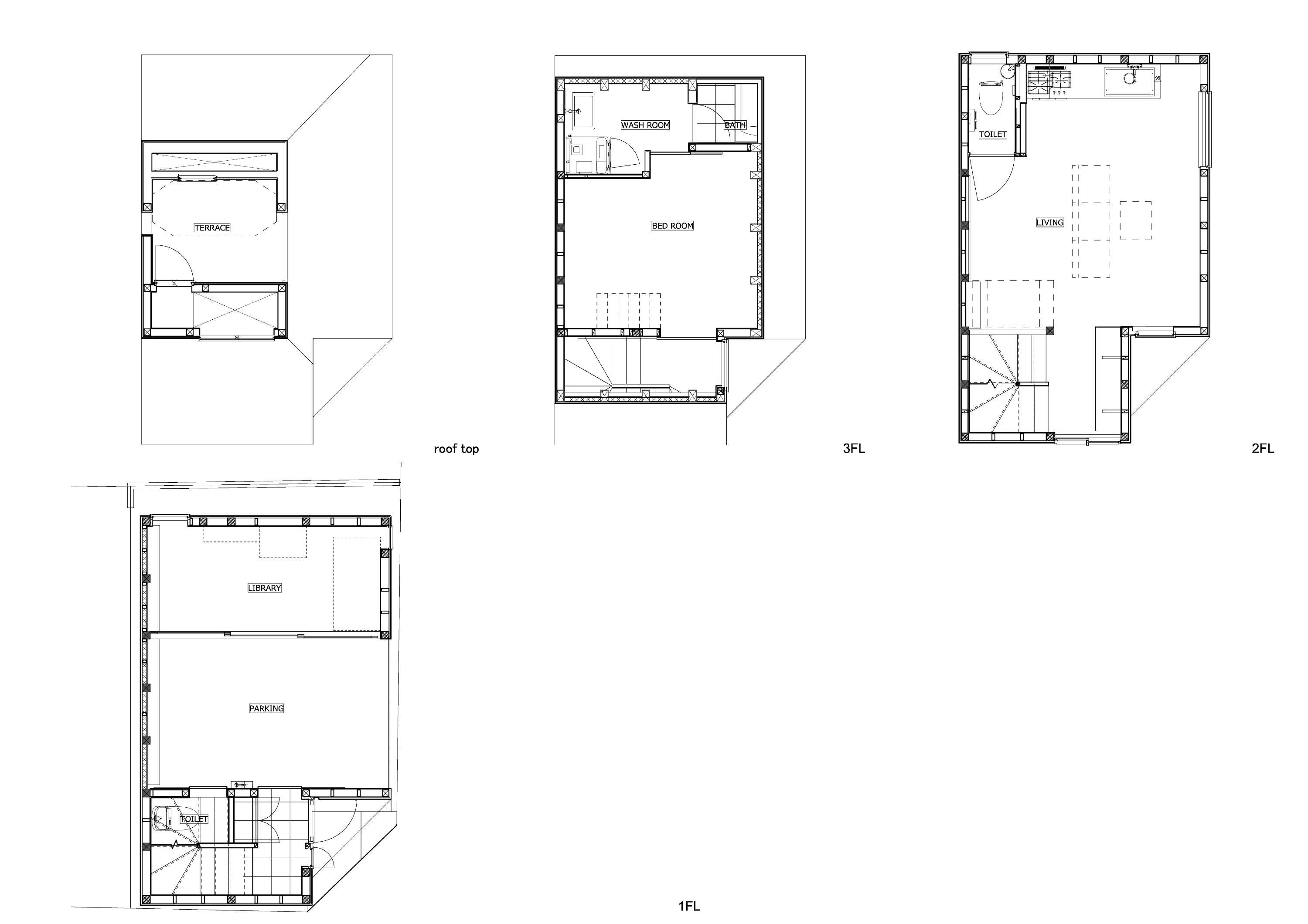
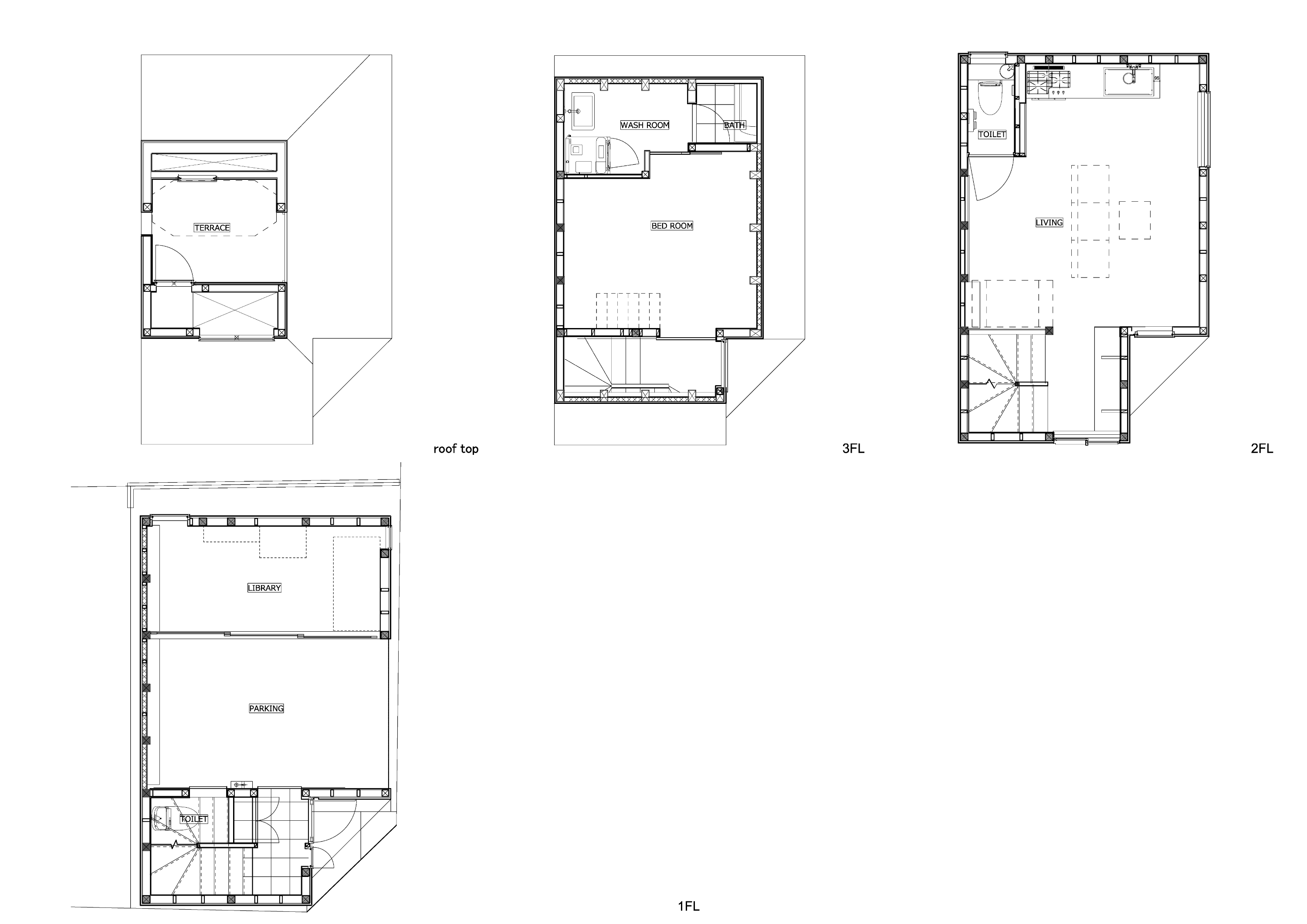
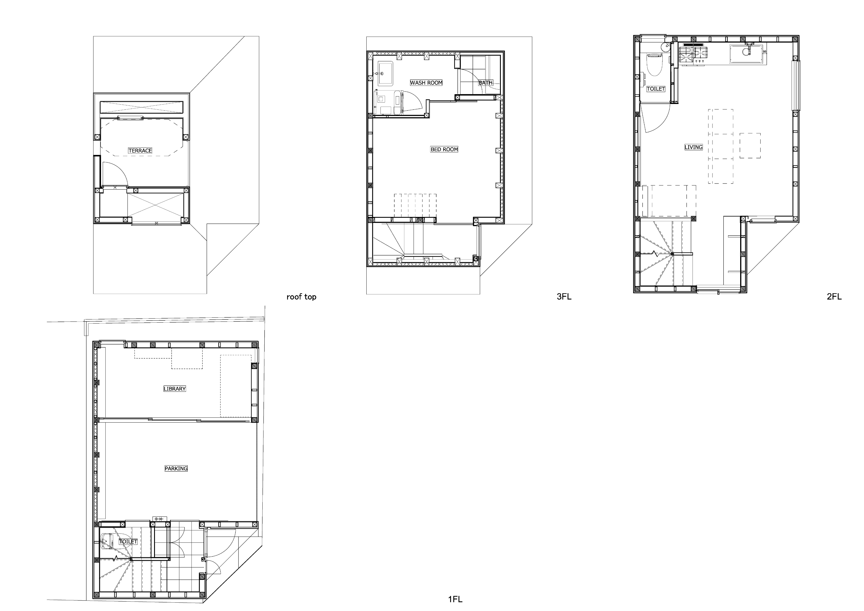
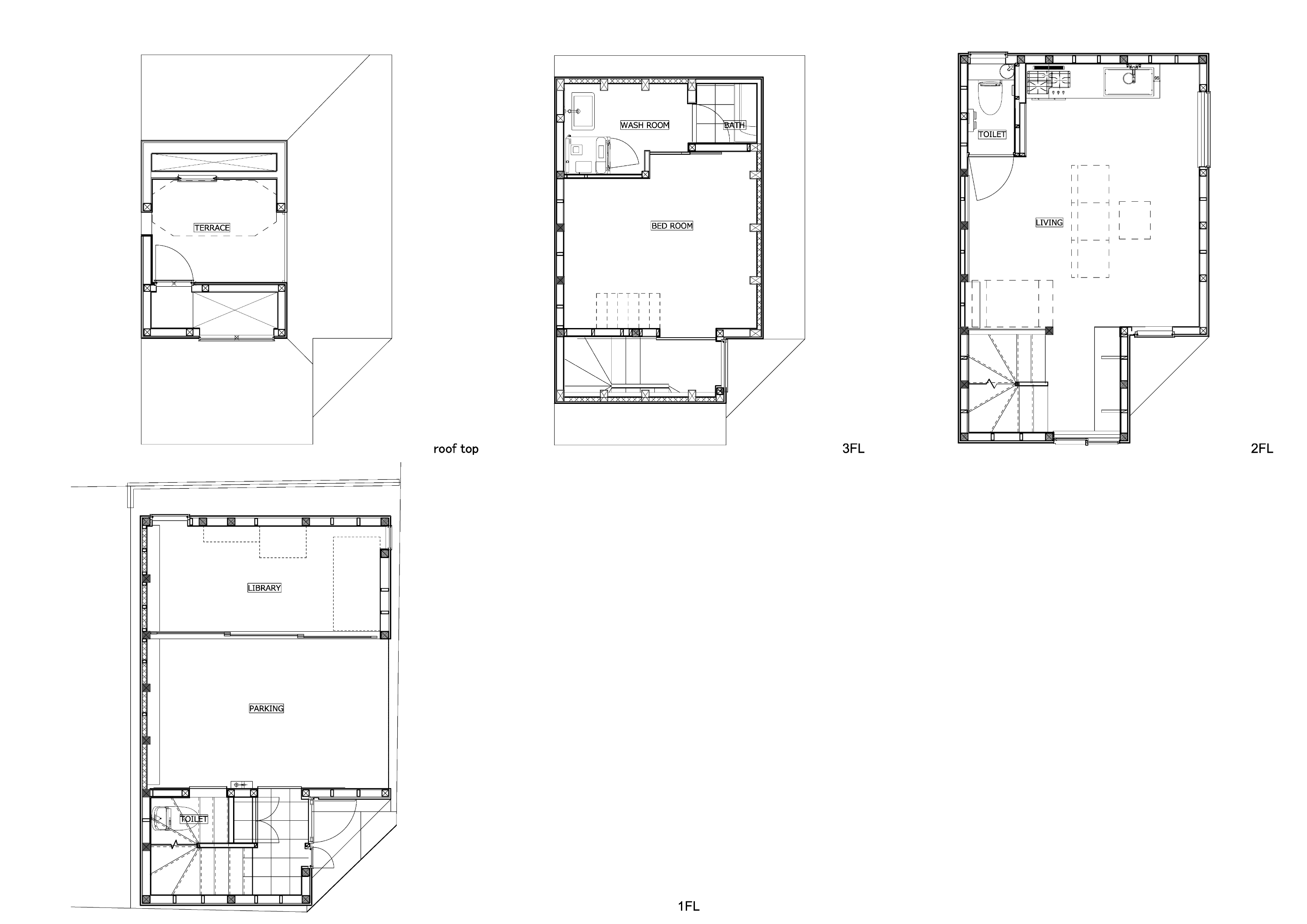
이 집은 대지 면적이 약 9평(약 30㎡)에 불과한 협소 부지에 지어진 3층 목조주택이다. 모퉁이 대지에 위치해 방화 성능만 충족하면 건폐율을 80%까지 확보할 수 있었고, 예상보다 넓은 연면적을 얻을 수 있었다. 반(半)방화 지역에 위치해 2019년 개정 건축기준법으로 도입된 준(準)방화 건축 방식을 택했으며, 일부 기둥과 보를 120cm 이상으로 제작해 구조를 부분적으로 노출하면서도 내화 성능을 확보했다. 보 위에 천장을 설치해 층고를 높일 수 있었고, 가파른 경사에도 필요한 면적을 확보했다.
형태적으로는 남측 도로의 사선 제한을 활용해 작은 옥상 테라스를 만들었고, 북측은 1:1.25 경사 제한으로 벽면이 결정되었다. 이 사선 벽을 어떻게 활용할지가 핵심 과제였으며, 고민 끝에 사용 빈도가 낮고 수납이 많은 욕실을 3층 북측에 배치했다. 경사진 공간은 수납 용도로 활용했고, 욕실은 두 방향에서 접근하는 사선 벽 사이에 욕조를 끼워 넣어 최소한의 크기로 설계했다.
세로로 긴 공간을 활용해 옥상에 환기창을 두었고, 중력에 의한 통풍을 유도해 집 전체에 바람이 흐르도록 했다. 처마 위에는 나무를 심고, 면적 제약으로 어렵던 1층 정원은 2층에 마련해 실내에서도 작은 녹지를 즐길 수 있도록 했다.



















건축가 코미노루 디자인(KOMINORU DESIGN)
위치 일본, 도쿄, 나카노
용도 단독주택
연면적 60㎡
규모 지상 4층
준공 2024
대표건축가 KO MINORU
사진작가 Katsumasa Tanaka
'Architecture Project > Single Family' 카테고리의 다른 글
| 선형 수영장과 정원을 품은 알리바그의 집 / 케이스 디자인 (0) | 2025.09.12 |
|---|---|
| 후라노 고원에 선 제로 하우스 / 플로리안 부쉬 아키텍츠 (0) | 2025.09.11 |
| 시간과 물성의 흐름이 담긴 단독주택 / 파스콸 히네르 아르키텍투라 (0) | 2025.09.08 |
| 벽과 바닥의 색채 대비를 이루는 자연 속 주택, 세리마 하우스 / 테트로 (0) | 2025.09.08 |
| 구조적 혁신과 소재의 따뜻함을 조화시킨 단독주택 / 파온 아키텍츠, 차논 펫상응암 & 룽나파 도르미외 (0) | 2025.09.05 |
마실와이드 | 등록번호 : 서울, 아03630 | 등록일자 : 2015년 03월 11일 | 마실와이드 | 발행ㆍ편집인 : 김명규 | 청소년보호책임자 : 최지희 | 발행소 : 서울시 마포구 월드컵로8길 45-8 1층 | 발행일자 : 매일



