
서울성
서울은 600년 조선의 도읍지였으며, 1920 - 30년대에는 성곽 밖으로 확장되었다. 1960 - 70년대에는 강남으로 도시가 뻗어나가며 현재의 모습을 갖추게 되었다. 동소문동 일대는 1930년대 말 서울의 확장 시기부터 현재까지의 다층적 도시 역사를 담고 있는 지역이며, 이 시대적 흐름 속에서 화연재의 건축적 의의를 담고자 했다.
장소의 역사
서울 혜화문 밖 동소문동에는 돈암장(敦岩莊)이 있었다. 이곳은 조선시대 의료기관인 동활인서(東活人署)가 있던 자리였고, 1938년경 구한말 내시였던 송성진이 대목장 배희한에게 의뢰해 돈암장을 짓게 했다. 돈암장은 한옥으로 된 본채와 청기와 양옥, 부속동 등 9개의 건축물로 구성되어 있었다. 청기와 양옥 앞 정원에는 천연의 거대한 바위(敦岩)가 있었고, 이 바위는 돈암장과 돈암동 지명의 유래가 되었다. 돈암장의 양옥은 해방 정국 당시 이승만 박사가 잠시 머물며 정치적 장소로도 기능했다. 1970년대에는 대지 분할이 이루어졌고, 한옥 본채 옆 청기와 양옥이 있던 자리는 새로운 주인을 맞이하게 되었다.

다층적 장소의 기억으로서의 주거공간
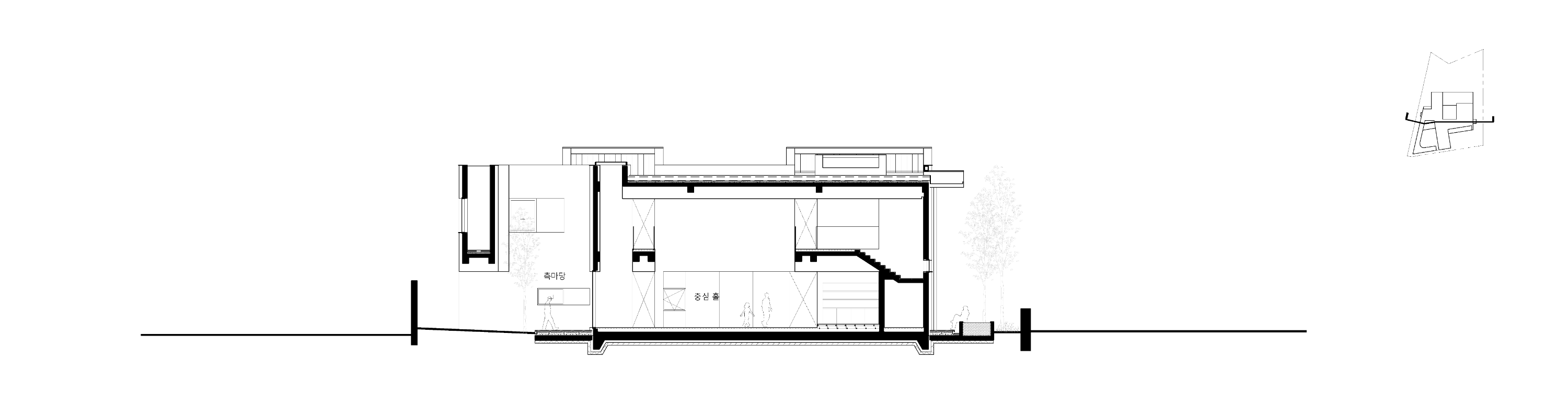
청기와 양옥 자리는 건축주 가족에 의해 두 차례 새로운 주택으로 지어졌고, 기존 주택의 누수 문제로 인해 건축주는 같은 장소에 새로운 집을 짓기로 결심했다. 이 장소에서 50여 년간 살아온 건축주에게 새로운 주거형식을 제시하는 것이 이 프로젝트의 핵심 주제였다. 계획의 방향은 돈암장에서 시작되는 장소의 기억과 관계성을 새롭게 해석하고, 건축주가 살아왔던 주택의 기억과 현 시점의 주거 공간 체계를 연결하는 것이었다. 기존 주택은 거실 중심의 1층, 가족실 중심의 2층, 지하 공간과 부속동으로 구성된 일자형 양옥 구조였다. 이러한 실내 공간 배열, 진입 마당, 거실 앞마당의 기억을 유지하면서, 돈암마당과 중심 홀을 관입시켜 새로운 중심 공간을 만들고자 했다.

돈암마당에는 대지 내에서 발견된 거대한 바위를 재배치해, 과거 돈암장에 있었던 천연 바위(敦岩)의 기억을 되살렸다. 마당은 단순히 바라보는 정원이 아닌, 직접 경험하는 공간으로 작동하도록 계획했다. 이 외의 작은 마당들은 각각의 실내 공간이 외부와 관계를 맺는 장치로 작용하며, 특히 가족실과 연결된 2층의 마당은 곡면 유글라스로 계획되어 특별한 주거 마당의 경관을 형성했다.





전이 공간인 중심 홀은 두 개의 천창에서 흘러내리는 자연광과 2층 복도의 곡선 흐름이 결합되어 이 주택의 고유한 공간적 특징을 드러낸다. 중심 홀과 돈암마당에서 시작되는 계단은 천창과 함께 수직적 상승감을 만들어낸다. 계단을 오르며 계단참의 수평창을 통해 돈암장 본채의 한옥 지붕이 시야에 들어오도록 했다. 이 시각적 전개는 과거 돈암장과의 관계성을 환기시킨다. 계단을 따라 2층에 도달하면 두 개의 천창과 곡선 브리지를 지나 가족실과 자녀 공간으로 이어지고, 이 과정에서 공간의 전환 경험이 이루어진다.

가로에서의 전경은 돈암장 한옥 담장을 현대적으로 재해석한 담장으로 계획해 가로의 연속성을 유지하고, 신구가 결합된 새로운 가로 경관을 연출하고자 했다. 화연재(和然齋)는 한국 근대사와 한 가족의 역사를 품은 장소이며, 사대문 밖 언덕의 물리적 기억과 이어진다. 과거의 기억을 담아내며 새로운 주거 공간으로 재탄생한 이 집은 시공간의 연속성을 담아낸 프로젝트이다.











건축가 (주)스페이스연 건축사사무소
위치 서울 성북구 동소문동4가 103-1
용도 단독주택
대지면적 1,385.6㎡
건축면적 470.77㎡
연면적 679.70㎡
규모 지상 2층
건폐율 33.98%
용적률 41.98%
설계기간 2022. 4. - 2023. 7.
시공기간 2023. 7. - 2024. 3.
준공 2024
대표건축가 이상대
프로젝트건축가 유성철
구조엔지니어 ㈜전우구조
기계엔지니어 ㈜코담기술단
전기엔지니어 ㈜코담기술단
시공 ㈜재윤디앤씨
발주자 정연준
사진작가 김재윤
'Architecture Project > Single Family' 카테고리의 다른 글
| 땅부터 입면까지, 경계 없음의 경계를 만드는 집/ 실버라인 (0) | 2025.08.19 |
|---|---|
| 기하학적인 창 너머 숲의 풍경을 들이는 주택 / 모광스튜디오 (0) | 2025.08.18 |
| 공간은 비우고 삶은 채워지는 집, 비채가/ 건축사사무소 단단 (0) | 2025.08.14 |
| 위계와 관습의 경계를 허무는, 경계의 집 / 플랜 건축사사무소 (0) | 2025.08.11 |
| 땅에 앉아 자연의 수평선을 그리는 그리스 단독주택 / 카테리나 발사마키 아키텍츠 (0) | 2025.08.06 |
마실와이드 | 등록번호 : 서울, 아03630 | 등록일자 : 2015년 03월 11일 | 마실와이드 | 발행ㆍ편집인 : 김명규 | 청소년보호책임자 : 최지희 | 발행소 : 서울시 마포구 월드컵로8길 45-8 1층 | 발행일자 : 매일



