
경계의 집
이 프로젝트는 광주전남 공동혁신도시 빛가람동 단독주거지에 위치하고 있다. 도시 중심이 너른 호수공원과 전망대를 위시하여 볼륨 있는 상업건축물과 관공서 및 고층 아파트들로 구심력을 형성하고 있는 반면에, 집이 위치한 단독주거지는 도시 가장자리에서 기존 농경지와 산 능선 방향으로 시야가 확장되며 주변의 목가적인 분위기와 맞닿아 있다. 중년 부부와 두 자녀를 위하여 계획된 이 집은 도시와 사적 영역 사이, 또는 건축 요소들 사이에 존재하는 경계성에 대한 몇몇 고찰과 함께 외부환경을 좀 더 다각적으로 수용할 수 있는 구조, 그리고 거주자 가족의 문화를 닮아 덜 위계적이면서 비관습적인 공간 조성을 위한 의도를 담고 있다.

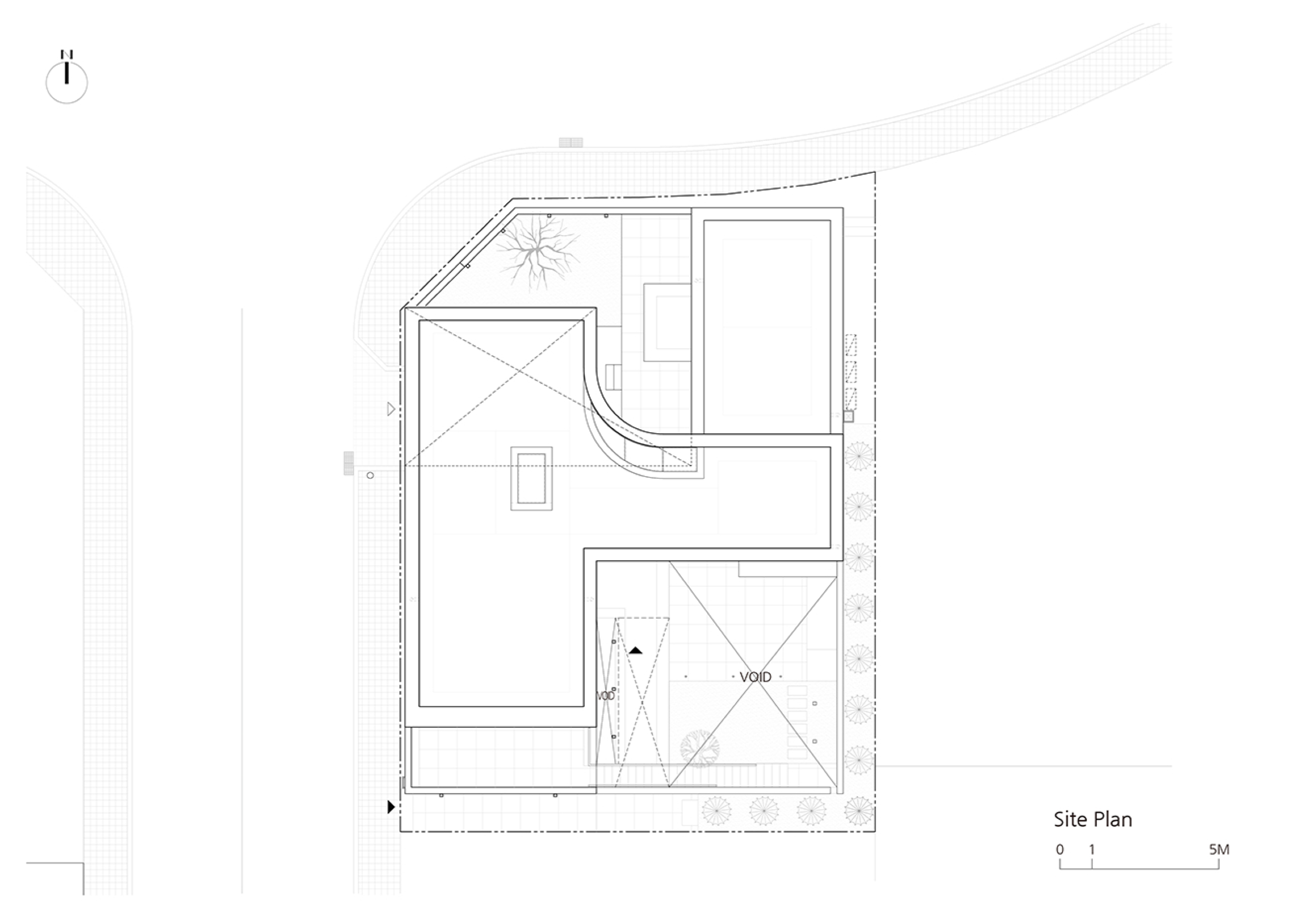
집 외형은 부지 경계를 따라 형성된 벽에 밝은색 벽돌을 쌓아 올린 간결한 형태로 땅의 형상과 닮아있다. 주변 집들과 동일한 건축 규제를 적용받고 있지만, 건축물과 담장의 관계, 장식, 처마, 벽과 개구부에 대한 전략들을 달리하여 간결하고 편안한 분위기 속에서 고유한 외형을 지니도록 하였다.



집의 첫인상은 너비 2.6m의 목재 문을 여는 순간 반전된다. 식재와 초화류, 밝게 빛나는 경계벽, 현관으로 이어지는 지붕이 맞이하는 안마당 진입 구간은 일종의 건축적 지연 장치로서 작동하며 도시와 건축 사이에 존재하는 여러 대비적 감각을 이완시켜 거주환경의 내밀한 감각을 전달한다. 이러한 감각은 내부로 이어지며 일관성을 유지하고 있는데 특히 거실에서 그 특성이 강조된다.



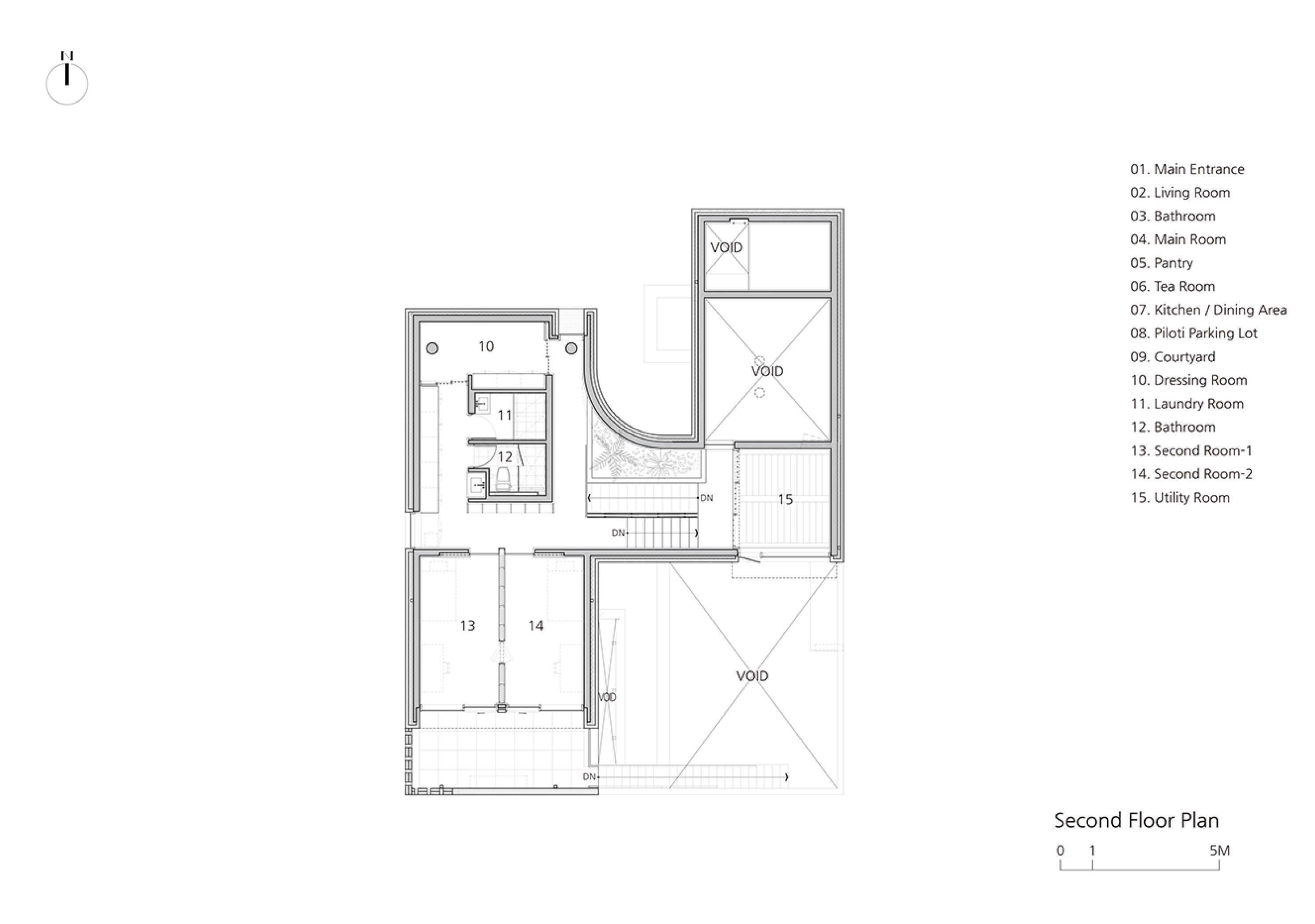
거실 반자는 반투명 폴리카보네이트와 한지를 통한 이중 구조를 형성하며 산란 된 자연광을 내부로 유입시킨다. 태양과 구름의 관계로 인해 시시각각 변화하는 빛의 농담은 거실만의 고유한 정취를 자아내고, 야간에는 조명이 외부로 새어 나가며 집의 또 다른 표정을 만들어 낸다. 이와 함께 경계에 대한 몇몇 전략들은 요소 간 분절과 미묘한 간격 조절을 통해 내외부 간 유기적 관계를 형성하고 거주 감각의 풍부한 경험을 유발한다. 이들은 안과 밖, 층과 층, 수직 요소와 수평 요소, 공간의 말단부에 존재하면서 그 효과를 극대화하고 있다. 1, 2층 간 계단 사이에 배치된 수평 창은 일순간 시야를 뒷마당과 집의 경계 너머로 확장하며 단조로운 수직 이동의 경험을 즐겁게 하고, 외부에서 분절된 1, 2 층간 외벽은 자연광과 인공광의 드나듦을 통해 다양한 집의 표정과 고유한 내부의 공간감을 형성한다.



2층 곡면 벽의 천창은 부드러운 자연광을 유입하여 실내 조경을 비추고 태양의 궤적에 따라 움직이는 그림자가 벽에 새겨지며 시간의 흐름을 담아낸다. 이 집은 현관 중심의 출입 통제, 공간들의 기능 고착화, 하부구조에 의존하는 상부구조 등과 같이 종래 여러 집에서 나타나는 전형성에 대한 비판적 시각을 담고 있다. 그로 인해 위계가 관습으로부터 멀어지고 자유롭고 수평적인 문화를 존중하는 가족 구성원에게 어울리는 거주환경을 만들어 내고자 하였다.

집의 단면 형상은 외부 환경을 수용하고 공간의 경험적 측면에서 풍부함을 더하도록 하였다. 앞마당과 뒷마당은 서로 엇갈리게 배치해 주방과 거실의 수평적 확장을 유도했고, 다양한 높낮이의 공간들은 거주자들의 입체적인 소통과 다채로운 공간 경험을 만들어냈다. 폴리카보네이트와 한지를 조합한 이중 구조의 거실 반자는 자연광을 실내로 유입하고 인공광을 외부로 발산하는 빛의 필터 역할을 하며, 시시각각 변하는 빛의 농담을 통해 독특한 분위기를 연출했다. 이 이중 구조의 거실 반자는 2층 슬라브 하부에 위치해 외부의 직사광선과 비바람에 직접 노출되지 않는 안정적인 구조이며, 내부 조명의 교체가 용이하도록 가변 구조로 설계했다.










건축가 건축사사무소 플랜 (Plan Architect)
위치 대한민국, 전라남도, 나주, 빛가람동 628-1
용도 단독주택
대지면적 296.20㎡
건축면적 147.30㎡
연면적 197.62㎡
규모 지상 2층
건폐율 49.7299%
용적률 66.7184%
준공 2023.03.16.
대표건축가 임태형
사진작가 어반레코드(윤준환)
'Architecture Project > Single Family' 카테고리의 다른 글
| 시간의 연속성을 담은 집, 화연재 / (주) 스페이스연 건축사사무소 (0) | 2025.08.18 |
|---|---|
| 공간은 비우고 삶은 채워지는 집, 비채가/ 건축사사무소 단단 (0) | 2025.08.14 |
| 땅에 앉아 자연의 수평선을 그리는 그리스 단독주택 / 카테리나 발사마키 아키텍츠 (0) | 2025.08.06 |
| 자연으로 엮인 인도 농가주택 / 언태그 아키텍처 앤드 인테리어스 (0) | 2025.08.04 |
| 일상의 언어를 색과 재료로 표현한 단독주택 리모델링 / 에스에스디에이치 (0) | 2025.07.31 |
마실와이드 | 등록번호 : 서울, 아03630 | 등록일자 : 2015년 03월 11일 | 마실와이드 | 발행ㆍ편집인 : 김명규 | 청소년보호책임자 : 최지희 | 발행소 : 서울시 마포구 월드컵로8길 45-8 1층 | 발행일자 : 매일



